|
|
|
| Larry Stein Oklahoma County Assessor (405) 713-1200 - Public Access System |
|
|
|
|
|
|
| Real Property Display - Screen Produced 3/3/2026 11:39:40 AM | ||||
|---|---|---|---|---|
| Account: R089704250 | Type: Residential | Location: |
4128 N EVEREST ST |
|
| Building Name/Occupant: |
|
OKLAHOMA CITY |
||
| Owner Name 1: | ALCHEMY INVESTMENTS LLC |
Parcel PIN#: |
2655-08-970-4250 |
|
| Owner Name 2: | 1/4 section #: |
2655 |
||
| Owner Name 3: | Parent Acct: |
|
||
| Billing Address: | 3457 LUPINE BUSH CT | Tax District: |
|
|
| City, State, Zip | LAS VEGAS , NV 89135 | School System: |
Oklahoma City #89 |
|
|
Country: (If noted) |
Land Size: |
0.2014 Acres |
||
|
Land Value: 17,550 |
|
|||
|
Sect 14-T12N-R3W Qtr SW |
PARK ESTATES ADD
Block
005
Lot
007
|
|||
| Full Legal Description: PARK ESTATES ADD 005 007 |
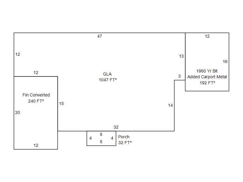
| Photo & Sketch (if available) | Comp Sales (ordered by relevancy) |
|
||||||||||||||||||
|
||||||||||||||||||||
| Value History (*The County Treasurer 405-713-1300 posts & collects actual tax amounts. Contact information HERE) | |||||||||||||
|---|---|---|---|---|---|---|---|---|---|---|---|---|---|
| Year | Market Value | Taxable Mkt Value | Gross Assessed | Exemption | Net Assessed | Millage | Est. Tax | Tax Savings | |||||
|
2025 |
94,000 |
94,000 |
10,340 |
0 |
10,340 |
122.90 |
$1,271 |
$0 |
|||||
|
2024 |
91,000 |
91,000 |
10,010 |
0 |
10,010 |
123.89 |
$1,240 |
$0 |
|||||
|
2023 |
90,000 |
90,000 |
9,900 |
0 |
9,900 |
122.82 |
$1,216 |
$0 |
|||||
|
2022 |
62,000 |
41,094 |
4,520 |
0 |
4,520 |
117.63 |
$532 |
$271 |
|||||
|
2021 |
59,000 |
39,138 |
4,305 |
0 |
4,305 |
117.70 |
$507 |
$257 |
|||||
| Property Account Status/Adjustments/Exemptions | ||
|---|---|---|
| Account # | Exemption Description | Amount |
|
R089704250 |
5% Capped Account |
0 |
| Property Deed Transaction History (Recorded in the County Clerk's Office) | ||||||||||
|---|---|---|---|---|---|---|---|---|---|---|
| Date | Type | Book | Page | Price | Grantor | Grantee | ||||
|
4/28/2022 |
|
Deeds |
$30,000 |
DOW REVAC G ETAL |
MCKINNON HOME BUYERS LLC |
|||||
|
4/28/2022 |
|
Deeds |
$75,000 |
MCKINNON HOME BUYERS LLC |
LEGACY INVESTMENT HOLDINGS LLC |
|||||
|
4/28/2022 |
|
Deeds |
$89,000 |
LEGACY INVESTMENT HOLDINGS LLC |
ALCHEMY INVESTMENTS LLC |
|||||
|
4/26/2022 |
|
Deeds |
$30,000 |
DOW REVAC GLENN |
MCKINNON HOME BUYERS LLC |
|||||
|
10/24/2013 |
|
Hmstd Off & |
$0 |
DOW GLENN PER REP OF THE ESTATE OF DUNGTHI TANG |
DOW REVAC G ETAL |
|||||
| Last Mailed Notice of Value (N.O.V.) Information/History | ||||||||
|---|---|---|---|---|---|---|---|---|
| Year | Date | Market Value | Taxable Market Value | Gross Assessed | Exemption | Net Assessed | ||
|
2026 |
02/23/2026 |
101,000 |
98,700 |
10,857 |
0 |
10,857 |
||
|
2025 |
02/14/2025 |
94,000 |
94,000 |
10,340 |
0 |
10,340 |
||
|
2024 |
02/13/2024 |
91,000 |
91,000 |
10,010 |
0 |
10,010 |
||
|
2023 |
02/14/2023 |
90,000 |
90,000 |
9,900 |
0 |
9,900 |
||
|
2022 |
03/15/2022 |
62,000 |
41,094 |
4,520 |
0 |
4,520 |
||
| Property Building Permit History | |||||||||||
|---|---|---|---|---|---|---|---|---|---|---|---|
| Issued | Permit # | Provided by | Bldg # | Description | Est Construction Cost | Status | |||||
| No Building Permit records returned. | |||||||||||
| Click button on building number to access detailed information: | ||||||
|---|---|---|---|---|---|---|
| Bldg # | Vacant/Improved Land | Bldg Description | Year Built | SqFt | # Stories | |
|
1 |
Improved |
Ranch 1 Story |
1948 |
1,047 |
1 Stories |
|