|
|
|
| Larry Stein Oklahoma County Assessor (405) 713-1200 - Public Access System |
|
|
|
|
|
|
| Real Property Display - Screen Produced 3/3/2026 12:59:00 PM | ||||
|---|---|---|---|---|
| Account: R119701700 | Type: Residential | Location: |
1313 NE 42ND ST |
|
| Building Name/Occupant: |
|
OKLAHOMA CITY |
||
| Owner Name 1: | JIMENEZ YULIANA E |
Parcel PIN#: |
2656-11-970-1700 |
|
| Owner Name 2: | 1/4 section #: |
2656 |
||
| Owner Name 3: | Parent Acct: |
|
||
| Billing Address: | 1313 NE 42ND ST | Tax District: |
|
|
| City, State, Zip | OKLAHOMA CITY, OK 73111-5846 | School System: |
Oklahoma City #89 |
|
|
Country: (If noted) |
Land Size: |
0.1928 Acres |
||
|
Land Value: 14,280 |
|
|||
|
Sect 14-T12N-R3W Qtr NW |
PARK ESTATES ADD
Block
002
Lot
000
|
|||
| Full Legal Description: PARK ESTATES ADD 002 000 E6.74FT OF LOT 13 & W53.26FT OF LOT 14 |
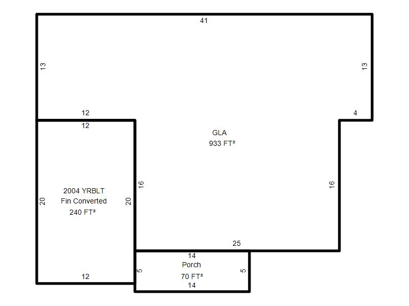
| Photo & Sketch (if available) | Comp Sales (ordered by relevancy) |
|
||||||||||||||||||
|
||||||||||||||||||||
| Value History (*The County Treasurer 405-713-1300 posts & collects actual tax amounts. Contact information HERE) | |||||||||||||
|---|---|---|---|---|---|---|---|---|---|---|---|---|---|
| Year | Market Value | Taxable Mkt Value | Gross Assessed | Exemption | Net Assessed | Millage | Est. Tax | Tax Savings | |||||
|
2025 |
65,000 |
65,000 |
7,150 |
0 |
7,150 |
122.90 |
$879 |
$0 |
|||||
|
2024 |
63,500 |
35,940 |
3,953 |
2,000 |
1,953 |
123.89 |
$242 |
$623 |
|||||
|
2023 |
59,500 |
35,940 |
3,953 |
2,000 |
1,953 |
122.82 |
$240 |
$564 |
|||||
|
2022 |
51,500 |
34,894 |
3,837 |
0 |
3,837 |
117.63 |
$452 |
$215 |
|||||
|
2021 |
49,000 |
33,233 |
3,655 |
0 |
3,655 |
117.70 |
$430 |
$204 |
|||||
| Property Account Status/Adjustments/Exemptions | ||||||
|---|---|---|---|---|---|---|
| Account # | Exemption Description | Amount | ||||
| No adjustment/exemption records returned. | ||||||
| Property Deed Transaction History (Recorded in the County Clerk's Office) | ||||||||||
|---|---|---|---|---|---|---|---|---|---|---|
| Date | Type | Book | Page | Price | Grantor | Grantee | ||||
|
1/30/2025 |
|
Deeds |
$165,000 |
19 MILES INVESTMENTS LLC |
JIMENEZ YULIANA E |
|||||
|
6/7/2024 |
|
Deeds |
$60,000 |
WILEY MAURICE |
19 MILES INVESTMENTS LLC |
|||||
|
4/25/2024 |
|
Hmstd Off & |
$0 |
GABE CHRISTOPHER |
WILEY MAURICE |
|||||
|
12/14/2022 |
|
Deeds |
$0 |
WILEY MARY HELEN |
GABE CHRISTOPHER |
|||||
|
4/28/2022 |
|
Hmstd Off & |
$0 |
WILEY MARY HELEN ETAL |
WILEY MARY HELEN |
|||||
| Last Mailed Notice of Value (N.O.V.) Information/History | ||||||||
|---|---|---|---|---|---|---|---|---|
| Year | Date | Market Value | Taxable Market Value | Gross Assessed | Exemption | Net Assessed | ||
|
2026 |
02/23/2026 |
131,000 |
131,000 |
14,410 |
0 |
14,410 |
||
|
2025 |
02/14/2025 |
65,000 |
65,000 |
7,150 |
0 |
7,150 |
||
|
2025 |
03/28/2025 |
65,000 |
65,000 |
7,150 |
0 |
7,150 |
||
|
2024 |
02/13/2024 |
63,500 |
35,940 |
3,953 |
2,000 |
1,953 |
||
|
2023 |
02/14/2023 |
59,500 |
35,940 |
3,953 |
2,000 |
1,953 |
||
| Property Building Permit History | ||||||
|---|---|---|---|---|---|---|
| Issued | Permit # | Provided by | Bldg # | Description | Est Construction Cost | Status |
|
10/22/2003 |
10283474 |
OKLAHOMA CITY |
1 |
Remodeled |
1,500 |
Inactive |
|
1/30/1995 |
10205835 |
OKLAHOMA CITY |
1 |
Burn - Trip |
100 |
Inactive |
|
1/3/1995 |
10205836 |
OKLAHOMA CITY |
1 |
Burn - Trip |
60,000 |
Inactive |
| Click button on building number to access detailed information: | ||||||
|---|---|---|---|---|---|---|
| Bldg # | Vacant/Improved Land | Bldg Description | Year Built | SqFt | # Stories | |
|
1 |
Improved |
Ranch 1 Story |
1949 |
933 |
1 Stories |
|