|
|
|
| Larry Stein Oklahoma County Assessor (405) 713-1200 - Public Access System |
|
|
|
|
|
|
| Real Property Display - Screen Produced 3/12/2026 8:26:00 PM | ||||
|---|---|---|---|---|
| Account: R206421300 | Type: Residential | Location: |
14220 SE 76TH PL |
|
| Building Name/Occupant: |
|
OKLAHOMA CITY |
||
| Owner Name 1: | NEWBERRY AMANDA & GRANT |
Parcel PIN#: |
1340-20-642-1300 |
|
| Owner Name 2: | 1/4 section #: |
1340 |
||
| Owner Name 3: | Parent Acct: |
1340-16-852-5910 |
||
| Billing Address: | 14220 SE 76TH PL | Tax District: |
|
|
| City, State, Zip | OKLAHOMA CITY, OK 73150-2000 | School System: |
Choctaw #4 |
|
|
Country: (If noted) |
Land Size: |
1.5900 Acres |
||
|
Land Value: 70,490 |
|
|||
|
Sect 35-T11N-R1W Qtr NW |
DEERFIELD WEST
Block
012
Lot
009
|
|||
| Full Legal Description: DEERFIELD WEST 012 009 |
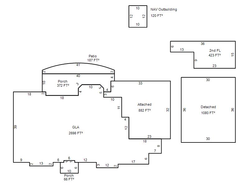
| Photo & Sketch (if available) | Comp Sales (ordered by relevancy) |
|
||||||||||||||||||
|
||||||||||||||||||||
| Value History (*The County Treasurer 405-713-1300 posts & collects actual tax amounts. Contact information HERE) | |||||||||||||
|---|---|---|---|---|---|---|---|---|---|---|---|---|---|
| Year | Market Value | Taxable Mkt Value | Gross Assessed | Exemption | Net Assessed | Millage | Est. Tax | Tax Savings | |||||
|
2025 |
601,500 |
450,749 |
49,582 |
49,582 |
0 |
132.37 |
$0 |
$8,758 |
|||||
|
2024 |
617,000 |
437,621 |
48,138 |
48,138 |
0 |
131.28 |
$0 |
$8,910 |
|||||
|
2023 |
605,500 |
424,875 |
46,736 |
46,736 |
0 |
131.88 |
$0 |
$8,784 |
|||||
|
2022 |
412,500 |
412,500 |
45,375 |
0 |
45,375 |
130.63 |
$5,927 |
$0 |
|||||
|
2021 |
412,500 |
412,500 |
45,375 |
0 |
45,375 |
129.79 |
$5,889 |
$0 |
|||||
| Property Account Status/Adjustments/Exemptions | ||||||
|---|---|---|---|---|---|---|
| Account # | Exemption Description | Amount | ||||
| No adjustment/exemption records returned. | ||||||
| Property Deed Transaction History (Recorded in the County Clerk's Office) | |||||||
|---|---|---|---|---|---|---|---|
| Date | Type | Book | Page | Price | Grantor | Grantee | |
|
7/7/2025 |
|
Deeds |
$625,000 |
MAYS FRANKLIN & NICOLE |
NEWBERRY AMANDA & GRANT |
||
|
5/30/2017 |
|
Deeds |
$393,000 |
WHORTON CHRIS WHORTON LAURA |
MAYS FRANKLIN & NICOLE |
||
|
12/5/2008 |
|
Deeds |
$35,000 |
TRAILS END HOMES INC |
WHORTON CHRIS WHORTON LAURA |
||
|
11/26/2008 |
|
Hmstd Off & |
$0 |
RIDGEDALE LAND INC |
TRAILS END HOMES INC |
||
| Last Mailed Notice of Value (N.O.V.) Information/History | ||||||||
|---|---|---|---|---|---|---|---|---|
| Year | Date | Market Value | Taxable Market Value | Gross Assessed | Exemption | Net Assessed | ||
|
2026 |
02/06/2026 |
656,000 |
656,000 |
72,160 |
0 |
72,160 |
||
|
2025 |
01/31/2025 |
601,500 |
450,749 |
49,582 |
49,582 |
0 |
||
|
2024 |
01/22/2024 |
617,000 |
437,621 |
48,138 |
48,138 |
0 |
||
|
2023 |
01/23/2023 |
605,500 |
433,125 |
47,643 |
0 |
47,643 |
||
|
2017 |
02/24/2017 |
442,000 |
442,000 |
|
|
|
||
| Property Building Permit History | |||||||||||
|---|---|---|---|---|---|---|---|---|---|---|---|
| Issued | Permit # | Provided by | Bldg # | Description | Est Construction Cost | Status | |||||
|
9/26/2013 |
10455127 |
OKLAHOMA CITY |
1 |
Burn - Trip |
12,000 |
Inactive |
|||||
|
10/28/2010 |
10415017 |
OKLAHOMA CITY |
1 |
Swimming Pool |
39,418 |
Inactive |
|||||
|
6/9/2010 |
10405938 |
OKLAHOMA CITY |
1 |
Main Dwellin |
25,000 |
Inactive |
|||||
|
6/7/2010 |
10405318 |
OKLAHOMA CITY |
1 |
Demolish |
0 |
Inactive |
|||||
|
6/7/2010 |
10399109 |
OKLAHOMA CITY |
1 |
Main Dwellin |
250,000 |
Inactive |
|||||
| Click button on building number to access detailed information: | ||||||
|---|---|---|---|---|---|---|
| Bldg # | Vacant/Improved Land | Bldg Description | Year Built | SqFt | # Stories | |
|
1 |
Improved |
1½ Story Fin |
2010 |
3,121 |
1.5 Stories |
|