|
|
|
| Larry Stein Oklahoma County Assessor (405) 713-1200 - Public Access System |
|
|
|
|
|
|
| Real Property Display - Screen Produced 3/24/2026 12:29:09 PM | ||||
|---|---|---|---|---|
| Account: R049642530 | Type: Residential | Location: |
708 NW 48TH ST |
|
| Building Name/Occupant: |
|
OKLAHOMA CITY |
||
| Owner Name 1: | PEACOCK PAIGE |
Parcel PIN#: |
2664-04-964-2530 |
|
| Owner Name 2: | 1/4 section #: |
2664 |
||
| Owner Name 3: | Parent Acct: |
|
||
| Billing Address: | 708 NW 48TH ST | Tax District: |
|
|
| City, State, Zip | OKLAHOMA CITY, OK 73118-6623 | School System: |
Oklahoma City #89 |
|
|
Country: (If noted) |
Land Size: |
0.1607 Acres |
||
|
Land Value: 46,200 |
|
|||
|
Sect 16-T12N-R3W Qtr NW |
DOUGLAS PLACE ADD
Block
010
Lot
000
|
|||
| Full Legal Description: DOUGLAS PLACE ADD 010 000 LOTS 17 & 18 |
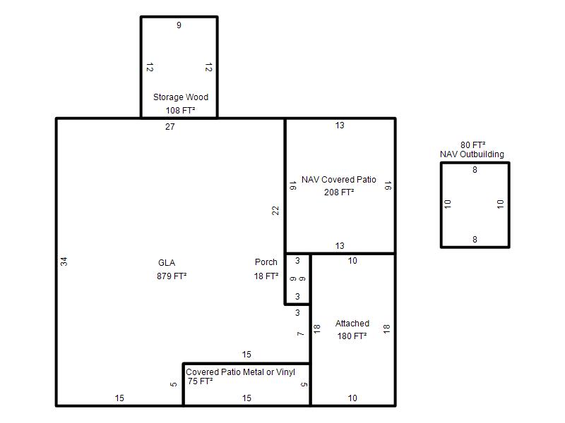
| Photo & Sketch (if available) | Comp Sales (ordered by relevancy) |
|
||||||||||||||||||
|
||||||||||||||||||||
| Value History (*The County Treasurer 405-713-1300 posts & collects actual tax amounts. Contact information HERE) | |||||||||||||
|---|---|---|---|---|---|---|---|---|---|---|---|---|---|
| Year | Market Value | Taxable Mkt Value | Gross Assessed | Exemption | Net Assessed | Millage | Est. Tax | Tax Savings | |||||
|
2025 |
170,000 |
170,000 |
18,700 |
0 |
18,700 |
122.90 |
$2,298 |
$0 |
|||||
|
2024 |
154,000 |
61,246 |
6,737 |
1,000 |
5,737 |
123.89 |
$711 |
$1,388 |
|||||
|
2023 |
144,000 |
61,246 |
6,737 |
1,000 |
5,737 |
122.82 |
$705 |
$1,241 |
|||||
|
2022 |
127,500 |
61,246 |
6,737 |
1,000 |
5,737 |
117.63 |
$675 |
$975 |
|||||
|
2021 |
120,000 |
61,246 |
6,737 |
1,000 |
5,737 |
117.70 |
$675 |
$878 |
|||||
| Property Account Status/Adjustments/Exemptions | ||||||
|---|---|---|---|---|---|---|
| Account # | Exemption Description | Amount | ||||
| No adjustment/exemption records returned. | ||||||
| Property Deed Transaction History (Recorded in the County Clerk's Office) | ||||||||||
|---|---|---|---|---|---|---|---|---|---|---|
| Date | Type | Book | Page | Price | Grantor | Grantee | ||||
|
4/8/2025 |
|
Deeds |
$217,500 |
S B INVESTMENT GROUP LLC |
PEACOCK PAIGE |
|||||
|
10/7/2024 |
|
Hmstd Off & |
$0 |
S B INVESTMENT GROUP LLC |
S B INVESTMENT GROUP LLC |
|||||
|
9/9/2024 |
|
Deeds |
$129,000 |
GORE NICOLE ROCHELLE |
SUPREME INVESTMENTS LLC |
|||||
|
9/7/2024 |
|
Deeds |
$133,500 |
SUPREME INVESTMENTS LLC |
S & B INVESTMENT GROUP LLC |
|||||
|
10/12/2022 |
|
Hmstd Off & |
$0 |
HARPER CONSTANCE |
HARPER DANNY WEAVER |
|||||
| Last Mailed Notice of Value (N.O.V.) Information/History | ||||||||
|---|---|---|---|---|---|---|---|---|
| Year | Date | Market Value | Taxable Market Value | Gross Assessed | Exemption | Net Assessed | ||
|
2026 |
02/23/2026 |
209,500 |
209,500 |
23,045 |
0 |
23,045 |
||
|
2025 |
02/14/2025 |
170,000 |
170,000 |
18,700 |
0 |
18,700 |
||
|
2024 |
02/13/2024 |
154,000 |
61,246 |
6,737 |
1,000 |
5,737 |
||
|
2023 |
02/14/2023 |
144,000 |
61,246 |
6,737 |
1,000 |
5,737 |
||
|
2022 |
03/15/2022 |
127,500 |
61,246 |
6,737 |
1,000 |
5,737 |
||
| Property Building Permit History | |||||||||||
|---|---|---|---|---|---|---|---|---|---|---|---|
| Issued | Permit # | Provided by | Bldg # | Description | Est Construction Cost | Status | |||||
| No Building Permit records returned. | |||||||||||
| Click button on building number to access detailed information: | ||||||
|---|---|---|---|---|---|---|
| Bldg # | Vacant/Improved Land | Bldg Description | Year Built | SqFt | # Stories | |
|
1 |
Improved |
Ranch 1 Story |
1940 |
879 |
1 Stories |
|