|
|
|
| Larry Stein Oklahoma County Assessor (405) 713-1200 - Public Access System |
|
|
|
|
|
|
| Real Property Display - Screen Produced 3/26/2026 5:49:04 AM | ||||
|---|---|---|---|---|
| Account: R049644060 | Type: Residential | Location: |
621 NW 46TH ST |
|
| Building Name/Occupant: |
|
OKLAHOMA CITY |
||
| Owner Name 1: | HENNESSY ALVIN JOHN IV |
Parcel PIN#: |
2664-04-964-4060 |
|
| Owner Name 2: | 1/4 section #: |
2664 |
||
| Owner Name 3: | Parent Acct: |
|
||
| Billing Address: | 621 NW 46TH ST | Tax District: |
|
|
| City, State, Zip | OKLAHOMA CITY, OK 73118-6609 | School System: |
Oklahoma City #89 |
|
|
Country: (If noted) |
Land Size: |
0.1607 Acres |
||
|
Land Value: 46,200 |
|
|||
|
Sect 16-T12N-R3W Qtr NW |
DOUGLAS PLACE ADD
Block
015
Lot
000
|
|||
| Full Legal Description: DOUGLAS PLACE ADD 015 000 LOTS 37 & 38 |
| Photo & Sketch (if available) | Comp Sales (ordered by relevancy) |
|
||||||||||||||||||
|
||||||||||||||||||||
| Value History (*The County Treasurer 405-713-1300 posts & collects actual tax amounts. Contact information HERE) | |||||||||||||
|---|---|---|---|---|---|---|---|---|---|---|---|---|---|
| Year | Market Value | Taxable Mkt Value | Gross Assessed | Exemption | Net Assessed | Millage | Est. Tax | Tax Savings | |||||
|
2026 |
298,500 |
298,500 |
32,835 |
0 |
32,835 |
122.90 |
$4,035 |
$0 |
|||||
|
2025 |
292,500 |
292,500 |
32,175 |
0 |
32,175 |
122.90 |
$3,954 |
$0 |
|||||
|
2024 |
270,500 |
261,292 |
28,741 |
0 |
28,741 |
123.89 |
$3,561 |
$125 |
|||||
|
2023 |
253,500 |
248,850 |
27,373 |
0 |
27,373 |
122.82 |
$3,362 |
$63 |
|||||
|
2022 |
237,000 |
237,000 |
26,070 |
0 |
26,070 |
117.63 |
$3,067 |
$0 |
|||||
| Property Account Status/Adjustments/Exemptions | ||
|---|---|---|
| Account # | Exemption Description | Amount |
|
R049644060 |
5% Capped Account |
0 |
| Property Deed Transaction History (Recorded in the County Clerk's Office) | ||||||||||
|---|---|---|---|---|---|---|---|---|---|---|
| Date | Type | Book | Page | Price | Grantor | Grantee | ||||
|
6/14/2024 |
|
Deeds |
$325,000 |
SCHODLBAUER DANIEL |
HENNESSY ALVIN JOHN IV |
|||||
|
7/1/2020 |
|
Deeds |
$255,500 |
ROMANO ERICA BETH |
SCHODLBAUER DANIEL |
|||||
|
5/24/2018 |
|
Deeds |
$219,000 |
716 INVESTMENTS LLC |
ROMANO ERICA BETH |
|||||
|
12/27/2017 |
|
Deeds |
$150,000 |
LANGSDORF ALENE D TRUST |
716 INVESTMENTS LLC |
|||||
|
4/6/2017 |
|
Deeds |
$0 |
LANGSDORF ALENE D |
LANGSDORF ALENE D TRUST |
|||||
| Last Mailed Notice of Value (N.O.V.) Information/History | ||||||||
|---|---|---|---|---|---|---|---|---|
| Year | Date | Market Value | Taxable Market Value | Gross Assessed | Exemption | Net Assessed | ||
|
2026 |
02/23/2026 |
298,500 |
298,500 |
32,835 |
0 |
32,835 |
||
|
2025 |
02/14/2025 |
292,500 |
292,500 |
32,175 |
0 |
32,175 |
||
|
2024 |
02/13/2024 |
270,500 |
261,292 |
28,741 |
0 |
28,741 |
||
|
2023 |
02/14/2023 |
253,500 |
248,850 |
27,373 |
0 |
27,373 |
||
|
2021 |
03/19/2021 |
252,500 |
252,500 |
27,775 |
0 |
27,775 |
||
| Property Building Permit History | |||||||||||
|---|---|---|---|---|---|---|---|---|---|---|---|
| Issued | Permit # | Provided by | Bldg # | Description | Est Construction Cost | Status | |||||
| No Building Permit records returned. | |||||||||||
| Click button on building number to access detailed information: | ||||||
|---|---|---|---|---|---|---|
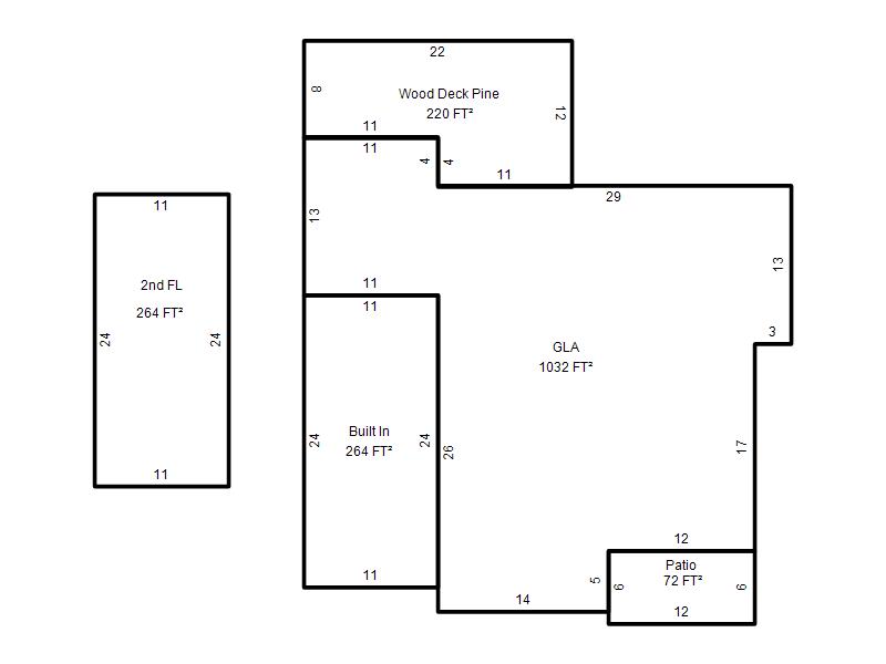
| Bldg # | Vacant/Improved Land | Bldg Description | Year Built | SqFt | # Stories | |
|
1 |
Improved |
1½ Story Fin |
1941 |
1,296 |
1.5 Stories |
|