|
|
|
| Larry Stein Oklahoma County Assessor (405) 713-1200 - Public Access System |
|
|
|
|
|
|
| Real Property Display - Screen Produced 4/2/2026 2:35:17 PM | ||||
|---|---|---|---|---|
| Account: R056757200 | Type: Residential | Location: |
1225 NW 44TH ST |
|
| Building Name/Occupant: |
|
OKLAHOMA CITY |
||
| Owner Name 1: | GOLD MADELEINE RUSSELL |
Parcel PIN#: |
2665-05-675-7200 |
|
| Owner Name 2: | GOLD DYLAN P | 1/4 section #: |
2665 |
|
| Owner Name 3: | Parent Acct: |
|
||
| Billing Address: | 1225 NW 44TH ST | Tax District: |
|
|
| City, State, Zip | OKLAHOMA CITY, OK 73118-5222 | School System: |
Oklahoma City #89 |
|
|
Country: (If noted) |
Land Size: |
0.1618 Acres |
||
|
Land Value: 40,538 |
|
|||
|
Sect 17-T12N-R3W Qtr NE |
NELSONS SUB ADDITION
Block
011
Lot
016
|
|||
| Full Legal Description: NELSONS SUB ADDITION 011 016 |
| Photo & Sketch (if available) | Comp Sales (ordered by relevancy) |
|
||||||||||||||||||
|
||||||||||||||||||||
| Value History (*The County Treasurer 405-713-1300 posts & collects actual tax amounts. Contact information HERE) | |||||||||||||
|---|---|---|---|---|---|---|---|---|---|---|---|---|---|
| Year | Market Value | Taxable Mkt Value | Gross Assessed | Exemption | Net Assessed | Millage | Est. Tax | Tax Savings | |||||
|
2026 |
229,000 |
229,000 |
25,190 |
0 |
25,190 |
122.90 |
$3,096 |
$0 |
|||||
|
2025 |
227,500 |
227,500 |
25,025 |
0 |
25,025 |
122.90 |
$3,076 |
$0 |
|||||
|
2024 |
228,500 |
228,500 |
25,135 |
0 |
25,135 |
123.89 |
$3,114 |
$0 |
|||||
|
2023 |
211,000 |
172,295 |
18,952 |
0 |
18,952 |
122.82 |
$2,328 |
$523 |
|||||
|
2022 |
187,000 |
164,091 |
18,049 |
0 |
18,049 |
117.63 |
$2,123 |
$296 |
|||||
| Property Account Status/Adjustments/Exemptions | ||
|---|---|---|
| Account # | Exemption Description | Amount |
|
R056757200 |
5% Capped Account |
0 |
| Property Deed Transaction History (Recorded in the County Clerk's Office) | |||||||
|---|---|---|---|---|---|---|---|
| Date | Type | Book | Page | Price | Grantor | Grantee | |
|
11/17/2023 |
|
Deeds |
$225,000 |
HUDSON ZACKARY COLT |
GOLD MADELEINE RUSSELL |
||
|
10/21/2014 |
|
Hmstd Off & |
$0 |
HUDSON KATIE M & ZACK C |
HUDSON ZACKARY COLT |
||
|
6/21/2013 |
|
Deeds |
$135,000 |
BUCK ALICE A |
HUDSON KATIE M & ZACK C |
||
|
6/1/1978 |
|
Historical |
$0 |
|
BUCK ALICE A |
||
| Last Mailed Notice of Value (N.O.V.) Information/History | ||||||||
|---|---|---|---|---|---|---|---|---|
| Year | Date | Market Value | Taxable Market Value | Gross Assessed | Exemption | Net Assessed | ||
|
2026 |
02/23/2026 |
229,000 |
229,000 |
25,190 |
0 |
25,190 |
||
|
2024 |
02/13/2024 |
228,500 |
228,500 |
25,135 |
0 |
25,135 |
||
|
2023 |
02/14/2023 |
211,000 |
172,295 |
18,952 |
0 |
18,952 |
||
|
2022 |
03/15/2022 |
187,000 |
164,091 |
18,049 |
0 |
18,049 |
||
|
2021 |
03/19/2021 |
170,000 |
156,278 |
17,190 |
0 |
17,190 |
||
| Property Building Permit History | |||||||||||
|---|---|---|---|---|---|---|---|---|---|---|---|
| Issued | Permit # | Provided by | Bldg # | Description | Est Construction Cost | Status | |||||
| No Building Permit records returned. | |||||||||||
| Click button on building number to access detailed information: | ||||||
|---|---|---|---|---|---|---|
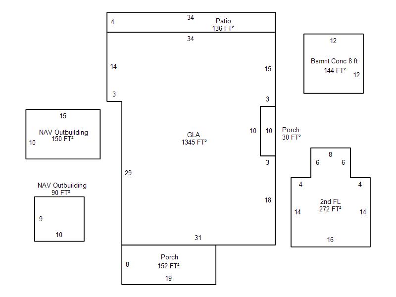
| Bldg # | Vacant/Improved Land | Bldg Description | Year Built | SqFt | # Stories | |
|
1 |
Improved |
1½ Story Fin |
1918 |
1,617 |
1.5 Stories |
|