|
|
|
| Larry Stein Oklahoma County Assessor (405) 713-1200 - Public Access System |
|
|
|
|
|
|
| Real Property Display - Screen Produced 4/6/2026 8:07:51 AM | ||||
|---|---|---|---|---|
| Account: R054854221 | Type: Residential | Location: |
1133 NW 36TH ST |
|
| Building Name/Occupant: |
|
OKLAHOMA CITY |
||
| Owner Name 1: | HARMON ELLEN |
Parcel PIN#: |
2666-05-485-4221 |
|
| Owner Name 2: | KASERMAN DAVID | 1/4 section #: |
2666 |
|
| Owner Name 3: | Parent Acct: |
|
||
| Billing Address: | 1133 NW 36TH ST | Tax District: |
|
|
| City, State, Zip | OKLAHOMA CITY, OK 73118-5601 | School System: |
Oklahoma City #89 |
|
|
Country: (If noted) |
Land Size: |
0.1951 Acres |
||
|
Land Value: 51,850 |
|
|||
|
Sect 17-T12N-R3W Qtr SE |
PUTNAM HEIGHTS ADD
Block
024
Lot
000
|
|||
| Full Legal Description: PUTNAM HEIGHTS ADD 024 000 LOTS 39 & 40 |
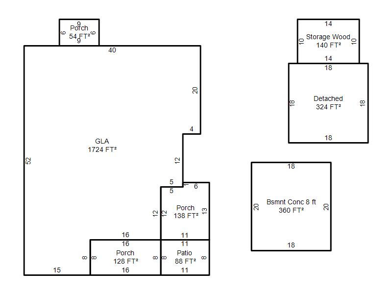
| Photo & Sketch (if available) | Comp Sales (ordered by relevancy) |
|
||||||||||||||||||
|
||||||||||||||||||||
| Value History (*The County Treasurer 405-713-1300 posts & collects actual tax amounts. Contact information HERE) | |||||||||||||
|---|---|---|---|---|---|---|---|---|---|---|---|---|---|
| Year | Market Value | Taxable Mkt Value | Gross Assessed | Exemption | Net Assessed | Millage | Est. Tax | Tax Savings | |||||
|
2026 |
318,000 |
318,000 |
34,980 |
0 |
34,980 |
122.90 |
$4,299 |
$0 |
|||||
|
2025 |
317,500 |
288,681 |
31,754 |
0 |
31,754 |
122.90 |
$3,903 |
$390 |
|||||
|
2024 |
309,500 |
274,935 |
30,242 |
0 |
30,242 |
123.89 |
$3,747 |
$471 |
|||||
|
2023 |
295,500 |
261,843 |
28,802 |
0 |
28,802 |
122.82 |
$3,538 |
$455 |
|||||
|
2022 |
276,000 |
249,375 |
27,431 |
0 |
27,431 |
117.63 |
$3,227 |
$345 |
|||||
| Property Account Status/Adjustments/Exemptions | ||||||
|---|---|---|---|---|---|---|
| Account # | Exemption Description | Amount | ||||
| No adjustment/exemption records returned. | ||||||
| Property Deed Transaction History (Recorded in the County Clerk's Office) | ||||||||||
|---|---|---|---|---|---|---|---|---|---|---|
| Date | Type | Book | Page | Price | Grantor | Grantee | ||||
|
1/5/2026 |
|
Hmstd Off & |
$0 |
HARMON ELLEN |
HARMON ELLEN |
|||||
|
1/17/2025 |
|
Deeds |
$306,000 |
HOLBERT SAMUEL B |
HARMON ELLEN |
|||||
|
5/29/2020 |
|
Deeds |
$250,000 |
WEIS MAX & BAILEY |
HOLBERT SAMUEL B |
|||||
|
5/7/2018 |
|
Deeds |
$218,000 |
LINDSEY BRIDGET M & DANIEL C |
WEIS MAX & BAILEY |
|||||
|
1/21/2014 |
|
Deeds |
$160,000 |
GOSTAR LLC |
LINDSEY BRIDGET M & DANIEL C |
|||||
| Last Mailed Notice of Value (N.O.V.) Information/History | ||||||||
|---|---|---|---|---|---|---|---|---|
| Year | Date | Market Value | Taxable Market Value | Gross Assessed | Exemption | Net Assessed | ||
|
2026 |
02/23/2026 |
318,000 |
318,000 |
34,980 |
0 |
34,980 |
||
|
2025 |
02/14/2025 |
317,500 |
288,681 |
31,754 |
0 |
31,754 |
||
|
2024 |
02/13/2024 |
309,500 |
274,935 |
30,242 |
0 |
30,242 |
||
|
2023 |
02/14/2023 |
295,500 |
261,843 |
28,802 |
0 |
28,802 |
||
|
2022 |
03/15/2022 |
276,000 |
249,375 |
27,431 |
0 |
27,431 |
||
| Property Building Permit History | |||||||||||
|---|---|---|---|---|---|---|---|---|---|---|---|
| Issued | Permit # | Provided by | Bldg # | Description | Est Construction Cost | Status | |||||
| No Building Permit records returned. | |||||||||||
| Click button on building number to access detailed information: | ||||||
|---|---|---|---|---|---|---|
| Bldg # | Vacant/Improved Land | Bldg Description | Year Built | SqFt | # Stories | |
|
1 |
Improved |
Ranch 1 Story |
1935 |
1,724 |
1 Stories |
|