|
|
|
| Larry Stein Oklahoma County Assessor (405) 713-1200 - Public Access System |
|
|
|
|
|
|
| Real Property Display - Screen Produced 3/22/2026 10:01:11 AM | ||||
|---|---|---|---|---|
| Account: R059460850 | Type: Residential | Location: |
4220 N CHICAGO ST |
|
| Building Name/Occupant: |
|
OKLAHOMA CITY |
||
| Owner Name 1: | RED EARTH PROPERTY MANAGEMENT LLC |
Parcel PIN#: |
2671-05-946-0850 |
|
| Owner Name 2: | 1/4 section #: |
2671 |
||
| Owner Name 3: | Parent Acct: |
|
||
| Billing Address: | 2298 NW 223RD ST | Tax District: |
|
|
| City, State, Zip | EDMOND, OK 73025 | School System: |
Oklahoma City #89 |
|
|
Country: (If noted) |
Land Size: |
0.1515 Acres |
||
|
Land Value: 22,770 |
|
|||
|
Sect 18-T12N-R3W Qtr SW |
MAFAY ADDITION
Block
002
Lot
011
|
|||
| Full Legal Description: MAFAY ADDITION 002 011 |
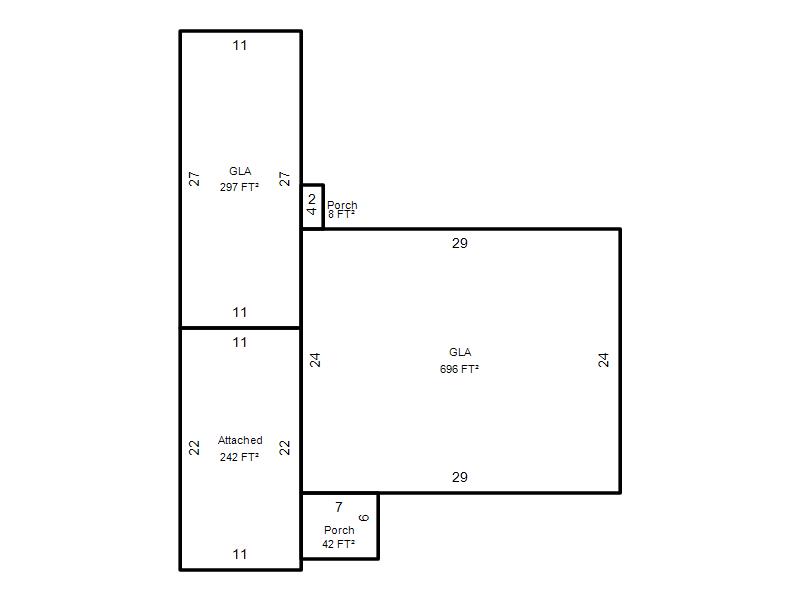
| Photo & Sketch (if available) | Comp Sales (ordered by relevancy) |
|
||||||||||||||||||
|
||||||||||||||||||||
| Value History (*The County Treasurer 405-713-1300 posts & collects actual tax amounts. Contact information HERE) | |||||||||||||
|---|---|---|---|---|---|---|---|---|---|---|---|---|---|
| Year | Market Value | Taxable Mkt Value | Gross Assessed | Exemption | Net Assessed | Millage | Est. Tax | Tax Savings | |||||
|
2025 |
121,500 |
120,750 |
13,282 |
0 |
13,282 |
122.90 |
$1,632 |
$10 |
|||||
|
2024 |
115,000 |
115,000 |
12,650 |
0 |
12,650 |
123.89 |
$1,567 |
$0 |
|||||
|
2023 |
111,000 |
111,000 |
12,210 |
0 |
12,210 |
122.82 |
$1,500 |
$0 |
|||||
|
2022 |
79,500 |
70,008 |
7,700 |
0 |
7,700 |
117.63 |
$906 |
$123 |
|||||
|
2021 |
72,000 |
66,675 |
7,334 |
0 |
7,334 |
117.70 |
$863 |
$69 |
|||||
| Property Account Status/Adjustments/Exemptions | ||
|---|---|---|
| Account # | Exemption Description | Amount |
|
R059460850 |
5% Capped Account |
0 |
| Property Deed Transaction History (Recorded in the County Clerk's Office) | |||||||
|---|---|---|---|---|---|---|---|
| Date | Type | Book | Page | Price | Grantor | Grantee | |
|
10/21/2022 |
|
Deeds |
$110,000 |
MINKOFF BARBARA L TRS |
RED EARTH PROPERTY MANAGEMENT LLC |
||
|
6/16/1999 |
|
Deeds |
$0 |
MINKOFF BARBARA L |
MINKOFF BARBARA L TRS |
||
|
3/1/1976 |
|
Historical |
$0 |
|
MINKOFF BARBARA L |
||
| Last Mailed Notice of Value (N.O.V.) Information/History | ||||||||
|---|---|---|---|---|---|---|---|---|
| Year | Date | Market Value | Taxable Market Value | Gross Assessed | Exemption | Net Assessed | ||
|
2026 |
02/23/2026 |
129,500 |
126,787 |
13,946 |
0 |
13,946 |
||
|
2025 |
02/14/2025 |
121,500 |
120,750 |
13,282 |
0 |
13,282 |
||
|
2024 |
02/13/2024 |
115,000 |
115,000 |
12,650 |
0 |
12,650 |
||
|
2023 |
02/14/2023 |
111,000 |
111,000 |
12,210 |
0 |
12,210 |
||
|
2022 |
03/15/2022 |
79,500 |
70,008 |
7,700 |
0 |
7,700 |
||
| Property Building Permit History | |||||||||||
|---|---|---|---|---|---|---|---|---|---|---|---|
| Issued | Permit # | Provided by | Bldg # | Description | Est Construction Cost | Status | |||||
| No Building Permit records returned. | |||||||||||
| Click button on building number to access detailed information: | ||||||
|---|---|---|---|---|---|---|
| Bldg # | Vacant/Improved Land | Bldg Description | Year Built | SqFt | # Stories | |
|
1 |
Improved |
Ranch 1 Story |
1950 |
993 |
1 Stories |
|