|
|
|
| Larry Stein Oklahoma County Assessor (405) 713-1200 - Public Access System |
|
|
|
|
|
|
| Real Property Display - Screen Produced 4/4/2026 4:20:02 PM | ||||
|---|---|---|---|---|
| Account: R053254650 | Type: Residential | Location: |
2112 NW 33RD ST |
|
| Building Name/Occupant: |
|
OKLAHOMA CITY |
||
| Owner Name 1: | BRAGG RACHAEL & JACQUELYN |
Parcel PIN#: |
2673-05-325-4650 |
|
| Owner Name 2: | 1/4 section #: |
2673 |
||
| Owner Name 3: | Parent Acct: |
|
||
| Billing Address: | 2112 NW 33RD ST | Tax District: |
|
|
| City, State, Zip | OKLAHOMA CITY, OK 73112-7924 | School System: |
Oklahoma City #89 |
|
|
Country: (If noted) |
Land Size: |
0.1607 Acres |
||
|
Land Value: 16,450 |
|
|||
|
Sect 19-T12N-R3W Qtr NE |
WEST POINT AMD E2
Block
009
Lot
000
|
|||
| Full Legal Description: WEST POINT AMD E2 009 000 LOTS 7 & 8 |
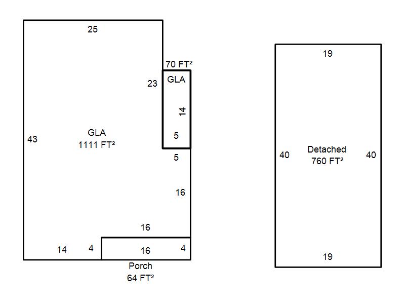
| Photo & Sketch (if available) | Comp Sales (ordered by relevancy) |
|
||||||||||||||||||
|
||||||||||||||||||||
| Value History (*The County Treasurer 405-713-1300 posts & collects actual tax amounts. Contact information HERE) | |||||||||||||
|---|---|---|---|---|---|---|---|---|---|---|---|---|---|
| Year | Market Value | Taxable Mkt Value | Gross Assessed | Exemption | Net Assessed | Millage | Est. Tax | Tax Savings | |||||
|
2026 |
222,500 |
222,500 |
24,475 |
1,000 |
23,475 |
122.90 |
$2,885 |
$123 |
|||||
|
2025 |
231,000 |
231,000 |
25,410 |
0 |
25,410 |
122.90 |
$3,123 |
$0 |
|||||
|
2024 |
130,500 |
85,094 |
9,359 |
0 |
9,359 |
123.89 |
$1,160 |
$619 |
|||||
|
2023 |
122,500 |
81,042 |
8,914 |
0 |
8,914 |
122.82 |
$1,095 |
$560 |
|||||
|
2022 |
91,500 |
77,183 |
8,489 |
0 |
8,489 |
117.63 |
$999 |
$185 |
|||||
| Property Account Status/Adjustments/Exemptions | ||
|---|---|---|
| Account # | Exemption Description | Amount |
|
R053254650 |
3% Cap Homestead |
0 |
|
R053254650 |
Homestead |
1,000 |
| Property Deed Transaction History (Recorded in the County Clerk's Office) | ||||||||||
|---|---|---|---|---|---|---|---|---|---|---|
| Date | Type | Book | Page | Price | Grantor | Grantee | ||||
|
1/5/2024 |
|
Deeds |
$245,000 |
GDS HOLDINGS LLC SERIES 2112 NW 33RD |
BRAGG RACHAEL & JACQUELYN |
|||||
|
1/1/2016 |
|
Hmstd Off & |
$0 |
SILVERNAIL 2 LLC |
GDS HOLDINGS LLC SERIES 2112 NW 33RD |
|||||
|
1/27/2010 |
|
Deeds |
$29,000 |
YUKON NATIONAL BANK |
SILVERNAIL 2 LLC |
|||||
|
6/30/2008 |
|
Hmstd Off & |
$0 |
RICH MICHAEL |
YUKON NATIONAL BANK |
|||||
|
3/18/1993 |
|
Historical |
$0 |
LIBERTY NATIONAL BANK |
RICH MICHAEL |
|||||
| Last Mailed Notice of Value (N.O.V.) Information/History | ||||||||
|---|---|---|---|---|---|---|---|---|
| Year | Date | Market Value | Taxable Market Value | Gross Assessed | Exemption | Net Assessed | ||
|
2025 |
02/14/2025 |
231,000 |
231,000 |
25,410 |
0 |
25,410 |
||
|
2024 |
02/13/2024 |
130,500 |
85,094 |
9,359 |
0 |
9,359 |
||
|
2023 |
02/14/2023 |
122,500 |
81,042 |
8,914 |
0 |
8,914 |
||
|
2022 |
03/15/2022 |
91,500 |
77,183 |
8,489 |
0 |
8,489 |
||
|
2021 |
03/19/2021 |
83,500 |
73,508 |
8,085 |
0 |
8,085 |
||
| Property Building Permit History | |||||||||||
|---|---|---|---|---|---|---|---|---|---|---|---|
| Issued | Permit # | Provided by | Bldg # | Description | Est Construction Cost | Status | |||||
| No Building Permit records returned. | |||||||||||
| Click button on building number to access detailed information: | ||||||
|---|---|---|---|---|---|---|
| Bldg # | Vacant/Improved Land | Bldg Description | Year Built | SqFt | # Stories | |
|
1 |
Improved |
Ranch 1 Story |
1946 |
1,181 |
1 Stories |
|