|
|
|
| Larry Stein Oklahoma County Assessor (405) 713-1200 - Public Access System |
|
|
|
|
|
|
| Real Property Display - Screen Produced 3/16/2026 1:09:05 PM | ||||
|---|---|---|---|---|
| Account: R053255575 | Type: Residential | Location: |
2243 NW 32ND ST |
|
| Building Name/Occupant: |
|
OKLAHOMA CITY |
||
| Owner Name 1: | STEHSEL AUDREY |
Parcel PIN#: |
2673-05-325-5575 |
|
| Owner Name 2: | 1/4 section #: |
2673 |
||
| Owner Name 3: | Parent Acct: |
|
||
| Billing Address: | 2243 NW 32ND ST | Tax District: |
|
|
| City, State, Zip | OKLAHOMA CITY, OK 73112-7921 | School System: |
Oklahoma City #89 |
|
|
Country: (If noted) |
Land Size: |
0.1607 Acres |
||
|
Land Value: 16,450 |
|
|||
|
Sect 19-T12N-R3W Qtr NE |
WEST POINT AMD E2
Block
010
Lot
000
|
|||
| Full Legal Description: WEST POINT AMD E2 010 000 LOTS 28 & 29 |
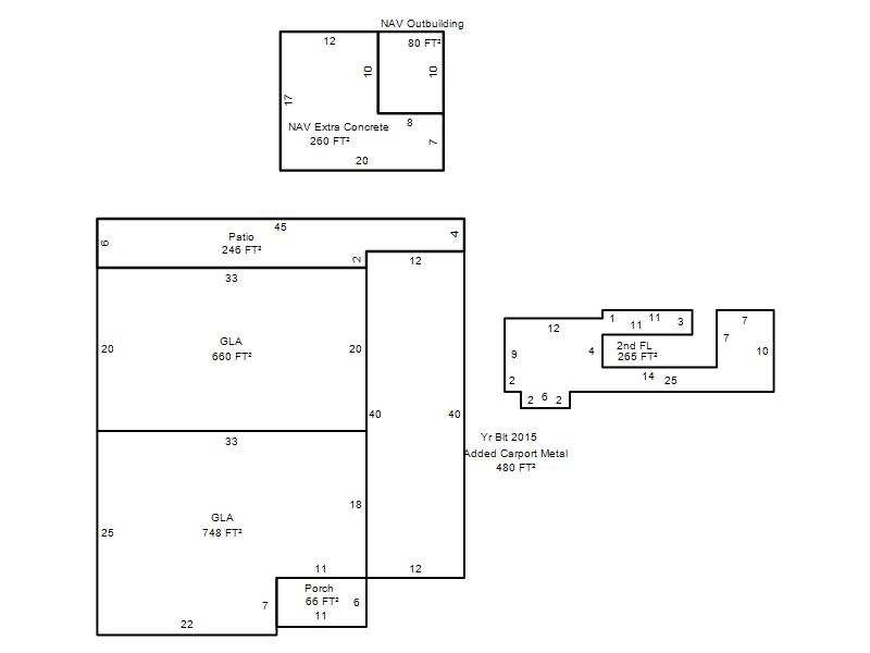
| Photo & Sketch (if available) | Comp Sales (ordered by relevancy) |
|
||||||||||||||||||
|
||||||||||||||||||||
| Value History (*The County Treasurer 405-713-1300 posts & collects actual tax amounts. Contact information HERE) | |||||||||||||
|---|---|---|---|---|---|---|---|---|---|---|---|---|---|
| Year | Market Value | Taxable Mkt Value | Gross Assessed | Exemption | Net Assessed | Millage | Est. Tax | Tax Savings | |||||
|
2025 |
320,500 |
277,250 |
30,497 |
0 |
30,497 |
122.90 |
$3,748 |
$585 |
|||||
|
2024 |
308,500 |
264,048 |
29,045 |
0 |
29,045 |
123.89 |
$3,598 |
$606 |
|||||
|
2023 |
286,000 |
251,475 |
27,662 |
0 |
27,662 |
122.82 |
$3,397 |
$466 |
|||||
|
2022 |
239,500 |
239,500 |
26,345 |
0 |
26,345 |
117.63 |
$3,099 |
$0 |
|||||
|
2021 |
232,000 |
232,000 |
25,520 |
0 |
25,520 |
117.70 |
$3,004 |
$0 |
|||||
| Property Account Status/Adjustments/Exemptions | ||||||
|---|---|---|---|---|---|---|
| Account # | Exemption Description | Amount | ||||
| No adjustment/exemption records returned. | ||||||
| Property Deed Transaction History (Recorded in the County Clerk's Office) | ||||||||||
|---|---|---|---|---|---|---|---|---|---|---|
| Date | Type | Book | Page | Price | Grantor | Grantee | ||||
|
11/10/2025 |
|
Deeds |
$210,000 |
OLDE MISSION LLC |
STEHSEL AUDREY |
|||||
|
12/23/2022 |
|
Hmstd Off & |
$0 |
LOBUE CAROLYN |
OLDE MISSION LLC |
|||||
|
7/23/2020 |
|
Deeds |
$234,500 |
GONZALEZ JOSEPH MICHAEL |
LOBUE CAROLYN |
|||||
|
12/27/2018 |
|
Deeds |
$207,000 |
ALEX STEELE PROPERTIES LLC |
GONZALEZ JOSEPH MICHAEL |
|||||
|
12/26/2018 |
|
Hmstd Off & |
$0 |
STEELE MIKE & ARDIS |
ALEX STEELE PROPERTIES LLC |
|||||
| Last Mailed Notice of Value (N.O.V.) Information/History | ||||||||
|---|---|---|---|---|---|---|---|---|
| Year | Date | Market Value | Taxable Market Value | Gross Assessed | Exemption | Net Assessed | ||
|
2025 |
02/14/2025 |
320,500 |
277,250 |
30,497 |
0 |
30,497 |
||
|
2024 |
02/13/2024 |
308,500 |
264,048 |
29,045 |
0 |
29,045 |
||
|
2023 |
02/14/2023 |
286,000 |
251,475 |
27,662 |
0 |
27,662 |
||
|
2022 |
03/15/2022 |
239,500 |
239,500 |
26,345 |
0 |
26,345 |
||
|
2021 |
03/19/2021 |
232,000 |
232,000 |
25,520 |
0 |
25,520 |
||
| Property Building Permit History | ||||||
|---|---|---|---|---|---|---|
| Issued | Permit # | Provided by | Bldg # | Description | Est Construction Cost | Status |
|
7/26/2005 |
10310421 |
OKLAHOMA CITY |
1 |
Demolish |
0 |
Inactive |
| Click button on building number to access detailed information: | ||||||
|---|---|---|---|---|---|---|
| Bldg # | Vacant/Improved Land | Bldg Description | Year Built | SqFt | # Stories | |
|
1 |
Improved |
1½ Story Fin |
1939 |
1,673 |
1.5 Stories |
|