|
|
|
| Larry Stein Oklahoma County Assessor (405) 713-1200 - Public Access System |
|
|
|
|
|
|
| Real Property Display - Screen Produced 4/3/2026 5:06:28 PM | ||||
|---|---|---|---|---|
| Account: R052658760 | Type: Residential | Location: |
2312 NW 25TH ST |
|
| Building Name/Occupant: |
|
OKLAHOMA CITY |
||
| Owner Name 1: | HUGHES ROBERT SAMUEL III |
Parcel PIN#: |
2674-05-265-8760 |
|
| Owner Name 2: | 1/4 section #: |
2674 |
||
| Owner Name 3: | Parent Acct: |
|
||
| Billing Address: | 2224 NW 56TH ST | Tax District: |
|
|
| City, State, Zip | OKLAHOMA CITY, OK 73112 | School System: |
Oklahoma City #89 |
|
|
Country: (If noted) |
Land Size: |
0.1469 Acres |
||
|
Land Value: 39,168 |
|
|||
|
Sect 19-T12N-R3W Qtr SE |
CASHION PLACE ADDITION
Block
011
Lot
004
|
|||
| Full Legal Description: CASHION PLACE ADDITION 011 004 |
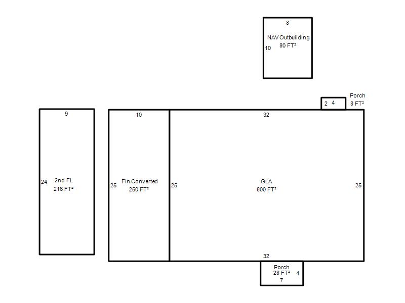
| Photo & Sketch (if available) | Comp Sales (ordered by relevancy) |
|
||||||||||||||||||
|
||||||||||||||||||||
| Value History (*The County Treasurer 405-713-1300 posts & collects actual tax amounts. Contact information HERE) | |||||||||||||
|---|---|---|---|---|---|---|---|---|---|---|---|---|---|
| Year | Market Value | Taxable Mkt Value | Gross Assessed | Exemption | Net Assessed | Millage | Est. Tax | Tax Savings | |||||
|
2026 |
201,000 |
174,210 |
19,162 |
0 |
19,162 |
122.90 |
$2,355 |
$362 |
|||||
|
2025 |
208,000 |
165,915 |
18,250 |
0 |
18,250 |
122.90 |
$2,243 |
$569 |
|||||
|
2024 |
205,500 |
158,015 |
17,381 |
0 |
17,381 |
123.89 |
$2,153 |
$647 |
|||||
|
2023 |
203,000 |
150,491 |
16,553 |
0 |
16,553 |
122.82 |
$2,033 |
$709 |
|||||
|
2022 |
175,000 |
143,325 |
15,765 |
0 |
15,765 |
117.63 |
$1,855 |
$410 |
|||||
| Property Account Status/Adjustments/Exemptions | ||
|---|---|---|
| Account # | Exemption Description | Amount |
|
R052658760 |
5% Capped Account |
0 |
| Property Deed Transaction History (Recorded in the County Clerk's Office) | ||||||||||
|---|---|---|---|---|---|---|---|---|---|---|
| Date | Type | Book | Page | Price | Grantor | Grantee | ||||
|
7/9/2020 |
|
Deeds |
$131,500 |
EJ3 INVESTMENTS LLC |
HUGHES ROBERT SAMUEL III |
|||||
|
1/23/2020 |
|
Deeds |
$107,000 |
BARTON NANCY L |
EJ3 INVESTMENTS LLC |
|||||
|
10/25/2002 |
|
Deeds |
$80,000 |
HAWCK ARTHUR F TRS HAWCK ARTHUR F REV LIV TRUST |
BARTON NANCY L |
|||||
|
10/24/2002 |
|
Deeds |
$0 |
YARD CYNTHIA D SUC TRS HAWCK ARTHUR F REV LIV TRUST |
YARD CYNTHIA D SUC TRS HAWCK ARTHUR F REV LIV TRUST |
|||||
|
10/17/2000 |
|
Deeds |
$0 |
HAWCK ARTHUR F |
HAWCK ARTHUR F TRS HAWCK ARTHUR F REV LIV TRUST |
|||||
| Last Mailed Notice of Value (N.O.V.) Information/History | ||||||||
|---|---|---|---|---|---|---|---|---|
| Year | Date | Market Value | Taxable Market Value | Gross Assessed | Exemption | Net Assessed | ||
|
2026 |
02/23/2026 |
201,000 |
174,210 |
19,162 |
0 |
19,162 |
||
|
2025 |
02/14/2025 |
208,000 |
165,915 |
18,250 |
0 |
18,250 |
||
|
2024 |
02/13/2024 |
205,500 |
158,015 |
17,381 |
0 |
17,381 |
||
|
2023 |
02/14/2023 |
203,000 |
150,491 |
16,553 |
0 |
16,553 |
||
|
2022 |
03/15/2022 |
175,000 |
143,325 |
15,765 |
0 |
15,765 |
||
| Property Building Permit History | |||||||||||
|---|---|---|---|---|---|---|---|---|---|---|---|
| Issued | Permit # | Provided by | Bldg # | Description | Est Construction Cost | Status | |||||
| No Building Permit records returned. | |||||||||||
| Click button on building number to access detailed information: | ||||||
|---|---|---|---|---|---|---|
| Bldg # | Vacant/Improved Land | Bldg Description | Year Built | SqFt | # Stories | |
|
1 |
Improved |
1½ Story Fin |
1937 |
1,016 |
1.5 Stories |
|