|
|
|
| Larry Stein Oklahoma County Assessor (405) 713-1200 - Public Access System |
|
|
|
|
|
|
| Real Property Display - Screen Produced 3/20/2026 5:38:50 AM | ||||
|---|---|---|---|---|
| Account: R051858870 | Type: Residential | Location: |
3501 N KENTUCKY AVE |
|
| Building Name/Occupant: |
|
OKLAHOMA CITY |
||
| Owner Name 1: | SEEBOLD JAYDEN ERIC |
Parcel PIN#: |
2680-05-185-8870 |
|
| Owner Name 2: | MOORE CASSIDY | 1/4 section #: |
2680 |
|
| Owner Name 3: | Parent Acct: |
|
||
| Billing Address: | 3501 N KENTUCKY AVE | Tax District: |
|
|
| City, State, Zip | OKLAHOMA CITY, OK 73118-3246 | School System: |
Oklahoma City #89 |
|
|
Country: (If noted) |
Land Size: |
0.1791 Acres |
||
|
Land Value: 19,890 |
|
|||
|
Sect 20-T12N-R3W Qtr NW |
FRIZZELLS SUB ADD
Block
005
Lot
006
|
|||
| Full Legal Description: FRIZZELLS SUB ADD 005 006 |
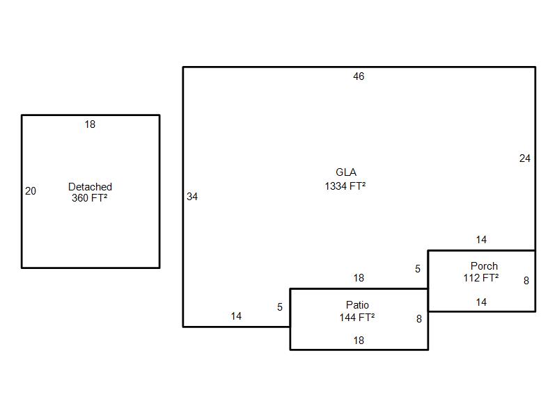
| Photo & Sketch (if available) | Comp Sales (ordered by relevancy) |
|
||||||||||||||||||
|
||||||||||||||||||||
| Value History (*The County Treasurer 405-713-1300 posts & collects actual tax amounts. Contact information HERE) | |||||||||||||
|---|---|---|---|---|---|---|---|---|---|---|---|---|---|
| Year | Market Value | Taxable Mkt Value | Gross Assessed | Exemption | Net Assessed | Millage | Est. Tax | Tax Savings | |||||
|
2025 |
165,000 |
108,770 |
11,964 |
0 |
11,964 |
122.90 |
$1,470 |
$760 |
|||||
|
2024 |
158,000 |
103,591 |
11,394 |
0 |
11,394 |
123.89 |
$1,412 |
$741 |
|||||
|
2023 |
153,000 |
98,659 |
10,851 |
0 |
10,851 |
122.82 |
$1,333 |
$734 |
|||||
|
2022 |
123,500 |
93,961 |
10,334 |
0 |
10,334 |
117.63 |
$1,216 |
$382 |
|||||
|
2021 |
111,500 |
89,487 |
9,842 |
0 |
9,842 |
117.70 |
$1,159 |
$285 |
|||||
| Property Account Status/Adjustments/Exemptions | ||||||
|---|---|---|---|---|---|---|
| Account # | Exemption Description | Amount | ||||
| No adjustment/exemption records returned. | ||||||
| Property Deed Transaction History (Recorded in the County Clerk's Office) | ||||||||||
|---|---|---|---|---|---|---|---|---|---|---|
| Date | Type | Book | Page | Price | Grantor | Grantee | ||||
|
9/8/2025 |
|
Deeds |
$220,000 |
TAL PROPERTIES 1 LLC |
SEEBOLD JAYDEN ERIC |
|||||
|
5/8/2025 |
|
Deeds |
$140,000 |
STEWART STEPHANIE D & JUSTIN D |
TAL PROPERTIES 1 LLC |
|||||
|
2/14/2012 |
|
Deeds |
$62,000 |
US BANK NATIONAL ASSOCIATION AS SUC TRS |
STEWART STEPHANIE D & JUSTIN D |
|||||
|
10/17/2011 |
|
Hmstd Off & |
$0 |
RADER RODNEY G |
US BANK NATIONAL ASSOCIATION AS SUC TRS |
|||||
|
4/23/2007 |
|
Deeds |
$87,500 |
RADER RUSSELL D |
RADER RODNEY G |
|||||
| Last Mailed Notice of Value (N.O.V.) Information/History | ||||||||
|---|---|---|---|---|---|---|---|---|
| Year | Date | Market Value | Taxable Market Value | Gross Assessed | Exemption | Net Assessed | ||
|
2026 |
02/23/2026 |
197,000 |
197,000 |
21,670 |
0 |
21,670 |
||
|
2025 |
02/14/2025 |
165,000 |
108,770 |
11,964 |
0 |
11,964 |
||
|
2024 |
02/13/2024 |
158,000 |
103,591 |
11,394 |
0 |
11,394 |
||
|
2023 |
02/14/2023 |
153,000 |
98,659 |
10,851 |
0 |
10,851 |
||
|
2022 |
03/15/2022 |
123,500 |
93,961 |
10,334 |
0 |
10,334 |
||
| Property Building Permit History | ||||||
|---|---|---|---|---|---|---|
| Issued | Permit # | Provided by | Bldg # | Description | Est Construction Cost | Status |
|
5/21/2025 |
2026 |
|
|
Remodeled |
|
Inactive |
| Click button on building number to access detailed information: | ||||||
|---|---|---|---|---|---|---|
| Bldg # | Vacant/Improved Land | Bldg Description | Year Built | SqFt | # Stories | |
|
1 |
Improved |
Ranch 1 Story |
1940 |
1,334 |
1 Stories |
|