Larry Stein Oklahoma County Assessor (405) 713-1200 - Public Access System
Home Contact Us Guest Book Map Search New Search
Real Property Display - Screen Produced   4/23/2026 1:48:25 PM 
Account: R038531485  Type: Residential

  

Location:

3204 N LINDSAY AVE

Building Name/Occupant:

 

OKLAHOMA CITY

Owner Name 1:  KBY PROPERTIES LLC

Parcel PIN#:

2685-03-853-1485

Owner Name 2:    1/4 section #:

2685

Owner Name 3:    Parent Acct:

 

Billing Address:  613 E 33RD ST Tax District:

City, State, Zip  EDMOND, OK  73013-5406 School System:

Oklahoma City #89

Country: (If noted)

  

Land Size:

0.1550  Acres

Personal Property

Land Value: 6,413 

Treasurer:

Sect 22-T12N-R3W Qtr NE

 JOHNSTONS SUB   Block 002  Lot 024   Subdivision Sales
 Full Legal Description:  JOHNSTONS SUB 002 024

NOTE:  The following sales may or may not be used to determine Fair Market Value

Photo & Sketch (if available) Sales  Sales Report

 3204 N LINDSAY AVE OKLAHOMA CITY, OK

09/05/2024

 $115,000 

 945 NE 32ND ST OKLAHOMA CITY, OK

07/20/2024

 $130,000 

 3512 N RHODE ISLAND AVE OKLAHOMA CITY, OK

11/25/2025

 $125,000 

 2717 WALNUT AVE OKLAHOMA CITY, OK

08/20/2025

 $175,000 

 2719 WALNUT AVE OKLAHOMA CITY, OK

12/29/2025

 $175,000 

 704 NE 31ST ST OKLAHOMA CITY, OK

12/12/2023

 $131,000 

Value History  (*The County Treasurer 405-713-1300 posts & collects actual tax amounts.  Contact information  HERE)
Year Market Value Taxable Mkt Value Gross Assessed Exemption Net Assessed Millage Est. Tax Tax Savings

2026

148,000 

148,000 

16,280 

16,280 

122.90 

$2,001 

$0 

2025

141,000 

141,000 

15,510 

15,510 

122.90 

$1,906 

$0 

2024

134,500 

117,967 

12,975 

12,975 

123.89 

$1,608 

$225 

[1/10]
Property Account Status/Adjustments/Exemptions
Account # Exemption Description Amount

R038531485

5% Capped Account

Property Deed Transaction History   (Recorded in the County Clerk's Office)
Date Type Book Page Price Grantor Grantee

1/3/2025

Hmstd Off &

15969

713

 $0 

BAR YAMIN NOAM

KBY PROPERTIES LLC

9/5/2024

Deeds

15861

625

 $115,000 

STEVENS MARINA

BAR YAMIN NOAM

9/30/2020

Deeds

14508

21

 $115,000 

REI NATION LLC

STEVENS MARINA

[1/3]
Last Mailed Notice of Value (N.O.V.) Information/History
Year Date Market Value Taxable Market Value Gross Assessed Exemption Net Assessed

2026

02/23/2026

148,000 

148,000 

16,280 

16,280 

2025

02/14/2025

141,000 

141,000 

15,510 

15,510 

2024

02/13/2024

134,500 

117,967 

12,975 

12,975 

[1/5]
Property Building Permit History
Issued Permit # Provided by Bldg # Description Est Construction Cost Status

11/16/2004

10297788

OKLAHOMA CITY

1

Burn - Trip

10,000 

Inactive

Click button below to access detailed information and additional property photos:
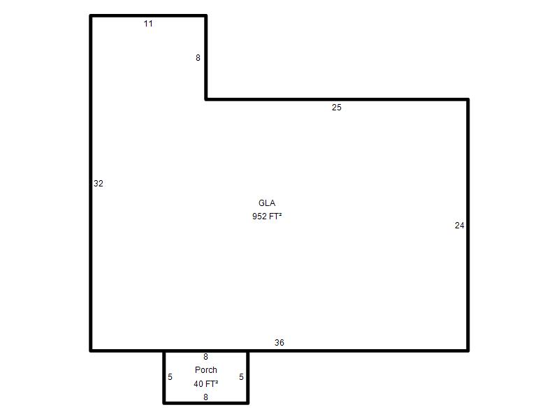
  Bldg # Vacant/Improved Land Bldg Description Year Built SqFt # Stories

Click

1

Improved

Ranch 1 Story

1954

952 

1 Stories