|
|
|
| Larry Stein Oklahoma County Assessor (405) 713-1200 - Public Access System |
|
|
|
|
|
|
| Real Property Display - Screen Produced 2/26/2026 7:04:24 PM | ||||
|---|---|---|---|---|
| Account: R038675400 | Type: Residential | Location: |
0 E HILL ST |
|
| Building Name/Occupant: |
|
OKLAHOMA CITY |
||
| Owner Name 1: | MCFARLAND BRITTANI |
Parcel PIN#: |
2685-03-867-5400 |
|
| Owner Name 2: | 1/4 section #: |
2685 |
||
| Owner Name 3: | Parent Acct: |
|
||
| Billing Address: | 938 E HILL ST | Tax District: |
|
|
| City, State, Zip | OKLAHOMA CITY, OK 73105 | School System: |
Oklahoma City #89 |
|
|
Country: (If noted) |
Land Size: |
0.1607 Acres |
||
|
Land Value: 20,000 |
|
|||
|
Sect 22-T12N-R3W Qtr NE |
MCNABB PARK ADDITION
Block
010
Lot
006
|
|||
| Full Legal Description: MCNABB PARK ADDITION 010 006 |
| Photo & Sketch (if available) | Comp Sales (ordered by relevancy) |
|
||||||||||||||||||
|
||||||||||||||||||||
| Value History (*The County Treasurer 405-713-1300 posts & collects actual tax amounts. Contact information HERE) | |||||||||||||
|---|---|---|---|---|---|---|---|---|---|---|---|---|---|
| Year | Market Value | Taxable Mkt Value | Gross Assessed | Exemption | Net Assessed | Millage | Est. Tax | Tax Savings | |||||
|
2025 |
247,500 |
247,500 |
27,225 |
0 |
27,225 |
122.90 |
$3,346 |
$0 |
|||||
|
2024 |
20,000 |
20,000 |
2,200 |
0 |
2,200 |
123.89 |
$273 |
$0 |
|||||
|
2023 |
9,100 |
3,807 |
417 |
0 |
417 |
122.82 |
$51 |
$72 |
|||||
|
2022 |
9,100 |
3,626 |
397 |
0 |
397 |
117.63 |
$47 |
$71 |
|||||
|
2021 |
9,100 |
3,454 |
379 |
0 |
379 |
117.70 |
$45 |
$73 |
|||||
| Property Account Status/Adjustments/Exemptions | ||
|---|---|---|
| Account # | Exemption Description | Amount |
|
R038675400 |
5% Capped Account |
0 |
| Property Deed Transaction History (Recorded in the County Clerk's Office) | |||||||
|---|---|---|---|---|---|---|---|
| Date | Type | Book | Page | Price | Grantor | Grantee | |
|
6/7/2024 |
|
Deeds |
$265,000 |
PEREZ DAVID |
MCFARLAND BRITTANI |
||
|
10/27/2023 |
|
Deeds |
$20,000 |
TURNER JOHN J & BARBARA ANN REV TRUST |
PEREZ DAVID |
||
|
3/29/2021 |
|
Hmstd Off & |
$0 |
PAYNE GRACE |
TURNER JOHN J & BARBARA ANN REV TRUST |
||
|
11/11/1911 |
|
Historical |
$0 |
|
PAYNE GRACE |
||
| Last Mailed Notice of Value (N.O.V.) Information/History | ||||||||
|---|---|---|---|---|---|---|---|---|
| Year | Date | Market Value | Taxable Market Value | Gross Assessed | Exemption | Net Assessed | ||
|
2025 |
02/14/2025 |
247,500 |
247,500 |
27,225 |
0 |
27,225 |
||
|
2024 |
02/13/2024 |
20,000 |
20,000 |
2,200 |
0 |
2,200 |
||
|
2023 |
02/14/2023 |
9,100 |
3,807 |
417 |
0 |
417 |
||
|
2022 |
03/15/2022 |
9,100 |
3,626 |
397 |
0 |
397 |
||
|
2021 |
03/19/2021 |
9,100 |
3,454 |
379 |
0 |
379 |
||
| Property Building Permit History | ||||||
|---|---|---|---|---|---|---|
| Issued | Permit # | Provided by | Bldg # | Description | Est Construction Cost | Status |
|
12/19/2023 |
BLDR-2023-07398 |
|
|
Main Dwellin |
130,000 |
Inactive |
| Click button on building number to access detailed information: | ||||||
|---|---|---|---|---|---|---|
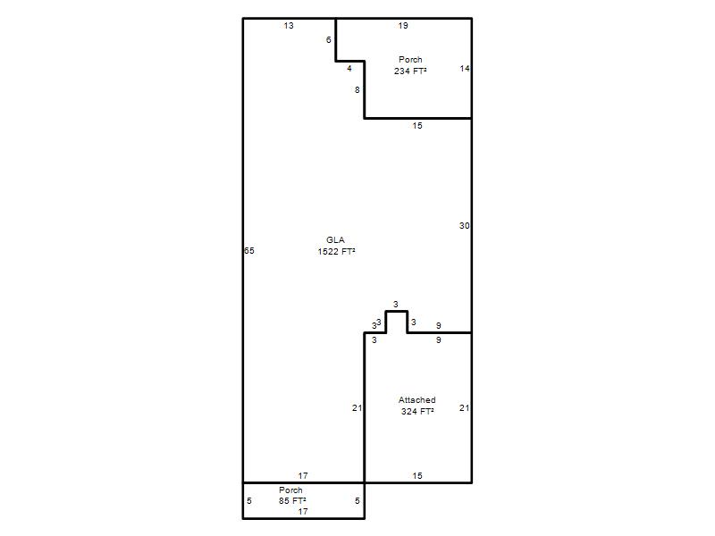
| Bldg # | Vacant/Improved Land | Bldg Description | Year Built | SqFt | # Stories | |
|
1 |
Improved |
Ranch 1 Story |
2024 |
1,522 |
1 Stories |
|