|
|
|
| Larry Stein Oklahoma County Assessor (405) 713-1200 - Public Access System |
|
|
|
|
|
|
| Real Property Display - Screen Produced 4/5/2026 1:22:00 AM | ||||
|---|---|---|---|---|
| Account: R036530550 | Type: Residential | Location: |
944 NE 30TH ST |
|
| Building Name/Occupant: |
|
OKLAHOMA CITY |
||
| Owner Name 1: | BEAUTIFUL HOPE PROPERTIES LLC |
Parcel PIN#: |
2686-03-653-0550 |
|
| Owner Name 2: | 1/4 section #: |
2686 |
||
| Owner Name 3: | Parent Acct: |
|
||
| Billing Address: | 944 NE 30TH ST | Tax District: |
|
|
| City, State, Zip | OKLAHOMA CITY, OK 73105 | School System: |
Oklahoma City #89 |
|
|
Country: (If noted) |
Land Size: |
0.1492 Acres |
||
|
Land Value: 38,000 |
|
|||
|
Sect 22-T12N-R3W Qtr SE |
POWELLS SUB ADDITION
Block
001
Lot
000
|
|||
| Full Legal Description: POWELLS SUB ADDITION 001 000 LOTS 1 & 2 |
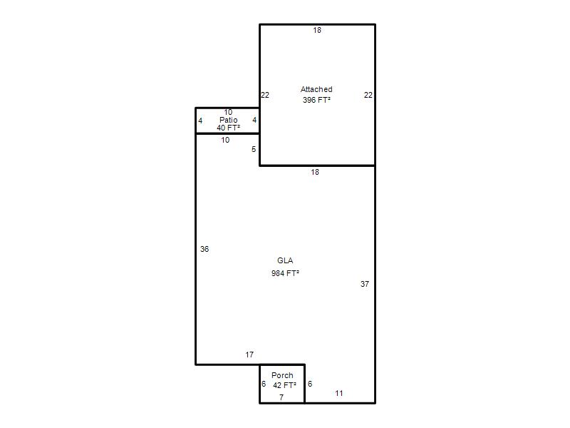
| Photo & Sketch (if available) | Comp Sales (ordered by relevancy) |
|
||||||||||||||||||
|
||||||||||||||||||||
| Value History (*The County Treasurer 405-713-1300 posts & collects actual tax amounts. Contact information HERE) | |||||||||||||
|---|---|---|---|---|---|---|---|---|---|---|---|---|---|
| Year | Market Value | Taxable Mkt Value | Gross Assessed | Exemption | Net Assessed | Millage | Est. Tax | Tax Savings | |||||
|
2026 |
177,000 |
177,000 |
19,470 |
0 |
19,470 |
122.90 |
$2,393 |
$0 |
|||||
|
2025 |
172,000 |
171,150 |
18,826 |
0 |
18,826 |
122.90 |
$2,314 |
$11 |
|||||
|
2024 |
163,000 |
163,000 |
17,930 |
0 |
17,930 |
123.89 |
$2,221 |
$0 |
|||||
|
2023 |
201,000 |
201,000 |
22,110 |
0 |
22,110 |
122.82 |
$2,716 |
$0 |
|||||
|
2022 |
38,000 |
38,000 |
4,180 |
0 |
4,180 |
117.63 |
$492 |
$0 |
|||||
| Property Account Status/Adjustments/Exemptions | ||
|---|---|---|
| Account # | Exemption Description | Amount |
|
R036530550 |
5% Capped Account |
0 |
| Property Deed Transaction History (Recorded in the County Clerk's Office) | ||||||||||
|---|---|---|---|---|---|---|---|---|---|---|
| Date | Type | Book | Page | Price | Grantor | Grantee | ||||
|
5/27/2022 |
|
Deeds |
$200,000 |
EXTREME HOMES LLC |
BEAUTIFUL HOPE PROPERTIES LLC |
|||||
|
2/4/2021 |
|
Mult Parcel |
$37,500 |
GARRETT & COMPANY LLC |
BUILDERS INVESTMENT GROUP LLC |
|||||
|
2/4/2021 |
|
Deeds |
$38,000 |
BUILDERS INVESTMENT GROUP LLC |
EXTREME HOMES LLC |
|||||
|
2/4/2021 |
|
Hmstd Off & |
$0 |
BUILDERS INVESTMENT GROUP LLC |
EXTREME HOMES LLC |
|||||
|
11/20/1996 |
|
Deeds |
$0 |
GARRETT & CO |
GARRETT AND COMPANY LLC |
|||||
| Last Mailed Notice of Value (N.O.V.) Information/History | ||||||||
|---|---|---|---|---|---|---|---|---|
| Year | Date | Market Value | Taxable Market Value | Gross Assessed | Exemption | Net Assessed | ||
|
2026 |
02/23/2026 |
177,000 |
177,000 |
19,470 |
0 |
19,470 |
||
|
2025 |
02/14/2025 |
172,000 |
171,150 |
18,826 |
0 |
18,826 |
||
|
2023 |
02/14/2023 |
201,000 |
201,000 |
22,110 |
0 |
22,110 |
||
|
2022 |
03/15/2022 |
38,000 |
38,000 |
4,180 |
0 |
4,180 |
||
|
2014 |
04/02/2014 |
3,900 |
3,900 |
429 |
0 |
429 |
||
| Property Building Permit History | ||||||
|---|---|---|---|---|---|---|
| Issued | Permit # | Provided by | Bldg # | Description | Est Construction Cost | Status |
|
12/13/2021 |
|
|
1 |
Main Dwellin |
|
Inactive |
| Click button on building number to access detailed information: | ||||||
|---|---|---|---|---|---|---|
| Bldg # | Vacant/Improved Land | Bldg Description | Year Built | SqFt | # Stories | |
|
1 |
Improved |
Ranch 1 Story |
2021 |
984 |
1 Stories |
|