|
|
|
| Larry Stein Oklahoma County Assessor (405) 713-1200 - Public Access System |
|
|
|
|
|
|
| Real Property Display - Screen Produced 2/27/2026 10:22:36 AM | ||||
|---|---|---|---|---|
| Account: R036773300 | Type: Residential | Location: |
813 NE 27TH ST |
|
| Building Name/Occupant: |
|
OKLAHOMA CITY |
||
| Owner Name 1: | WAZZAN PROPERTIES LLC |
Parcel PIN#: |
2686-03-677-3300 |
|
| Owner Name 2: | 1/4 section #: |
2686 |
||
| Owner Name 3: | Parent Acct: |
|
||
| Billing Address: | 813 NE 27TH ST | Tax District: |
|
|
| City, State, Zip | OKLAHOMA CITY, OK 73105-7906 | School System: |
Oklahoma City #89 |
|
|
Country: (If noted) |
Land Size: |
0.1550 Acres |
||
|
Land Value: 12,150 |
|
|||
|
Sect 22-T12N-R3W Qtr SE |
NEFFS CAPITOL ADD
Block
003
Lot
000
|
|||
| Full Legal Description: NEFFS CAPITOL ADD 003 000 LOTS 31 & 32 |
| Photo & Sketch (if available) | Comp Sales (ordered by relevancy) |
|
||||||||||||||||||
|
||||||||||||||||||||
| Value History (*The County Treasurer 405-713-1300 posts & collects actual tax amounts. Contact information HERE) | |||||||||||||
|---|---|---|---|---|---|---|---|---|---|---|---|---|---|
| Year | Market Value | Taxable Mkt Value | Gross Assessed | Exemption | Net Assessed | Millage | Est. Tax | Tax Savings | |||||
|
2025 |
50,500 |
49,061 |
5,395 |
0 |
5,395 |
122.90 |
$663 |
$19 |
|||||
|
2024 |
48,500 |
46,725 |
5,139 |
0 |
5,139 |
123.89 |
$637 |
$24 |
|||||
|
2023 |
44,500 |
44,500 |
4,895 |
0 |
4,895 |
122.82 |
$601 |
$0 |
|||||
|
2022 |
35,500 |
16,865 |
1,854 |
0 |
1,854 |
117.63 |
$218 |
$241 |
|||||
|
2021 |
31,500 |
16,062 |
1,766 |
0 |
1,766 |
117.70 |
$208 |
$200 |
|||||
| Property Account Status/Adjustments/Exemptions | ||
|---|---|---|
| Account # | Exemption Description | Amount |
|
R036773300 |
5% Capped Account |
0 |
| Property Deed Transaction History (Recorded in the County Clerk's Office) | ||||||||||
|---|---|---|---|---|---|---|---|---|---|---|
| Date | Type | Book | Page | Price | Grantor | Grantee | ||||
|
8/15/2025 |
|
Hmstd Off & |
$0 |
HOMECASHOFFER LLC |
WAZZAN PROPERTIES LLC |
|||||
|
2/18/2023 |
|
Hmstd Off & |
$0 |
WAZZAN PROPERTIES LLC |
HOMECASHOFFER LLC |
|||||
|
12/15/2022 |
|
Deeds |
$20,000 |
WASHINGTON EARNELL M |
MCKINNON HOME BUYERS LLC |
|||||
|
12/15/2022 |
|
Deeds |
$45,000 |
MCKINNON HOME BUYERS LLC |
WAZZAN PROPERTIES LLC |
|||||
|
5/21/2007 |
|
Other |
$0 |
SYKES DOUGLAS |
WASHINGTON EARNELL M |
|||||
| Last Mailed Notice of Value (N.O.V.) Information/History | ||||||||
|---|---|---|---|---|---|---|---|---|
| Year | Date | Market Value | Taxable Market Value | Gross Assessed | Exemption | Net Assessed | ||
|
2026 |
02/23/2026 |
55,000 |
51,514 |
5,665 |
0 |
5,665 |
||
|
2025 |
02/14/2025 |
50,500 |
49,061 |
5,395 |
0 |
5,395 |
||
|
2024 |
02/13/2024 |
48,500 |
46,725 |
5,139 |
0 |
5,139 |
||
|
2023 |
02/14/2023 |
44,500 |
44,500 |
4,895 |
0 |
4,895 |
||
|
2022 |
03/15/2022 |
35,500 |
16,865 |
1,854 |
0 |
1,854 |
||
| Property Building Permit History | |||||||||||
|---|---|---|---|---|---|---|---|---|---|---|---|
| Issued | Permit # | Provided by | Bldg # | Description | Est Construction Cost | Status | |||||
| No Building Permit records returned. | |||||||||||
| Click button on building number to access detailed information: | ||||||
|---|---|---|---|---|---|---|
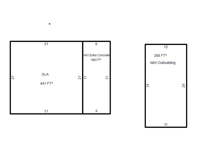
| Bldg # | Vacant/Improved Land | Bldg Description | Year Built | SqFt | # Stories | |
|
1 |
Improved |
Ranch 1 Story |
1925 |
441 |
1 Stories |
|