|
|
|
| Larry Stein Oklahoma County Assessor (405) 713-1200 - Public Access System |
|
|
|
|
|
|
| Real Property Display - Screen Produced 2/27/2026 3:28:37 AM | ||||
|---|---|---|---|---|
| Account: R070521065 | Type: Residential | Location: |
1513 NE 33RD ST |
|
| Building Name/Occupant: |
|
OKLAHOMA CITY |
||
| Owner Name 1: | WHITERS ELNORA |
Parcel PIN#: |
2689-07-052-1065 |
|
| Owner Name 2: | 1/4 section #: |
2689 |
||
| Owner Name 3: | Parent Acct: |
|
||
| Billing Address: | 1513 NE 33RD ST | Tax District: |
|
|
| City, State, Zip | OKLAHOMA CITY, OK 73111-4128 | School System: |
Oklahoma City #89 |
|
|
Country: (If noted) |
Land Size: |
0.1657 Acres |
||
|
Land Value: 8,342 |
|
|||
|
Sect 23-T12N-R3W Qtr NE |
PARK ESTATES 12
Block
001
Lot
007
|
|||
| Full Legal Description: PARK ESTATES 12 001 007 |
| Photo & Sketch (if available) | Comp Sales (ordered by relevancy) |
|
||||||||||||||||||
|
||||||||||||||||||||
| Value History (*The County Treasurer 405-713-1300 posts & collects actual tax amounts. Contact information HERE) | |||||||||||||
|---|---|---|---|---|---|---|---|---|---|---|---|---|---|
| Year | Market Value | Taxable Mkt Value | Gross Assessed | Exemption | Net Assessed | Millage | Est. Tax | Tax Savings | |||||
|
2025 |
107,000 |
107,000 |
11,770 |
1,000 |
10,770 |
122.90 |
$1,324 |
$123 |
|||||
|
2024 |
100,000 |
62,313 |
6,854 |
0 |
6,854 |
123.89 |
$849 |
$514 |
|||||
|
2023 |
90,000 |
59,346 |
6,527 |
0 |
6,527 |
122.82 |
$802 |
$414 |
|||||
|
2022 |
70,000 |
56,520 |
6,216 |
0 |
6,216 |
117.63 |
$731 |
$174 |
|||||
|
2021 |
61,500 |
53,829 |
5,920 |
0 |
5,920 |
117.70 |
$697 |
$99 |
|||||
| Property Account Status/Adjustments/Exemptions | ||
|---|---|---|
| Account # | Exemption Description | Amount |
|
R070521065 |
3% Cap Homestead |
0 |
|
R070521065 |
Homestead |
1,000 |
| Property Deed Transaction History (Recorded in the County Clerk's Office) | |||||||
|---|---|---|---|---|---|---|---|
| Date | Type | Book | Page | Price | Grantor | Grantee | |
|
4/12/2024 |
|
Deeds |
$92,500 |
SHATLEY INVESTMENTS LLC |
WHITERS ELNORA |
||
|
5/10/2013 |
|
Deeds |
$30,000 |
WADE NELLITA |
SHATLEY INVESTMENTS LLC |
||
|
5/9/2013 |
|
Deeds |
$0 |
WADE EDGAR LEE & NELLITA L |
WADE NELLITA |
||
|
11/11/1911 |
|
Historical |
$0 |
|
WADE EDGAR LEE & NELLITA L |
||
| Last Mailed Notice of Value (N.O.V.) Information/History | ||||||||
|---|---|---|---|---|---|---|---|---|
| Year | Date | Market Value | Taxable Market Value | Gross Assessed | Exemption | Net Assessed | ||
|
2025 |
02/14/2025 |
107,000 |
107,000 |
11,770 |
0 |
11,770 |
||
|
2024 |
02/13/2024 |
100,000 |
62,313 |
6,854 |
0 |
6,854 |
||
|
2023 |
02/14/2023 |
90,000 |
59,346 |
6,527 |
0 |
6,527 |
||
|
2022 |
03/15/2022 |
70,000 |
56,520 |
6,216 |
0 |
6,216 |
||
|
2021 |
03/19/2021 |
61,500 |
53,829 |
5,921 |
0 |
5,921 |
||
| Property Building Permit History | |||||||||||
|---|---|---|---|---|---|---|---|---|---|---|---|
| Issued | Permit # | Provided by | Bldg # | Description | Est Construction Cost | Status | |||||
| No Building Permit records returned. | |||||||||||
| Click button on building number to access detailed information: | ||||||
|---|---|---|---|---|---|---|
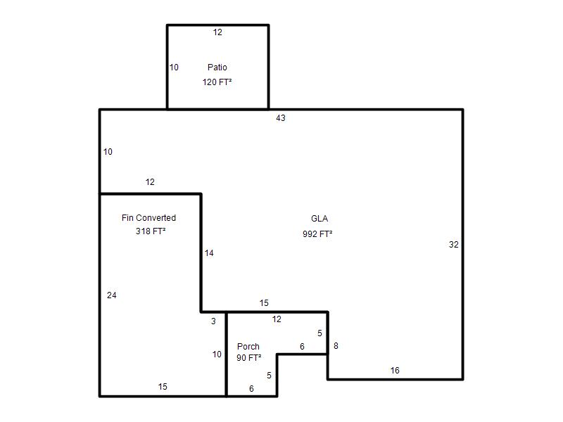
| Bldg # | Vacant/Improved Land | Bldg Description | Year Built | SqFt | # Stories | |
|
1 |
Improved |
Ranch 1 Story |
1959 |
992 |
1 Stories |
|