Larry Stein Oklahoma County Assessor (405) 713-1200 - Public Access System
Home Contact Us Guest Book Map Search New Search
Real Property Display - Screen Produced   4/23/2026 8:12:18 PM 
Account: R070655900  Type: Residential

  

Location:

1615 NE 33RD ST

Building Name/Occupant:

 

OKLAHOMA CITY

Owner Name 1:  NEIDIG SCOTT & ANYA

Parcel PIN#:

2689-07-065-5900

Owner Name 2:    1/4 section #:

2689

Owner Name 3:    Parent Acct:

 

Billing Address:  10152 S 1190 W Tax District:

City, State, Zip  SOUTH JORDAN, UT  84095-8881 School System:

Oklahoma City #89

Country: (If noted)

  

Land Size:

0.1550  Acres

Personal Property

Land Value: 12,000 

Treasurer:

Sect 23-T12N-R3W Qtr NE

 PATRICK MOORE SECOND   Block 002  Lot 000   Subdivision Sales
 Full Legal Description:  PATRICK MOORE SECOND 002 000 LOTS 33 & 34

NOTE:  The following sales may or may not be used to determine Fair Market Value

Photo & Sketch (if available) Sales  Sales Report

 1615 NE 33RD ST OKLAHOMA CITY, OK

08/24/2023

 $200,000 

 745 E EUBANKS OKLAHOMA CITY, OK

04/14/2025

 $223,000 

 741 E EUBANKS ST OKLAHOMA CITY, OK

05/27/2025

 $220,000 

 1525 NE 34TH ST OKLAHOMA CITY, OK

02/27/2025

 $225,000 

 135 WALNUT WAY OKLAHOMA CITY, OK

08/23/2024

 $213,500 

 1428 NE 35TH PL OKLAHOMA CITY, OK

07/26/2024

 $311,000 

Value History  (*The County Treasurer 405-713-1300 posts & collects actual tax amounts.  Contact information  HERE)
Year Market Value Taxable Mkt Value Gross Assessed Exemption Net Assessed Millage Est. Tax Tax Savings

2026

175,500 

175,500 

19,305 

19,305 

122.90 

$2,373 

$0 

2025

192,500 

191,625 

21,078 

21,078 

122.90 

$2,591 

$12 

2024

182,500 

182,500 

20,075 

20,075 

123.89 

$2,487 

$0 

[1/10]
Property Account Status/Adjustments/Exemptions
Account # Exemption Description Amount

R070655900

5% Capped Account

Property Deed Transaction History   (Recorded in the County Clerk's Office)
Date Type Book Page Price Grantor Grantee

8/24/2023

Deeds

15546

611

 $200,000 

MLB HOMES LLC

NEIDIG SCOTT & ANYA

1/5/2022

Deeds

15030

821

 $38,000 

BUILDERS INVESTMENT GROUP LLC

MLB HOMES LLC

11/22/2021

Deeds

14985

17

 $12,000 

EQUITY TRUST COMPANY CUSTODIAN

BUILDERS INVESTMENT GROUP LLC

[1/3]
Last Mailed Notice of Value (N.O.V.) Information/History
Year Date Market Value Taxable Market Value Gross Assessed Exemption Net Assessed

2025

02/14/2025

192,500 

191,625 

21,078 

21,078 

2024

02/13/2024

182,500 

182,500 

20,075 

20,075 

2022

03/15/2022

12,000 

12,000 

1,320 

1,320 

[1/2]
Property Building Permit History
Issued Permit # Provided by Bldg # Description Est Construction Cost Status

5/11/2022

BLDR-2022-00326

 

Main Dwellin

140,000 

Inactive

7/10/1995

10194928

OKLAHOMA CITY

 

Demolish

Inactive

Click button below to access detailed information and additional property photos:
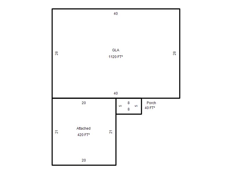
  Bldg # Vacant/Improved Land Bldg Description Year Built SqFt # Stories

Click

1

Improved

Ranch 1 Story

2022

1,120 

1 Stories