|
|
|
| Larry Stein Oklahoma County Assessor (405) 713-1200 - Public Access System |
|
|
|
|
|
|
| Real Property Display - Screen Produced 3/5/2026 3:40:41 AM | ||||
|---|---|---|---|---|
| Account: R030038086 | Type: Residential | Location: |
2420 CRESTON DR |
|
| Building Name/Occupant: |
|
OKLAHOMA CITY |
||
| Owner Name 1: | PHAN MONICA |
Parcel PIN#: |
2695-03-003-8086 |
|
| Owner Name 2: | 1/4 section #: |
2695 |
||
| Owner Name 3: | Parent Acct: |
|
||
| Billing Address: | 1600 N PENNSYLVANIA AVE | Tax District: |
|
|
| City, State, Zip | OKLAHOMA CITY, OK 73107-4950 | School System: |
Oklahoma City #89 |
|
|
Country: (If noted) |
Land Size: |
0.1538 Acres |
||
|
Land Value: 2,010 |
|
|||
|
Sect 24-T12N-R3W Qtr SW |
CRESTON HILLS ADD
Block
034
Lot
007
|
|||
| Full Legal Description: CRESTON HILLS ADD 034 007 |
| Photo & Sketch (if available) | Comp Sales (ordered by relevancy) |
|
||||||||||||||||||
|
||||||||||||||||||||
| Value History (*The County Treasurer 405-713-1300 posts & collects actual tax amounts. Contact information HERE) | |||||||||||||
|---|---|---|---|---|---|---|---|---|---|---|---|---|---|
| Year | Market Value | Taxable Mkt Value | Gross Assessed | Exemption | Net Assessed | Millage | Est. Tax | Tax Savings | |||||
|
2025 |
96,000 |
96,000 |
10,560 |
0 |
10,560 |
122.90 |
$1,298 |
$0 |
|||||
|
2024 |
90,500 |
90,500 |
9,955 |
0 |
9,955 |
123.89 |
$1,233 |
$0 |
|||||
|
2023 |
80,000 |
54,407 |
5,983 |
0 |
5,983 |
122.82 |
$735 |
$346 |
|||||
|
2022 |
61,000 |
51,817 |
5,699 |
0 |
5,699 |
117.63 |
$670 |
$119 |
|||||
|
2021 |
53,000 |
49,350 |
5,428 |
0 |
5,428 |
117.70 |
$639 |
$47 |
|||||
| Property Account Status/Adjustments/Exemptions | ||
|---|---|---|
| Account # | Exemption Description | Amount |
|
R030038086 |
5% Capped Account |
0 |
| Property Deed Transaction History (Recorded in the County Clerk's Office) | ||||||||||
|---|---|---|---|---|---|---|---|---|---|---|
| Date | Type | Book | Page | Price | Grantor | Grantee | ||||
|
4/26/2023 |
|
Hmstd Off & |
$0 |
CAMPBELL ANTHONY G |
CAMPBELL ANTHONY G |
|||||
|
4/26/2023 |
|
Deeds |
$87,500 |
CAMPBELL ANTHONY G |
PHAN MONICA |
|||||
|
8/15/2018 |
|
Deeds |
$47,500 |
DEFREESE CHRIS & DANIELE |
CAMPBELL ANTHONY G |
|||||
|
5/5/2005 |
|
Deeds |
$17,500 |
DANGERFIELD ELOISE E PAYNE RAYMOND |
BUY IT KWIK LLC |
|||||
|
5/5/2005 |
|
Deeds |
$19,500 |
BUY IT KWIK LLC |
DEFREESE CHRIS & DANIELE |
|||||
| Last Mailed Notice of Value (N.O.V.) Information/History | ||||||||
|---|---|---|---|---|---|---|---|---|
| Year | Date | Market Value | Taxable Market Value | Gross Assessed | Exemption | Net Assessed | ||
|
2026 |
02/23/2026 |
100,000 |
100,000 |
11,000 |
0 |
11,000 |
||
|
2025 |
03/28/2025 |
96,000 |
96,000 |
10,560 |
0 |
10,560 |
||
|
2024 |
02/13/2024 |
90,500 |
90,500 |
9,955 |
0 |
9,955 |
||
|
2023 |
02/14/2023 |
80,000 |
54,407 |
5,983 |
0 |
5,983 |
||
|
2022 |
03/15/2022 |
61,000 |
51,817 |
5,699 |
0 |
5,699 |
||
| Property Building Permit History | |||||||||||
|---|---|---|---|---|---|---|---|---|---|---|---|
| Issued | Permit # | Provided by | Bldg # | Description | Est Construction Cost | Status | |||||
| No Building Permit records returned. | |||||||||||
| Click button on building number to access detailed information: | ||||||
|---|---|---|---|---|---|---|
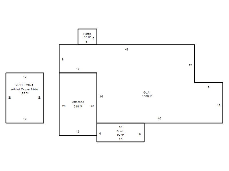
| Bldg # | Vacant/Improved Land | Bldg Description | Year Built | SqFt | # Stories | |
|
1 |
Improved |
Ranch 1 Story |
1940 |
1,000 |
1 Stories |
|