|
|
|
| Larry Stein Oklahoma County Assessor (405) 713-1200 - Public Access System |
|
|
|
|
|
|
| Real Property Display - Screen Produced 3/5/2026 3:25:54 AM | ||||
|---|---|---|---|---|
| Account: R073721300 | Type: Residential | Location: |
2204 NE 25TH ST |
|
| Building Name/Occupant: |
|
OKLAHOMA CITY |
||
| Owner Name 1: | PRAIRIE PROPERTY SOLUTIONS LLC |
Parcel PIN#: |
2695-07-372-1300 |
|
| Owner Name 2: | 1/4 section #: |
2695 |
||
| Owner Name 3: | Parent Acct: |
|
||
| Billing Address: | PO BOX 515 | Tax District: |
|
|
| City, State, Zip | OKLAHOMA CITY, OK 73101 | School System: |
Oklahoma City #89 |
|
|
Country: (If noted) |
Land Size: |
0.1538 Acres |
||
|
Land Value: 2,010 |
|
|||
|
Sect 24-T12N-R3W Qtr SW |
LAIN HILLS ADDITION
Block
002
Lot
005
|
|||
| Full Legal Description: LAIN HILLS ADDITION 002 005 |
| Photo & Sketch (if available) | Comp Sales (ordered by relevancy) |
|
||||||||||||||||||
|
||||||||||||||||||||
| Value History (*The County Treasurer 405-713-1300 posts & collects actual tax amounts. Contact information HERE) | |||||||||||||
|---|---|---|---|---|---|---|---|---|---|---|---|---|---|
| Year | Market Value | Taxable Mkt Value | Gross Assessed | Exemption | Net Assessed | Millage | Est. Tax | Tax Savings | |||||
|
2025 |
69,500 |
69,300 |
7,623 |
0 |
7,623 |
122.90 |
$937 |
$3 |
|||||
|
2024 |
66,000 |
66,000 |
7,260 |
0 |
7,260 |
123.89 |
$899 |
$0 |
|||||
|
2023 |
80,000 |
80,000 |
8,800 |
0 |
8,800 |
122.82 |
$1,081 |
$0 |
|||||
|
2022 |
56,000 |
27,469 |
3,020 |
0 |
3,020 |
117.63 |
$355 |
$369 |
|||||
|
2021 |
32,500 |
26,161 |
2,877 |
0 |
2,877 |
117.70 |
$339 |
$82 |
|||||
| Property Account Status/Adjustments/Exemptions | ||
|---|---|---|
| Account # | Exemption Description | Amount |
|
R073721300 |
5% Capped Account |
0 |
| Property Deed Transaction History (Recorded in the County Clerk's Office) | ||||||||||
|---|---|---|---|---|---|---|---|---|---|---|
| Date | Type | Book | Page | Price | Grantor | Grantee | ||||
|
3/19/2022 |
|
Deeds |
$78,000 |
MCGLON MICHELLE D |
PRAIRIE PROPERTY SOLUTIONS LLC |
|||||
|
7/2/2013 |
|
Deeds |
$15,000 |
BAGSBY MARION YOLANDA |
MCGLON MICHELLE D |
|||||
|
11/20/2012 |
|
Hmstd Off & |
$0 |
BAGSBY BETTIE JEAN |
BAGSBY MARION YOLANDA |
|||||
|
11/13/1990 |
|
Historical |
$7,005 |
SECRETARY OF HOUSING |
BAGSBY BETTIE JEAN |
|||||
|
8/20/1990 |
|
Historical |
$0 |
GIBSON APRIL P |
SECRETARY OF HOUSING |
|||||
| Last Mailed Notice of Value (N.O.V.) Information/History | ||||||||
|---|---|---|---|---|---|---|---|---|
| Year | Date | Market Value | Taxable Market Value | Gross Assessed | Exemption | Net Assessed | ||
|
2026 |
02/23/2026 |
76,500 |
72,765 |
8,004 |
0 |
8,004 |
||
|
2025 |
02/14/2025 |
69,500 |
69,300 |
7,623 |
0 |
7,623 |
||
|
2023 |
02/14/2023 |
80,000 |
80,000 |
8,800 |
0 |
8,800 |
||
|
2022 |
03/15/2022 |
56,000 |
27,469 |
3,020 |
0 |
3,020 |
||
|
2021 |
03/19/2021 |
32,500 |
26,161 |
2,877 |
0 |
2,877 |
||
| Property Building Permit History | ||||||
|---|---|---|---|---|---|---|
| Issued | Permit # | Provided by | Bldg # | Description | Est Construction Cost | Status |
|
5/19/2010 |
10408964 |
OKLAHOMA CITY |
1 |
Storage Buil |
1,000 |
Inactive |
| Click button on building number to access detailed information: | ||||||
|---|---|---|---|---|---|---|
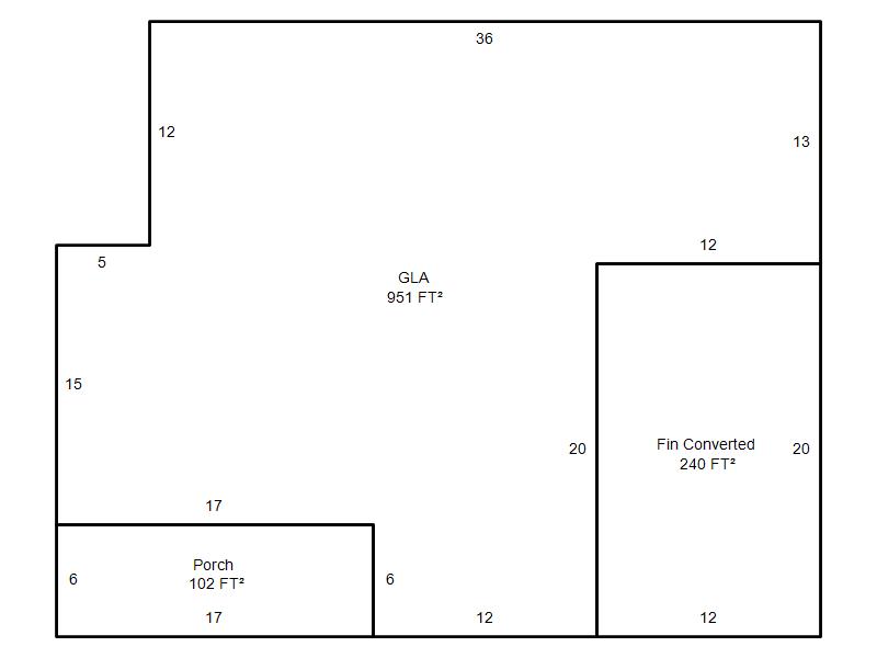
| Bldg # | Vacant/Improved Land | Bldg Description | Year Built | SqFt | # Stories | |
|
1 |
Improved |
Ranch 1 Story |
1949 |
951 |
1 Stories |
|