|
|
|
| Larry Stein Oklahoma County Assessor (405) 713-1200 - Public Access System |
|
|
|
|
|
|
| Real Property Display - Screen Produced 3/3/2026 7:55:40 AM | ||||
|---|---|---|---|---|
| Account: R030032756 | Type: Residential | Location: |
2304 NE 21ST ST |
|
| Building Name/Occupant: |
|
OKLAHOMA CITY |
||
| Owner Name 1: | HAMILTON SAMUEL L SR |
Parcel PIN#: |
2700-03-003-2756 |
|
| Owner Name 2: | 1/4 section #: |
2700 |
||
| Owner Name 3: | Parent Acct: |
|
||
| Billing Address: | 2304 NE 21ST ST | Tax District: |
|
|
| City, State, Zip | OKLAHOMA CITY, OK 73111-1731 | School System: |
Oklahoma City #89 |
|
|
Country: (If noted) |
Land Size: |
0.1515 Acres |
||
|
Land Value: 6,930 |
|
|||
|
Sect 25-T12N-R3W Qtr NW |
CRESTON HILLS ADD
Block
010
Lot
008
|
|||
| Full Legal Description: CRESTON HILLS ADD 010 008 |
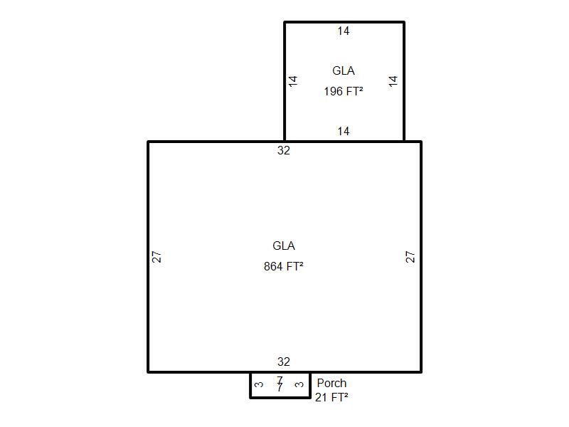
| Photo & Sketch (if available) | Comp Sales (ordered by relevancy) |
|
||||||||||||||||||
|
||||||||||||||||||||
| Value History (*The County Treasurer 405-713-1300 posts & collects actual tax amounts. Contact information HERE) | |||||||||||||
|---|---|---|---|---|---|---|---|---|---|---|---|---|---|
| Year | Market Value | Taxable Mkt Value | Gross Assessed | Exemption | Net Assessed | Millage | Est. Tax | Tax Savings | |||||
|
2025 |
73,500 |
73,500 |
8,085 |
0 |
8,085 |
122.90 |
$994 |
$0 |
|||||
|
2024 |
64,000 |
16,403 |
1,803 |
1,000 |
803 |
123.89 |
$100 |
$773 |
|||||
|
2023 |
54,500 |
15,926 |
1,751 |
1,000 |
751 |
122.82 |
$92 |
$644 |
|||||
|
2022 |
39,000 |
15,463 |
1,700 |
1,000 |
700 |
117.63 |
$82 |
$422 |
|||||
|
2021 |
33,500 |
15,013 |
1,651 |
1,000 |
651 |
117.70 |
$77 |
$357 |
|||||
| Property Account Status/Adjustments/Exemptions | ||
|---|---|---|
| Account # | Exemption Description | Amount |
|
R030032756 |
5% Capped Account |
0 |
| Property Deed Transaction History (Recorded in the County Clerk's Office) | |||||||
|---|---|---|---|---|---|---|---|
| Date | Type | Book | Page | Price | Grantor | Grantee | |
|
12/10/2024 |
|
Deeds |
$139,000 |
ADAMSON SHEREKA S |
HAMILTON SAMUEL L SR |
||
|
5/13/2024 |
|
Deeds |
$0 |
ADAMSON SHEREKA S |
ADAMSON SHEREKA S |
||
|
8/1/2011 |
|
Hmstd Off & |
$0 |
BERRYHILL TRINA |
ADAMSON SHEREKA S |
||
|
8/6/2004 |
|
Hmstd Off & |
$0 |
LEE ERNESTINE |
BERRYHILL TRINA |
||
|
4/1/1983 |
|
Historical |
$0 |
|
LEE ERNESTINE |
||
| Last Mailed Notice of Value (N.O.V.) Information/History | ||||||||
|---|---|---|---|---|---|---|---|---|
| Year | Date | Market Value | Taxable Market Value | Gross Assessed | Exemption | Net Assessed | ||
|
2026 |
02/23/2026 |
91,500 |
77,175 |
8,489 |
0 |
8,489 |
||
|
2025 |
02/14/2025 |
73,500 |
73,500 |
8,085 |
0 |
8,085 |
||
|
2024 |
02/13/2024 |
64,000 |
16,403 |
1,803 |
1,000 |
803 |
||
|
2023 |
02/14/2023 |
54,500 |
15,926 |
1,751 |
1,000 |
751 |
||
|
2022 |
03/15/2022 |
39,000 |
15,463 |
1,700 |
1,000 |
700 |
||
| Property Building Permit History | |||||||||||
|---|---|---|---|---|---|---|---|---|---|---|---|
| Issued | Permit # | Provided by | Bldg # | Description | Est Construction Cost | Status | |||||
| No Building Permit records returned. | |||||||||||
| Click button on building number to access detailed information: | ||||||
|---|---|---|---|---|---|---|
| Bldg # | Vacant/Improved Land | Bldg Description | Year Built | SqFt | # Stories | |
|
1 |
Improved |
Ranch 1 Story |
1944 |
1,060 |
1 Stories |
|