|
|
|
| Larry Stein Oklahoma County Assessor (405) 713-1200 - Public Access System |
|
|
|
|
|
|
| Real Property Display - Screen Produced 4/3/2026 2:21:29 PM | ||||
|---|---|---|---|---|
| Account: R150451285 | Type: Residential | Location: |
633 E BOUSE DR |
|
| Building Name/Occupant: |
|
MIDWEST CITY |
||
| Owner Name 1: | MCLAIN CYNTHIA S |
Parcel PIN#: |
1408-15-045-1285 |
|
| Owner Name 2: | MCLAIN MACKEY L | 1/4 section #: |
1408 |
|
| Owner Name 3: | Parent Acct: |
|
||
| Billing Address: | 633 E BOUSE DR | Tax District: |
|
|
| City, State, Zip | MIDWEST CITY, OK 73110 | School System: |
Mid-Del #52 |
|
|
Country: (If noted) |
Land Size: |
0.1708 Acres |
||
|
Land Value: 22,320 |
|
|||
|
Sect 2-T11N-R2W Qtr NW |
ATKINSON PARK ADD
Block
003
Lot
011
|
|||
| Full Legal Description: ATKINSON PARK ADD 003 011 |
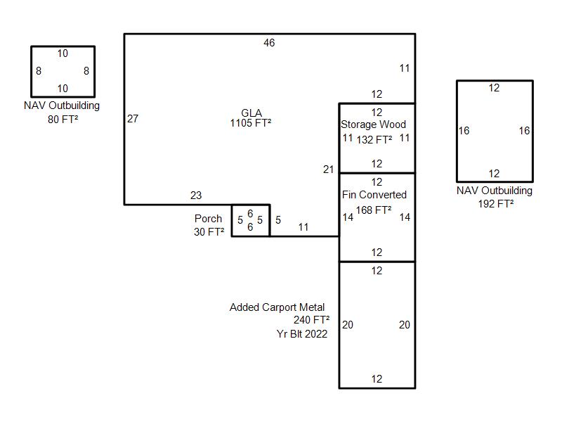
| Photo & Sketch (if available) | Comp Sales (ordered by relevancy) |
|
||||||||||||||||||
|
||||||||||||||||||||
| Value History (*The County Treasurer 405-713-1300 posts & collects actual tax amounts. Contact information HERE) | |||||||||||||
|---|---|---|---|---|---|---|---|---|---|---|---|---|---|
| Year | Market Value | Taxable Mkt Value | Gross Assessed | Exemption | Net Assessed | Millage | Est. Tax | Tax Savings | |||||
|
2026 |
154,000 |
149,333 |
16,426 |
0 |
16,426 |
119.58 |
$1,964 |
$61 |
|||||
|
2025 |
159,000 |
142,222 |
15,643 |
0 |
15,643 |
119.58 |
$1,871 |
$221 |
|||||
|
2024 |
152,000 |
135,450 |
14,899 |
0 |
14,899 |
122.51 |
$1,825 |
$223 |
|||||
|
2023 |
129,000 |
129,000 |
14,190 |
0 |
14,190 |
117.71 |
$1,670 |
$0 |
|||||
|
2022 |
93,500 |
78,828 |
8,670 |
0 |
8,670 |
116.64 |
$1,011 |
$188 |
|||||
| Property Account Status/Adjustments/Exemptions | ||
|---|---|---|
| Account # | Exemption Description | Amount |
|
R150451285 |
5% Capped Account |
0 |
| Property Deed Transaction History (Recorded in the County Clerk's Office) | |||||||
|---|---|---|---|---|---|---|---|
| Date | Type | Book | Page | Price | Grantor | Grantee | |
|
5/12/2022 |
|
Deeds |
$120,000 |
WILLIAMS RUBY GLENDA & RICHARD I TRS |
MCLAIN CYNTHIA S |
||
|
5/20/2021 |
|
Deeds |
$ |
WILLIAMS RICHARD L & GLENDA |
WILLIAMS RUBY GLENDA & RICHARD I TRS |
||
|
9/12/1997 |
|
Historical |
$0 |
WILLIAMS RUSSELL E ETAL |
WILLIAMS RICHARD L & GLENDA |
||
|
9/3/1997 |
|
Historical |
$0 |
WILLIAMS JEANNETTE K |
WILLIAMS RUSSELL E ETAL |
||
|
1/1/1983 |
|
Historical |
$0 |
|
WILLIAMS JEANNETTE K |
||
| Last Mailed Notice of Value (N.O.V.) Information/History | ||||||||
|---|---|---|---|---|---|---|---|---|
| Year | Date | Market Value | Taxable Market Value | Gross Assessed | Exemption | Net Assessed | ||
|
2026 |
02/06/2026 |
154,000 |
149,333 |
16,426 |
0 |
16,426 |
||
|
2025 |
03/28/2025 |
159,000 |
142,222 |
15,643 |
0 |
15,643 |
||
|
2024 |
01/22/2024 |
152,000 |
135,450 |
14,899 |
0 |
14,899 |
||
|
2023 |
01/23/2023 |
129,000 |
129,000 |
14,190 |
0 |
14,190 |
||
|
2022 |
02/22/2022 |
93,500 |
78,828 |
8,670 |
0 |
8,670 |
||
| Property Building Permit History | ||||||
|---|---|---|---|---|---|---|
| Issued | Permit # | Provided by | Bldg # | Description | Est Construction Cost | Status |
|
11/20/2024 |
B-24-2579 |
|
1 |
Storage Buil |
12,000 |
Inactive |
|
1/24/2023 |
B-22-2467 |
|
1 |
Carport |
3,800 |
Inactive |
| Click button on building number to access detailed information: | ||||||
|---|---|---|---|---|---|---|
| Bldg # | Vacant/Improved Land | Bldg Description | Year Built | SqFt | # Stories | |
|
1 |
Improved |
Ranch 1 Story |
1955 |
1,105 |
1 Stories |
|