|
|
|
| Larry Stein Oklahoma County Assessor (405) 713-1200 - Public Access System |
|
|
|
|
|
|
| Real Property Display - Screen Produced 3/5/2026 3:25:45 AM | ||||
|---|---|---|---|---|
| Account: R030036110 | Type: Residential | Location: |
2216 NE 19TH ST |
|
| Building Name/Occupant: |
|
OKLAHOMA CITY |
||
| Owner Name 1: | ARDIANO REBECCA |
Parcel PIN#: |
2700-03-003-6110 |
|
| Owner Name 2: | 1/4 section #: |
2700 |
||
| Owner Name 3: | Parent Acct: |
|
||
| Billing Address: | 2216 NE 19TH ST | Tax District: |
|
|
| City, State, Zip | OKLAHOMA CITY, OK 73111-1708 | School System: |
Oklahoma City #89 |
|
|
Country: (If noted) |
Land Size: |
0.1515 Acres |
||
|
Land Value: 6,930 |
|
|||
|
Sect 25-T12N-R3W Qtr NW |
CRESTON HILLS ADD
Block
023
Lot
004
|
|||
| Full Legal Description: CRESTON HILLS ADD 023 004 |
| Photo & Sketch (if available) | Comp Sales (ordered by relevancy) |
|
||||||||||||||||||
|
||||||||||||||||||||
| Value History (*The County Treasurer 405-713-1300 posts & collects actual tax amounts. Contact information HERE) | |||||||||||||
|---|---|---|---|---|---|---|---|---|---|---|---|---|---|
| Year | Market Value | Taxable Mkt Value | Gross Assessed | Exemption | Net Assessed | Millage | Est. Tax | Tax Savings | |||||
|
2025 |
105,000 |
105,000 |
11,550 |
0 |
11,550 |
122.90 |
$1,419 |
$0 |
|||||
|
2024 |
74,000 |
74,000 |
8,140 |
0 |
8,140 |
123.89 |
$1,008 |
$0 |
|||||
|
2023 |
56,000 |
20,113 |
2,212 |
1,000 |
1,212 |
122.82 |
$149 |
$608 |
|||||
|
2022 |
40,500 |
19,528 |
2,146 |
1,000 |
1,146 |
117.63 |
$135 |
$389 |
|||||
|
2021 |
35,000 |
18,960 |
2,084 |
1,000 |
1,084 |
117.70 |
$128 |
$325 |
|||||
| Property Account Status/Adjustments/Exemptions | ||
|---|---|---|
| Account # | Exemption Description | Amount |
|
R030036110 |
5% Capped Account |
0 |
| Property Deed Transaction History (Recorded in the County Clerk's Office) | ||||||||||
|---|---|---|---|---|---|---|---|---|---|---|
| Date | Type | Book | Page | Price | Grantor | Grantee | ||||
|
4/11/2024 |
|
Deeds |
$130,000 |
SEQUOIA GROUP REI LLC |
ARDIANO REBECCA |
|||||
|
4/4/2024 |
|
Hmstd Off & |
$0 |
2216 NE 19TH ST LLC |
SEQUOIA GROUP REI LLC |
|||||
|
12/9/2023 |
|
Hmstd Off & |
$0 |
SEQUOIA GROUP REI LLC |
2216 NE 19TH ST LLC |
|||||
|
2/15/2023 |
|
Deeds |
$0 |
BURLEIGH D J ETAL |
BURLEIGH ARMAND G |
|||||
|
2/15/2023 |
|
Deeds |
$90,000 |
BURLEIGH ARMAND G |
SEQUOIA GROUP REI LLC |
|||||
| Last Mailed Notice of Value (N.O.V.) Information/History | ||||||||
|---|---|---|---|---|---|---|---|---|
| Year | Date | Market Value | Taxable Market Value | Gross Assessed | Exemption | Net Assessed | ||
|
2026 |
02/23/2026 |
127,000 |
110,250 |
12,127 |
0 |
12,127 |
||
|
2025 |
02/14/2025 |
105,000 |
105,000 |
11,550 |
0 |
11,550 |
||
|
2024 |
02/13/2024 |
74,000 |
74,000 |
8,140 |
0 |
8,140 |
||
|
2023 |
02/14/2023 |
56,000 |
20,113 |
2,212 |
1,000 |
1,212 |
||
|
2023 |
03/02/2023 |
56,000 |
20,113 |
2,212 |
1,000 |
1,212 |
||
| Property Building Permit History | |||||||||||
|---|---|---|---|---|---|---|---|---|---|---|---|
| Issued | Permit # | Provided by | Bldg # | Description | Est Construction Cost | Status | |||||
| No Building Permit records returned. | |||||||||||
| Click button on building number to access detailed information: | ||||||
|---|---|---|---|---|---|---|
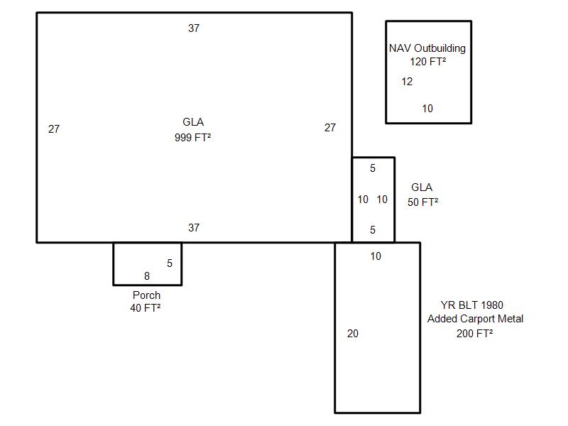
| Bldg # | Vacant/Improved Land | Bldg Description | Year Built | SqFt | # Stories | |
|
1 |
Improved |
Ranch 1 Story |
1944 |
1,049 |
1 Stories |
|