|
|
|
| Larry Stein Oklahoma County Assessor (405) 713-1200 - Public Access System |
|
|
|
|
|
|
| Real Property Display - Screen Produced 4/3/2026 5:48:53 AM | ||||
|---|---|---|---|---|
| Account: R032514000 | Type: Residential | Location: |
2212 N KELHAM AVE |
|
| Building Name/Occupant: |
|
OKLAHOMA CITY |
||
| Owner Name 1: | ESCROW STRATEGY LLC |
Parcel PIN#: |
2701-03-251-4000 |
|
| Owner Name 2: | 1/4 section #: |
2701 |
||
| Owner Name 3: | Parent Acct: |
|
||
| Billing Address: | 3309 NORCREST DR | Tax District: |
|
|
| City, State, Zip | OKLAHOMA CITY, OK 73121-1839 | School System: |
Oklahoma City #89 |
|
|
Country: (If noted) |
Land Size: |
0.1607 Acres |
||
|
Land Value: 9,100 |
|
|||
|
Sect 26-T12N-R3W Qtr NE |
WALLACE SUB ADDITION
Block
000
Lot
000
|
|||
| Full Legal Description: WALLACE SUB ADDITION 000 000 LOTS 22 & 23 |
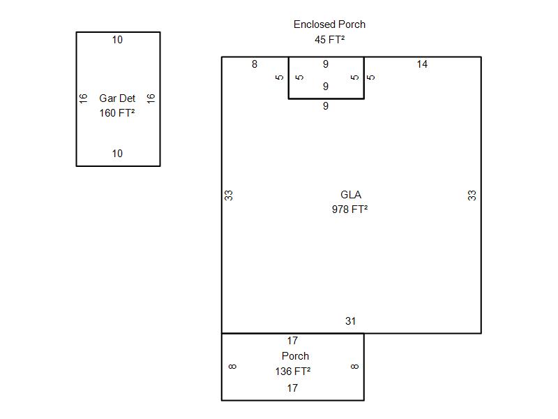
| Photo & Sketch (if available) | Comp Sales (ordered by relevancy) |
|
||||||||||||||||||
|
||||||||||||||||||||
| Value History (*The County Treasurer 405-713-1300 posts & collects actual tax amounts. Contact information HERE) | |||||||||||||
|---|---|---|---|---|---|---|---|---|---|---|---|---|---|
| Year | Market Value | Taxable Mkt Value | Gross Assessed | Exemption | Net Assessed | Millage | Est. Tax | Tax Savings | |||||
|
2026 |
92,000 |
92,000 |
10,120 |
0 |
10,120 |
122.90 |
$1,244 |
$0 |
|||||
|
2025 |
127,000 |
56,283 |
6,190 |
0 |
6,190 |
122.90 |
$761 |
$956 |
|||||
|
2024 |
123,000 |
53,603 |
5,895 |
0 |
5,895 |
123.89 |
$730 |
$946 |
|||||
|
2023 |
99,000 |
51,051 |
5,615 |
0 |
5,615 |
122.82 |
$690 |
$648 |
|||||
|
2022 |
79,000 |
48,620 |
5,347 |
0 |
5,347 |
117.63 |
$629 |
$393 |
|||||
| Property Account Status/Adjustments/Exemptions | ||||||
|---|---|---|---|---|---|---|
| Account # | Exemption Description | Amount | ||||
| No adjustment/exemption records returned. | ||||||
| Property Deed Transaction History (Recorded in the County Clerk's Office) | ||||||||||
|---|---|---|---|---|---|---|---|---|---|---|
| Date | Type | Book | Page | Price | Grantor | Grantee | ||||
|
2/10/2025 |
|
Deeds |
$75,000 |
JONES RANDY A |
ESCROW STRATEGY LLC |
|||||
|
7/6/2011 |
|
Other |
$0 |
SECRETARY OF HOUSING & URBAN DEV |
JONES RANDY A |
|||||
|
8/9/2010 |
|
Hmstd Off & |
$0 |
SINGLETON OLIVER W |
SECRETARY OF HOUSING & URBAN DEV |
|||||
|
6/22/2001 |
|
Deeds |
$41,000 |
MLBP PROPERTIES |
SINGLETON OLIVER W |
|||||
|
4/23/2001 |
|
Deeds |
$17,500 |
FRAZIER JOHNNIE R |
MLBP PROPERTIES |
|||||
| Last Mailed Notice of Value (N.O.V.) Information/History | ||||||||
|---|---|---|---|---|---|---|---|---|
| Year | Date | Market Value | Taxable Market Value | Gross Assessed | Exemption | Net Assessed | ||
|
2026 |
02/23/2026 |
92,000 |
92,000 |
10,120 |
0 |
10,120 |
||
|
2025 |
02/14/2025 |
127,000 |
56,283 |
6,190 |
0 |
6,190 |
||
|
2025 |
03/28/2025 |
127,000 |
56,283 |
6,190 |
0 |
6,190 |
||
|
2024 |
02/13/2024 |
123,000 |
53,603 |
5,895 |
0 |
5,895 |
||
|
2023 |
02/14/2023 |
99,000 |
51,051 |
5,615 |
0 |
5,615 |
||
| Property Building Permit History | |||||||||||
|---|---|---|---|---|---|---|---|---|---|---|---|
| Issued | Permit # | Provided by | Bldg # | Description | Est Construction Cost | Status | |||||
| No Building Permit records returned. | |||||||||||
| Click button on building number to access detailed information: | ||||||
|---|---|---|---|---|---|---|
| Bldg # | Vacant/Improved Land | Bldg Description | Year Built | SqFt | # Stories | |
|
1 |
Improved |
Ranch 1 Story |
1928 |
978 |
1 Stories |
|