|
|
|
| Larry Stein Oklahoma County Assessor (405) 713-1200 - Public Access System |
|
|
|
|
|
|
| Real Property Display - Screen Produced 3/5/2026 9:29:53 PM | ||||
|---|---|---|---|---|
| Account: R030598075 | Type: Residential | Location: |
2120 N EVEREST AVE |
|
| Building Name/Occupant: |
|
OKLAHOMA CITY |
||
| Owner Name 1: | BALLGAME LLC |
Parcel PIN#: |
2704-03-059-8075 |
|
| Owner Name 2: | 1/4 section #: |
2704 |
||
| Owner Name 3: | Parent Acct: |
|
||
| Billing Address: | 4608 NE 93RD PL | Tax District: |
|
|
| City, State, Zip | OKLAHOMA CITY, OK 73131 | School System: |
Oklahoma City #89 |
|
|
Country: (If noted) |
Land Size: |
0.1596 Acres |
||
|
Land Value: 11,815 |
|
|||
|
Sect 26-T12N-R3W Qtr NW |
TUXEDO PK SUB LT 12
Block
012
Lot
000
|
|||
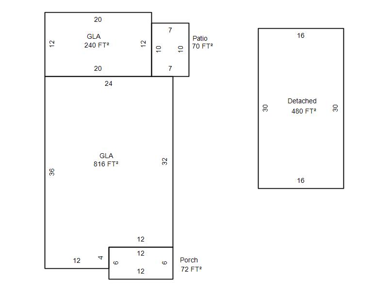
| Full Legal Description: TUXEDO PK SUB LT 12 012 000 LOTS 35 & 36 |
| Photo & Sketch (if available) | Comp Sales (ordered by relevancy) |
|
||||||||||||||||||
|
||||||||||||||||||||
| Value History (*The County Treasurer 405-713-1300 posts & collects actual tax amounts. Contact information HERE) | |||||||||||||
|---|---|---|---|---|---|---|---|---|---|---|---|---|---|
| Year | Market Value | Taxable Mkt Value | Gross Assessed | Exemption | Net Assessed | Millage | Est. Tax | Tax Savings | |||||
|
2025 |
95,500 |
72,765 |
8,004 |
0 |
8,004 |
122.90 |
$984 |
$307 |
|||||
|
2024 |
91,000 |
69,300 |
7,623 |
0 |
7,623 |
123.89 |
$944 |
$296 |
|||||
|
2023 |
66,000 |
66,000 |
7,260 |
0 |
7,260 |
122.82 |
$892 |
$0 |
|||||
|
2022 |
64,500 |
29,475 |
3,241 |
0 |
3,241 |
117.63 |
$381 |
$453 |
|||||
|
2021 |
45,500 |
28,072 |
3,087 |
0 |
3,087 |
117.70 |
$363 |
$226 |
|||||
| Property Account Status/Adjustments/Exemptions | ||
|---|---|---|
| Account # | Exemption Description | Amount |
|
R030598075 |
5% Capped Account |
0 |
| Property Deed Transaction History (Recorded in the County Clerk's Office) | |||||||
|---|---|---|---|---|---|---|---|
| Date | Type | Book | Page | Price | Grantor | Grantee | |
|
9/27/2022 |
|
Deeds |
$65,000 |
MISTER C HOLDINGS LLC |
BALLGAME LLC |
||
|
8/31/2022 |
|
Deeds |
$28,000 |
SCOTT ROYCE LEONA |
MISTER C HOLDINGS LLC |
||
|
8/9/2022 |
|
Hmstd Off & |
$0 |
SCOTT OZA LEE |
SCOTT ROYCE LEONA |
||
|
12/31/1997 |
|
Historical |
$0 |
SCOTT OZA L & D |
SCOTT OZA LEE |
||
|
11/11/1911 |
|
Historical |
$0 |
|
SCOTT OZA L & D |
||
| Last Mailed Notice of Value (N.O.V.) Information/History | ||||||||
|---|---|---|---|---|---|---|---|---|
| Year | Date | Market Value | Taxable Market Value | Gross Assessed | Exemption | Net Assessed | ||
|
2026 |
02/23/2026 |
97,500 |
76,403 |
8,404 |
0 |
8,404 |
||
|
2025 |
02/14/2025 |
95,500 |
72,765 |
8,004 |
0 |
8,004 |
||
|
2024 |
02/13/2024 |
91,000 |
69,300 |
7,623 |
0 |
7,623 |
||
|
2023 |
02/14/2023 |
66,000 |
66,000 |
7,260 |
0 |
7,260 |
||
|
2022 |
03/15/2022 |
64,500 |
29,475 |
3,241 |
0 |
3,241 |
||
| Property Building Permit History | |||||||||||
|---|---|---|---|---|---|---|---|---|---|---|---|
| Issued | Permit # | Provided by | Bldg # | Description | Est Construction Cost | Status | |||||
| No Building Permit records returned. | |||||||||||
| Click button on building number to access detailed information: | ||||||
|---|---|---|---|---|---|---|
| Bldg # | Vacant/Improved Land | Bldg Description | Year Built | SqFt | # Stories | |
|
1 |
Improved |
Ranch 1 Story |
1930 |
1,056 |
1 Stories |
|