|
|
|
| Larry Stein Oklahoma County Assessor (405) 713-1200 - Public Access System |
|
|
|
|
|
|
| Real Property Display - Screen Produced 4/2/2026 3:57:37 PM | ||||
|---|---|---|---|---|
| Account: R034273220 | Type: Residential | Location: |
428 NE 15TH ST |
|
| Building Name/Occupant: |
|
OKLAHOMA CITY |
||
| Owner Name 1: | PAXTON SETH W |
Parcel PIN#: |
2707-03-427-3220 |
|
| Owner Name 2: | 1/4 section #: |
2707 |
||
| Owner Name 3: | Parent Acct: |
|
||
| Billing Address: | 428 NE 15TH ST | Tax District: |
|
|
| City, State, Zip | OKLAHOMA CITY, OK 73104 | School System: |
Oklahoma City #89 |
|
|
Country: (If noted) |
UNITED STATES |
Land Size: |
0.1928 Acres |
|
|
Land Value: 56,280 |
|
|||
|
Sect 27-T12N-R3W Qtr SW |
CLASSENS N HIGHLAND PARKED
Block
004
Lot
017
|
|||
| Full Legal Description: CLASSENS N HIGHLAND PARKED 004 017 |
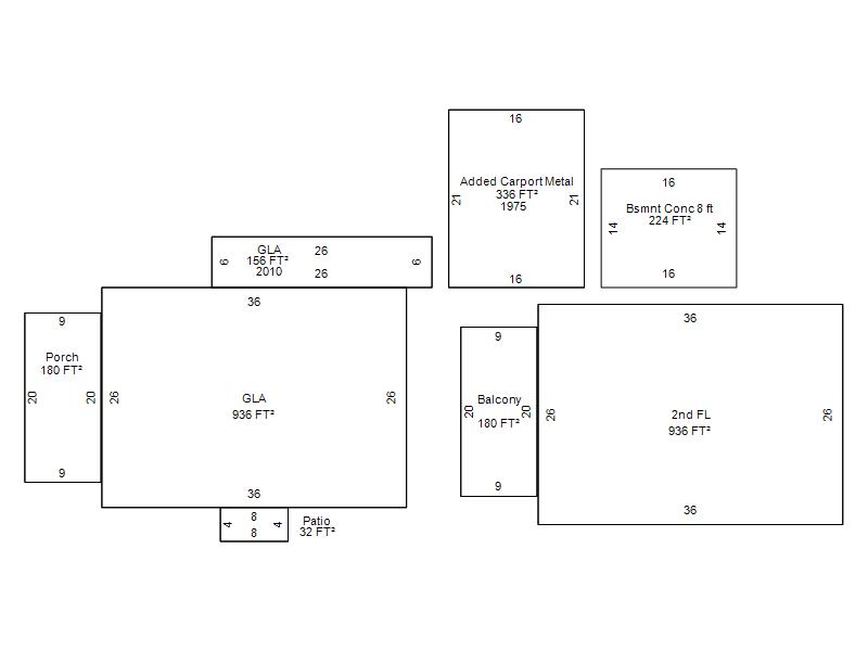
| Photo & Sketch (if available) | Comp Sales (ordered by relevancy) |
|
||||||||||||||||||
|
||||||||||||||||||||
| Value History (*The County Treasurer 405-713-1300 posts & collects actual tax amounts. Contact information HERE) | |||||||||||||
|---|---|---|---|---|---|---|---|---|---|---|---|---|---|
| Year | Market Value | Taxable Mkt Value | Gross Assessed | Exemption | Net Assessed | Millage | Est. Tax | Tax Savings | |||||
|
2026 |
372,000 |
372,000 |
40,920 |
1,000 |
39,920 |
122.90 |
$4,906 |
$123 |
|||||
|
2025 |
373,500 |
373,500 |
41,085 |
1,000 |
40,085 |
122.90 |
$4,926 |
$123 |
|||||
|
2024 |
364,500 |
364,500 |
40,095 |
1,000 |
39,095 |
123.89 |
$4,843 |
$124 |
|||||
|
2023 |
348,000 |
251,163 |
27,627 |
0 |
27,627 |
122.82 |
$3,393 |
$1,308 |
|||||
|
2022 |
302,500 |
239,203 |
26,311 |
0 |
26,311 |
117.63 |
$3,095 |
$819 |
|||||
| Property Account Status/Adjustments/Exemptions | ||
|---|---|---|
| Account # | Exemption Description | Amount |
|
R034273220 |
3% Cap Homestead |
0 |
|
R034273220 |
Homestead |
1,000 |
| Property Deed Transaction History (Recorded in the County Clerk's Office) | ||||||||||
|---|---|---|---|---|---|---|---|---|---|---|
| Date | Type | Book | Page | Price | Grantor | Grantee | ||||
|
3/23/2023 |
|
Deeds |
$336,000 |
SUTTER HANNAH L |
PAXTON SETH W |
|||||
|
5/14/2015 |
|
Deeds |
$190,000 |
HASKINS WILLIE L JR & KAREN TING |
SUTTER HANNAH L |
|||||
|
7/13/2005 |
|
Deeds |
$130,000 |
DELCE ANTHONY L & MICHELLE D |
HASKINS WILLIE L JR & KAREN TING |
|||||
|
7/26/2002 |
|
Deeds |
$138,000 |
KOURI MARK E KOURI LILIAN O |
DELCE ANTHONY L & MICHELLE D |
|||||
|
4/16/1998 |
|
Historical |
$33,000 |
MUNSON ELSIE F EXECTRX |
KOURI MARK E |
|||||
| Last Mailed Notice of Value (N.O.V.) Information/History | ||||||||
|---|---|---|---|---|---|---|---|---|
| Year | Date | Market Value | Taxable Market Value | Gross Assessed | Exemption | Net Assessed | ||
|
2025 |
02/14/2025 |
373,500 |
373,500 |
41,085 |
1,000 |
40,085 |
||
|
2024 |
02/13/2024 |
364,500 |
364,500 |
40,095 |
0 |
40,095 |
||
|
2023 |
02/14/2023 |
348,000 |
251,163 |
27,627 |
0 |
27,627 |
||
|
2022 |
03/15/2022 |
302,500 |
239,203 |
26,311 |
0 |
26,311 |
||
|
2021 |
03/19/2021 |
280,500 |
227,813 |
25,059 |
0 |
25,059 |
||
| Property Building Permit History | ||||||
|---|---|---|---|---|---|---|
| Issued | Permit # | Provided by | Bldg # | Description | Est Construction Cost | Status |
|
4/23/2014 |
10462970 |
OKLAHOMA CITY |
1 |
Demolish |
0 |
Inactive |
| Click button on building number to access detailed information: | ||||||
|---|---|---|---|---|---|---|
| Bldg # | Vacant/Improved Land | Bldg Description | Year Built | SqFt | # Stories | |
|
1 |
Improved |
2 Story |
1920 |
2,028 |
2 Stories |
|