|
|
|
| Larry Stein Oklahoma County Assessor (405) 713-1200 - Public Access System |
|
|
|
|
|
|
| Real Property Display - Screen Produced 3/17/2026 12:22:40 PM | ||||
|---|---|---|---|---|
| Account: R045481500 | Type: Residential | Location: |
915 NW 15TH ST |
|
| Building Name/Occupant: |
|
OKLAHOMA CITY |
||
| Owner Name 1: | LCI FAMILY REV TRUST |
Parcel PIN#: |
2711-04-548-1500 |
|
| Owner Name 2: | 1/4 section #: |
2711 |
||
| Owner Name 3: | Parent Acct: |
|
||
| Billing Address: | 915 NW 15TH ST | Tax District: |
|
|
| City, State, Zip | OKLAHOMA CITY, OK 73106-6607 | School System: |
Oklahoma City #89 |
|
|
Country: (If noted) |
Land Size: |
0.2758 Acres |
||
|
Land Value: 159,519 |
|
|||
|
Sect 28-T12N-R3W Qtr SW |
HARNDALE ADDITION
Block
000
Lot
000
|
|||
| Full Legal Description: HARNDALE ADDITION 000 000 W11FT LOT 15 & PT LOT 17 BEG 20FT NELY OF SW/C TH N169.2FT E77.5FT S140FT WLY TO BEG |
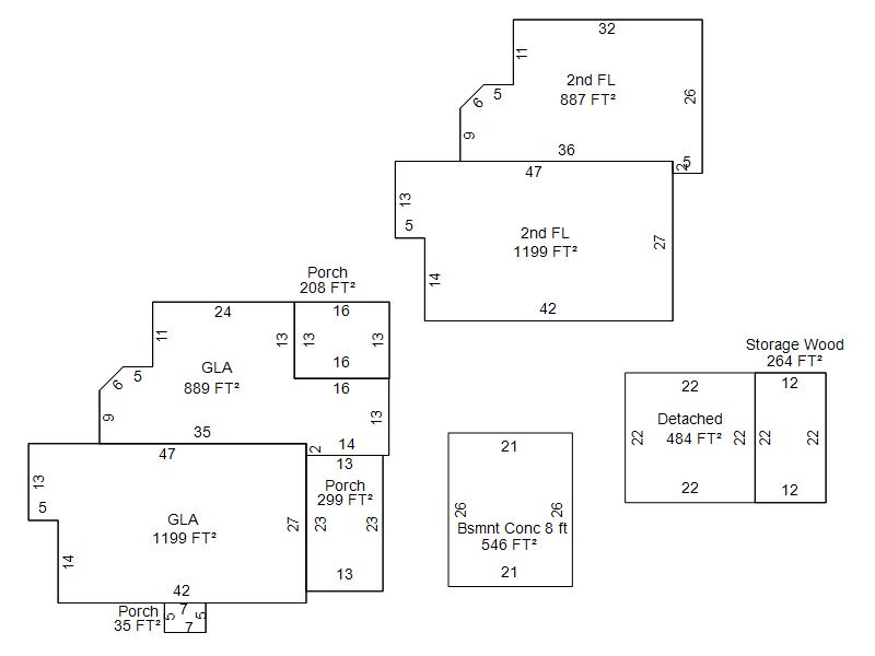
| Photo & Sketch (if available) | Comp Sales (ordered by relevancy) |
|
||||||||||||||||||
|
||||||||||||||||||||
| Value History (*The County Treasurer 405-713-1300 posts & collects actual tax amounts. Contact information HERE) | |||||||||||||
|---|---|---|---|---|---|---|---|---|---|---|---|---|---|
| Year | Market Value | Taxable Mkt Value | Gross Assessed | Exemption | Net Assessed | Millage | Est. Tax | Tax Savings | |||||
|
2025 |
967,000 |
766,410 |
84,304 |
1,000 |
83,304 |
122.90 |
$10,238 |
$2,835 |
|||||
|
2024 |
954,500 |
744,088 |
81,848 |
1,000 |
80,848 |
123.89 |
$10,016 |
$2,991 |
|||||
|
2023 |
1,006,000 |
722,416 |
79,465 |
1,000 |
78,465 |
122.82 |
$9,637 |
$3,954 |
|||||
|
2022 |
824,500 |
701,375 |
77,150 |
1,000 |
76,150 |
117.63 |
$8,958 |
$1,711 |
|||||
|
2021 |
802,500 |
680,947 |
74,903 |
1,000 |
73,903 |
117.70 |
$8,699 |
$1,691 |
|||||
| Property Account Status/Adjustments/Exemptions | ||
|---|---|---|
| Account # | Exemption Description | Amount |
|
R045481500 |
Homestead |
1,000 |
| Property Deed Transaction History (Recorded in the County Clerk's Office) | |||||||
|---|---|---|---|---|---|---|---|
| Date | Type | Book | Page | Price | Grantor | Grantee | |
|
5/29/2025 |
|
Deeds |
$1,650,000 |
SCHNEBEL BLAIRE W |
LCI FAMILY REV TRUST |
||
|
11/21/2019 |
|
Deeds |
$0 |
SCHNEBEL CHASE H & BLAIRE W |
SCHNEBEL BLAIRE W |
||
|
6/15/2011 |
|
Deeds |
$200,000 |
RENBARGER DONALD C |
SCHNEBEL CHASE H & BLAIRE W |
||
|
10/6/2010 |
|
Hmstd Off & |
$0 |
HARTSELL ANTOINETTE C/O CHARLES HARTSELL |
RENBARGER DONALD C |
||
|
11/11/1911 |
|
Historical |
$0 |
|
HARTSELL ANTOINETTE |
||
| Last Mailed Notice of Value (N.O.V.) Information/History | ||||||||
|---|---|---|---|---|---|---|---|---|
| Year | Date | Market Value | Taxable Market Value | Gross Assessed | Exemption | Net Assessed | ||
|
2026 |
02/23/2026 |
1,649,000 |
1,649,000 |
181,390 |
1,000 |
180,390 |
||
|
2025 |
02/14/2025 |
967,000 |
766,410 |
84,304 |
1,000 |
83,304 |
||
|
2024 |
02/13/2024 |
954,500 |
744,088 |
81,848 |
1,000 |
80,848 |
||
|
2023 |
02/14/2023 |
1,006,000 |
722,416 |
79,465 |
1,000 |
78,465 |
||
|
2022 |
03/15/2022 |
824,500 |
701,375 |
77,150 |
1,000 |
76,150 |
||
| Property Building Permit History | ||||||
|---|---|---|---|---|---|---|
| Issued | Permit # | Provided by | Bldg # | Description | Est Construction Cost | Status |
|
11/13/2015 |
10478588 |
OKLAHOMA CITY |
1 |
Add On |
225,000 |
Inactive |
|
8/8/2011 |
10433980 |
OKLAHOMA CITY |
1 |
Remodeled |
50,000 |
Inactive |
| Click button on building number to access detailed information: | ||||||
|---|---|---|---|---|---|---|
| Bldg # | Vacant/Improved Land | Bldg Description | Year Built | SqFt | # Stories | |
|
1 |
Improved |
2 Story |
1948 |
4,174 |
2 Stories |
|