|
|
|
| Larry Stein Oklahoma County Assessor (405) 713-1200 - Public Access System |
|
|
|
|
|
|
| Real Property Display - Screen Produced 3/17/2026 5:25:30 AM | ||||
|---|---|---|---|---|
| Account: R045003618 | Type: Residential | Location: |
825 NW 20TH ST |
|
| Building Name/Occupant: |
|
OKLAHOMA CITY |
||
| Owner Name 1: | MADDOX MITCHELL & ELIZABETH |
Parcel PIN#: |
2712-04-500-3618 |
|
| Owner Name 2: | 1/4 section #: |
2712 |
||
| Owner Name 3: | Parent Acct: |
|
||
| Billing Address: | 825 NW 20TH ST | Tax District: |
|
|
| City, State, Zip | OKLAHOMA CITY, OK 73106 | School System: |
Oklahoma City #89 |
|
|
Country: (If noted) |
UNITED STATES |
Land Size: |
0.1607 Acres |
|
|
Land Value: 79,800 |
|
|||
|
Sect 28-T12N-R3W Qtr NW |
UNIVERSITY ADDITION
Block
032
Lot
000
|
|||
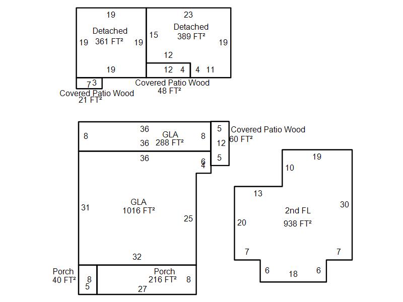
| Full Legal Description: UNIVERSITY ADDITION 032 000 LOTS 25 & 26 |
| Photo & Sketch (if available) | Comp Sales (ordered by relevancy) |
|
||||||||||||||||||
|
||||||||||||||||||||
| Value History (*The County Treasurer 405-713-1300 posts & collects actual tax amounts. Contact information HERE) | |||||||||||||
|---|---|---|---|---|---|---|---|---|---|---|---|---|---|
| Year | Market Value | Taxable Mkt Value | Gross Assessed | Exemption | Net Assessed | Millage | Est. Tax | Tax Savings | |||||
|
2025 |
503,500 |
503,500 |
55,385 |
0 |
55,385 |
122.90 |
$6,807 |
$0 |
|||||
|
2024 |
523,000 |
503,670 |
55,403 |
1,000 |
54,403 |
123.89 |
$6,740 |
$387 |
|||||
|
2023 |
489,000 |
489,000 |
53,790 |
1,000 |
52,790 |
122.82 |
$6,484 |
$123 |
|||||
|
2022 |
325,010 |
244,575 |
26,903 |
0 |
26,903 |
117.63 |
$3,165 |
$1,041 |
|||||
|
2021 |
326,810 |
232,929 |
25,622 |
0 |
25,622 |
117.70 |
$3,016 |
$1,215 |
|||||
| Property Account Status/Adjustments/Exemptions | ||
|---|---|---|
| Account # | Exemption Description | Amount |
|
R045003618 |
Homestead |
1,000 |
| Property Deed Transaction History (Recorded in the County Clerk's Office) | ||||||||||
|---|---|---|---|---|---|---|---|---|---|---|
| Date | Type | Book | Page | Price | Grantor | Grantee | ||||
|
2/20/2025 |
|
Deeds |
$495,000 |
STEELE CAMERON |
MADDOX MITCHELL & ELIZABETH |
|||||
|
7/28/2022 |
|
Deeds |
$495,000 |
TANAKA ARTHUR |
STEELE CAMERON |
|||||
|
7/14/2022 |
|
Hmstd Off & |
$0 |
LUCKY A T INVESTMENTS LLC |
TANAKA ARTHUR |
|||||
|
6/14/2011 |
|
Deeds |
$106,000 |
STEVE D SHEPHERD LLC |
LUCKY A T INVESTMENTS LLC |
|||||
|
5/13/2011 |
|
Deeds |
$70,000 |
CROUCH WILLIAM J CROUCH STACEY |
STEVE D SHEPHERD LLC |
|||||
| Last Mailed Notice of Value (N.O.V.) Information/History | ||||||||
|---|---|---|---|---|---|---|---|---|
| Year | Date | Market Value | Taxable Market Value | Gross Assessed | Exemption | Net Assessed | ||
|
2026 |
02/23/2026 |
511,500 |
511,500 |
56,265 |
1,000 |
55,265 |
||
|
2024 |
02/13/2024 |
523,000 |
503,670 |
55,403 |
1,000 |
54,403 |
||
|
2023 |
02/14/2023 |
489,000 |
489,000 |
53,790 |
1,000 |
52,790 |
||
|
2022 |
03/15/2022 |
325,010 |
244,575 |
26,903 |
0 |
26,903 |
||
|
2021 |
03/19/2021 |
326,810 |
232,929 |
25,622 |
0 |
25,622 |
||
| Property Building Permit History | ||||||
|---|---|---|---|---|---|---|
| Issued | Permit # | Provided by | Bldg # | Description | Est Construction Cost | Status |
|
5/15/2012 |
10440154 |
OKLAHOMA CITY |
|
Remodeled |
0 |
Inactive |
| Click button on building number to access detailed information: | ||||||
|---|---|---|---|---|---|---|
| Bldg # | Vacant/Improved Land | Bldg Description | Year Built | SqFt | # Stories | |
|
1 |
Improved |
2 Story |
1915 |
2,242 |
2 Stories |
|