|
|
|
| Larry Stein Oklahoma County Assessor (405) 713-1200 - Public Access System |
|
|
|
|
|
|
| Real Property Display - Screen Produced 3/17/2026 3:21:13 AM | ||||
|---|---|---|---|---|
| Account: R045008874 | Type: Residential | Location: |
1421 NW 16TH ST |
|
| Building Name/Occupant: |
|
OKLAHOMA CITY |
||
| Owner Name 1: | JOHNSON ADAM |
Parcel PIN#: |
2713-04-500-8874 |
|
| Owner Name 2: | 1/4 section #: |
2713 |
||
| Owner Name 3: | Parent Acct: |
|
||
| Billing Address: | 3832 STONE HILL LN | Tax District: |
|
|
| City, State, Zip | EDMOND, OK 73034-6197 | School System: |
Oklahoma City #89 |
|
|
Country: (If noted) |
Land Size: |
0.1607 Acres |
||
|
Land Value: 38,850 |
|
|||
|
Sect 29-T12N-R3W Qtr NE |
UNIVERSITY ADDITION
Block
077
Lot
000
|
|||
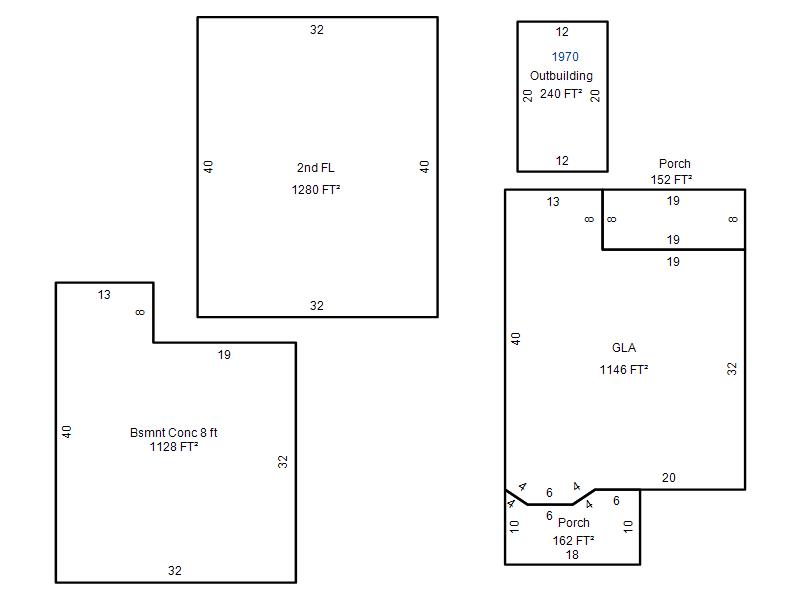
| Full Legal Description: UNIVERSITY ADDITION 077 000 LOTS 23 & 24 |
| Photo & Sketch (if available) | Comp Sales (ordered by relevancy) |
|
||||||||||||||||||
|
||||||||||||||||||||
| Value History (*The County Treasurer 405-713-1300 posts & collects actual tax amounts. Contact information HERE) | |||||||||||||
|---|---|---|---|---|---|---|---|---|---|---|---|---|---|
| Year | Market Value | Taxable Mkt Value | Gross Assessed | Exemption | Net Assessed | Millage | Est. Tax | Tax Savings | |||||
|
2025 |
357,500 |
357,500 |
39,325 |
0 |
39,325 |
122.90 |
$4,833 |
$0 |
|||||
|
2024 |
342,000 |
184,063 |
20,246 |
0 |
20,246 |
123.89 |
$2,508 |
$2,152 |
|||||
|
2023 |
346,000 |
175,299 |
19,282 |
0 |
19,282 |
122.82 |
$2,368 |
$2,306 |
|||||
|
2022 |
251,500 |
166,952 |
18,363 |
0 |
18,363 |
117.63 |
$2,160 |
$1,094 |
|||||
|
2021 |
211,000 |
159,002 |
17,489 |
0 |
17,489 |
117.70 |
$2,059 |
$673 |
|||||
| Property Account Status/Adjustments/Exemptions | ||||||
|---|---|---|---|---|---|---|
| Account # | Exemption Description | Amount | ||||
| No adjustment/exemption records returned. | ||||||
| Property Deed Transaction History (Recorded in the County Clerk's Office) | ||||||||||
|---|---|---|---|---|---|---|---|---|---|---|
| Date | Type | Book | Page | Price | Grantor | Grantee | ||||
|
10/1/2025 |
|
Deeds |
$350,000 |
ADUDDELL DAVID A & CAROL A |
JOHNSON ADAM |
|||||
|
6/10/2024 |
|
Other |
$0 |
WILD BENNETT MARGARET LYNNE |
ADUDDELL DAVID A & CAROL A |
|||||
|
2/12/2010 |
|
Other |
$0 |
BERGERON JO NELL |
WILD BENNETT MARGARET LYNNE |
|||||
|
9/12/1994 |
|
Historical |
$50,000 |
NGUYEN DAVID |
BERGERON JO NELL |
|||||
|
9/1/1994 |
|
Historical |
$15,000 |
PNC MORTGAGE CORP OF AMERICA |
NGUYEN DAVID |
|||||
| Last Mailed Notice of Value (N.O.V.) Information/History | ||||||||
|---|---|---|---|---|---|---|---|---|
| Year | Date | Market Value | Taxable Market Value | Gross Assessed | Exemption | Net Assessed | ||
|
2026 |
02/23/2026 |
372,000 |
372,000 |
40,920 |
0 |
40,920 |
||
|
2025 |
02/14/2025 |
357,500 |
357,500 |
39,325 |
0 |
39,325 |
||
|
2024 |
02/13/2024 |
342,000 |
184,063 |
20,246 |
0 |
20,246 |
||
|
2023 |
02/14/2023 |
346,000 |
175,299 |
19,282 |
0 |
19,282 |
||
|
2022 |
03/15/2022 |
251,500 |
166,952 |
18,363 |
0 |
18,363 |
||
| Property Building Permit History | |||||||||||
|---|---|---|---|---|---|---|---|---|---|---|---|
| Issued | Permit # | Provided by | Bldg # | Description | Est Construction Cost | Status | |||||
| No Building Permit records returned. | |||||||||||
| Click button on building number to access detailed information: | ||||||
|---|---|---|---|---|---|---|
| Bldg # | Vacant/Improved Land | Bldg Description | Year Built | SqFt | # Stories | |
|
1 |
Improved |
2 Story |
1915 |
2,426 |
2 Stories |
|