|
|
|
| Larry Stein Oklahoma County Assessor (405) 713-1200 - Public Access System |
|
|
|
|
|
|
| Real Property Display - Screen Produced 3/16/2026 9:46:59 PM | ||||
|---|---|---|---|---|
| Account: R062627480 | Type: Residential | Location: |
1840 NW 14TH ST |
|
| Building Name/Occupant: |
|
OKLAHOMA CITY |
||
| Owner Name 1: | CARROLL MORGAN & CHRISTOPHER |
Parcel PIN#: |
2715-06-262-7480 |
|
| Owner Name 2: | 1/4 section #: |
2715 |
||
| Owner Name 3: | Parent Acct: |
|
||
| Billing Address: | 1840 NW 14TH ST | Tax District: |
|
|
| City, State, Zip | OKLAHOMA CITY, OK 73106-2016 | School System: |
Oklahoma City #89 |
|
|
Country: (If noted) |
Land Size: |
0.1607 Acres |
||
|
Land Value: 28,000 |
|
|||
|
Sect 29-T12N-R3W Qtr SW |
COLLEGE ADDITION
Block
009
Lot
000
|
|||
| Full Legal Description: COLLEGE ADDITION 009 000 LOTS 21 & 22 |
| Photo & Sketch (if available) | Comp Sales (ordered by relevancy) |
|
||||||||||||||||||
|
||||||||||||||||||||
| Value History (*The County Treasurer 405-713-1300 posts & collects actual tax amounts. Contact information HERE) | |||||||||||||
|---|---|---|---|---|---|---|---|---|---|---|---|---|---|
| Year | Market Value | Taxable Mkt Value | Gross Assessed | Exemption | Net Assessed | Millage | Est. Tax | Tax Savings | |||||
|
2025 |
28,000 |
28,000 |
3,080 |
0 |
3,080 |
122.90 |
$379 |
$0 |
|||||
|
2024 |
28,000 |
28,000 |
3,080 |
0 |
3,080 |
123.89 |
$382 |
$0 |
|||||
|
2023 |
109,500 |
47,838 |
5,261 |
0 |
5,261 |
122.82 |
$646 |
$833 |
|||||
|
2022 |
86,000 |
45,560 |
5,010 |
0 |
5,010 |
117.63 |
$590 |
$523 |
|||||
|
2021 |
76,500 |
43,391 |
4,772 |
0 |
4,772 |
117.70 |
$562 |
$429 |
|||||
| Property Account Status/Adjustments/Exemptions | ||||||
|---|---|---|---|---|---|---|
| Account # | Exemption Description | Amount | ||||
| No adjustment/exemption records returned. | ||||||
| Property Deed Transaction History (Recorded in the County Clerk's Office) | ||||||||||
|---|---|---|---|---|---|---|---|---|---|---|
| Date | Type | Book | Page | Price | Grantor | Grantee | ||||
|
7/28/2025 |
|
Deeds |
$535,500 |
A R T DEVELOPMENT LLC |
CARROLL MORGAN & CHRISTOPHER |
|||||
|
2/21/2023 |
|
Deeds |
$100,000 |
KAKKANATT NEENUMOLMARY KURUVILLA |
A R T DEVELOPMENT LLC |
|||||
|
11/1/2018 |
|
Hmstd Off & |
$0 |
ABRAHAM KURUVILLA |
KAKKANATT NEENUMOLMARY KURUVILLA |
|||||
|
12/12/2008 |
|
Deeds |
$0 |
ABRAHAM KURUVILLA |
ABRAHAM KURUVILLA |
|||||
|
5/1/2006 |
|
Deeds |
$24,500 |
STEVENSON ANDREA L |
ABRAHAM KURUVILLA |
|||||
| Last Mailed Notice of Value (N.O.V.) Information/History | ||||||||
|---|---|---|---|---|---|---|---|---|
| Year | Date | Market Value | Taxable Market Value | Gross Assessed | Exemption | Net Assessed | ||
|
2026 |
02/23/2026 |
536,500 |
536,500 |
59,015 |
0 |
59,015 |
||
|
2023 |
02/14/2023 |
109,500 |
47,838 |
5,261 |
0 |
5,261 |
||
|
2022 |
03/15/2022 |
86,000 |
45,560 |
5,010 |
0 |
5,010 |
||
|
2021 |
03/19/2021 |
76,500 |
43,391 |
4,773 |
0 |
4,773 |
||
|
2020 |
03/10/2020 |
64,500 |
41,325 |
4,545 |
0 |
4,545 |
||
| Property Building Permit History | ||||||
|---|---|---|---|---|---|---|
| Issued | Permit # | Provided by | Bldg # | Description | Est Construction Cost | Status |
|
11/29/2023 |
BLDR-2023-06810 |
|
1 |
Main Dwellin |
135,000 |
Inactive |
|
5/2/2023 |
BLDD-2023-02194 |
|
|
Demolish |
|
Inactive |
|
9/6/2013 |
10455593 |
OKLAHOMA CITY |
|
Demolish |
0 |
Inactive |
| Click button on building number to access detailed information: | ||||||
|---|---|---|---|---|---|---|
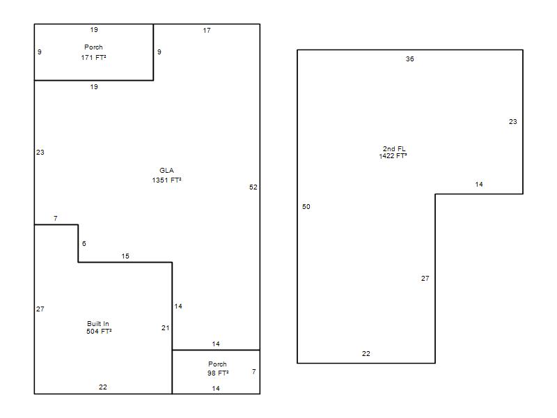
| Bldg # | Vacant/Improved Land | Bldg Description | Year Built | SqFt | # Stories | |
|
1 |
Improved |
2 Story |
2023 |
2,773 |
2 Stories |
|