|
|
|
| Larry Stein Oklahoma County Assessor (405) 713-1200 - Public Access System |
|
|
|
|
|
|
| Real Property Display - Screen Produced 3/16/2026 9:13:39 PM | ||||
|---|---|---|---|---|
| Account: R063022450 | Type: Residential | Location: |
1914 NW 15TH ST |
|
| Building Name/Occupant: |
|
OKLAHOMA CITY |
||
| Owner Name 1: | GUTIERREZ DINA |
Parcel PIN#: |
2715-06-302-2450 |
|
| Owner Name 2: | 1/4 section #: |
2715 |
||
| Owner Name 3: | Parent Acct: |
|
||
| Billing Address: | 1914 NW 15TH ST | Tax District: |
|
|
| City, State, Zip | OKLAHOMA CITY, OK 73106-2054 | School System: |
Oklahoma City #89 |
|
|
Country: (If noted) |
Land Size: |
0.1607 Acres |
||
|
Land Value: 30,450 |
|
|||
|
Sect 29-T12N-R3W Qtr SW |
BAUMANS ADDITION
Block
002
Lot
000
|
|||
| Full Legal Description: BAUMANS ADDITION 002 000 LOTS 8 & 9 |
| Photo & Sketch (if available) | Comp Sales (ordered by relevancy) |
|
||||||||||||||||||
|
||||||||||||||||||||
| Value History (*The County Treasurer 405-713-1300 posts & collects actual tax amounts. Contact information HERE) | |||||||||||||
|---|---|---|---|---|---|---|---|---|---|---|---|---|---|
| Year | Market Value | Taxable Mkt Value | Gross Assessed | Exemption | Net Assessed | Millage | Est. Tax | Tax Savings | |||||
|
2025 |
253,500 |
212,423 |
23,365 |
0 |
23,365 |
122.90 |
$2,872 |
$555 |
|||||
|
2024 |
252,000 |
202,308 |
22,253 |
0 |
22,253 |
123.89 |
$2,757 |
$677 |
|||||
|
2023 |
219,500 |
192,675 |
21,194 |
0 |
21,194 |
122.82 |
$2,603 |
$362 |
|||||
|
2022 |
183,500 |
183,500 |
20,185 |
1,000 |
19,185 |
117.63 |
$2,257 |
$118 |
|||||
|
2021 |
190,500 |
190,500 |
20,955 |
0 |
20,955 |
117.70 |
$2,466 |
$0 |
|||||
| Property Account Status/Adjustments/Exemptions | ||
|---|---|---|
| Account # | Exemption Description | Amount |
|
R063022450 |
Homestead |
1,000 |
| Property Deed Transaction History (Recorded in the County Clerk's Office) | ||||||||||
|---|---|---|---|---|---|---|---|---|---|---|
| Date | Type | Book | Page | Price | Grantor | Grantee | ||||
|
5/2/2025 |
|
Deeds |
$240,000 |
SCHNEIDER JESSICA LYNN TRS |
GUTIERREZ DINA |
|||||
|
5/19/2022 |
|
Hmstd Off & |
$0 |
SCHNEIDER JESSICA LYNN |
SCHNEIDER JESSICA LYNN TRS |
|||||
|
9/11/2020 |
|
Deeds |
$192,500 |
MEARS KEVIN S |
SCHNEIDER JESSICA LYNN |
|||||
|
8/16/2019 |
|
Deeds |
$85,000 |
LOPEZ ANGEL |
MEARS KEVIN S |
|||||
|
4/27/2018 |
|
Hmstd Off & |
$0 |
AGUILA TANO |
LOPEZ ANGEL |
|||||
| Last Mailed Notice of Value (N.O.V.) Information/History | ||||||||
|---|---|---|---|---|---|---|---|---|
| Year | Date | Market Value | Taxable Market Value | Gross Assessed | Exemption | Net Assessed | ||
|
2026 |
02/23/2026 |
250,500 |
250,500 |
27,555 |
1,000 |
26,555 |
||
|
2025 |
02/14/2025 |
253,500 |
212,423 |
23,365 |
0 |
23,365 |
||
|
2024 |
02/13/2024 |
252,000 |
202,308 |
22,253 |
0 |
22,253 |
||
|
2023 |
02/14/2023 |
219,500 |
192,675 |
21,194 |
0 |
21,194 |
||
|
2021 |
03/19/2021 |
190,500 |
190,500 |
20,955 |
0 |
20,955 |
||
| Property Building Permit History | ||||||
|---|---|---|---|---|---|---|
| Issued | Permit # | Provided by | Bldg # | Description | Est Construction Cost | Status |
|
7/2/2021 |
POOL-2021-00162 |
|
1 |
Swimming Pool |
|
Inactive |
| Click button on building number to access detailed information: | ||||||
|---|---|---|---|---|---|---|
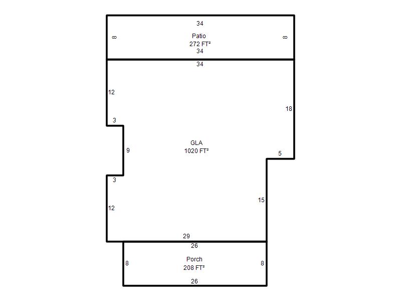
| Bldg # | Vacant/Improved Land | Bldg Description | Year Built | SqFt | # Stories | |
|
1 |
Improved |
Ranch 1 Story |
1921 |
1,020 |
1 Stories |
|