|
|
|
| Larry Stein Oklahoma County Assessor (405) 713-1200 - Public Access System |
|
|
|
|
|
|
| Real Property Display - Screen Produced 3/16/2026 11:00:22 AM | ||||
|---|---|---|---|---|
| Account: R063742790 | Type: Residential | Location: |
2351 NW 20TH ST |
|
| Building Name/Occupant: |
|
OKLAHOMA CITY |
||
| Owner Name 1: | 230KC51 LLC |
Parcel PIN#: |
2717-06-374-2790 |
|
| Owner Name 2: | 1/4 section #: |
2717 |
||
| Owner Name 3: | Parent Acct: |
|
||
| Billing Address: | 2708 NW 18TH ST | Tax District: |
|
|
| City, State, Zip | OKLAHOMA CITY, OK 73107 | School System: |
Oklahoma City #89 |
|
|
Country: (If noted) |
Land Size: |
0.0918 Acres |
||
|
Land Value: 17,400 |
|
|||
|
Sect 30-T12N-R3W Qtr NE |
AURORA ADDITION
Block
008
Lot
000
|
|||
| Full Legal Description: AURORA ADDITION 008 000 E40FT OF W90FT OF S100FT OF SW4 |
| Photo & Sketch (if available) | Comp Sales (ordered by relevancy) |
|
||||||||||||||||||
|
||||||||||||||||||||
| Value History (*The County Treasurer 405-713-1300 posts & collects actual tax amounts. Contact information HERE) | |||||||||||||
|---|---|---|---|---|---|---|---|---|---|---|---|---|---|
| Year | Market Value | Taxable Mkt Value | Gross Assessed | Exemption | Net Assessed | Millage | Est. Tax | Tax Savings | |||||
|
2025 |
140,500 |
140,500 |
15,455 |
0 |
15,455 |
122.90 |
$1,899 |
$0 |
|||||
|
2024 |
136,000 |
136,000 |
14,960 |
0 |
14,960 |
123.89 |
$1,853 |
$0 |
|||||
|
2023 |
134,500 |
134,500 |
14,795 |
0 |
14,795 |
122.82 |
$1,817 |
$0 |
|||||
|
2022 |
104,500 |
82,520 |
9,076 |
0 |
9,076 |
117.63 |
$1,068 |
$284 |
|||||
|
2021 |
94,500 |
78,591 |
8,644 |
0 |
8,644 |
117.70 |
$1,018 |
$206 |
|||||
| Property Account Status/Adjustments/Exemptions | ||
|---|---|---|
| Account # | Exemption Description | Amount |
|
R063742790 |
5% Capped Account |
0 |
| Property Deed Transaction History (Recorded in the County Clerk's Office) | ||||||||||
|---|---|---|---|---|---|---|---|---|---|---|
| Date | Type | Book | Page | Price | Grantor | Grantee | ||||
|
6/23/2025 |
|
Hmstd Off & |
$0 |
BLEDSOE JENNIFER LAYNE |
230KC51 LLC |
|||||
|
3/17/2022 |
|
Deeds |
$125,000 |
WILSON WILLIAM DWAYNE |
BLEDSOE JENNIFER LAYNE |
|||||
|
3/24/2003 |
|
Deeds |
$30,000 |
FEDERAL NATIONAL MORTGAGE ASSOCIATION C/O FIDELITY NATIONAL |
WILSON WILLIAM DWAYNE |
|||||
|
11/13/2002 |
|
Hmstd Off & |
$0 |
SOLOMAN ANTHONY L |
FEDERAL NATIONAL MORTGAGE ASSOCIATION C/O FIDELITY NATIONAL |
|||||
|
1/26/2001 |
|
Deeds |
$68,999 |
COOPER RONALD R |
SOLOMAN ANTHONY L |
|||||
| Last Mailed Notice of Value (N.O.V.) Information/History | ||||||||
|---|---|---|---|---|---|---|---|---|
| Year | Date | Market Value | Taxable Market Value | Gross Assessed | Exemption | Net Assessed | ||
|
2026 |
02/23/2026 |
143,500 |
143,500 |
15,785 |
0 |
15,785 |
||
|
2025 |
02/14/2025 |
140,500 |
140,500 |
15,455 |
0 |
15,455 |
||
|
2024 |
02/13/2024 |
136,000 |
136,000 |
14,960 |
0 |
14,960 |
||
|
2023 |
02/14/2023 |
134,500 |
134,500 |
14,795 |
0 |
14,795 |
||
|
2022 |
03/15/2022 |
104,500 |
82,520 |
9,076 |
0 |
9,076 |
||
| Property Building Permit History | |||||||||||
|---|---|---|---|---|---|---|---|---|---|---|---|
| Issued | Permit # | Provided by | Bldg # | Description | Est Construction Cost | Status | |||||
| No Building Permit records returned. | |||||||||||
| Click button on building number to access detailed information: | ||||||
|---|---|---|---|---|---|---|
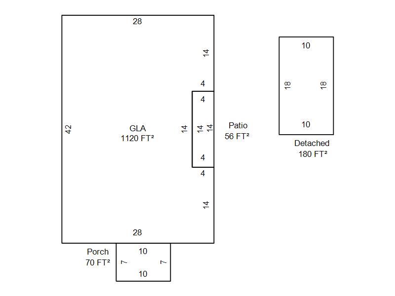
| Bldg # | Vacant/Improved Land | Bldg Description | Year Built | SqFt | # Stories | |
|
1 |
Improved |
Ranch 1 Story |
1927 |
1,120 |
1 Stories |
|