|
|
|
| Larry Stein Oklahoma County Assessor (405) 713-1200 - Public Access System |
|
|
|
|
|
|
| Real Property Display - Screen Produced 3/16/2026 5:32:33 PM | ||||
|---|---|---|---|---|
| Account: R063742940 | Type: Residential | Location: |
2400 NW 21ST ST |
|
| Building Name/Occupant: |
|
OKLAHOMA CITY |
||
| Owner Name 1: | OLIVER MANAGEMENT INVESTMENTS LLC |
Parcel PIN#: |
2717-06-374-2940 |
|
| Owner Name 2: | 1/4 section #: |
2717 |
||
| Owner Name 3: | Parent Acct: |
|
||
| Billing Address: | 2400 NW 21ST ST | Tax District: |
|
|
| City, State, Zip | OKLAHOMA CITY, OK 73107-3222 | School System: |
Oklahoma City #89 |
|
|
Country: (If noted) |
Land Size: |
0.1607 Acres |
||
|
Land Value: 30,450 |
|
|||
|
Sect 30-T12N-R3W Qtr NE |
AURORA ADDITION
Block
009
Lot
000
|
|||
| Full Legal Description: AURORA ADDITION 009 000 LOTS 1 & 2 |
| Photo & Sketch (if available) | Comp Sales (ordered by relevancy) |
|
||||||||||||||||||
|
||||||||||||||||||||
| Value History (*The County Treasurer 405-713-1300 posts & collects actual tax amounts. Contact information HERE) | |||||||||||||
|---|---|---|---|---|---|---|---|---|---|---|---|---|---|
| Year | Market Value | Taxable Mkt Value | Gross Assessed | Exemption | Net Assessed | Millage | Est. Tax | Tax Savings | |||||
|
2025 |
287,000 |
287,000 |
31,570 |
0 |
31,570 |
122.90 |
$3,880 |
$0 |
|||||
|
2024 |
282,500 |
133,337 |
14,666 |
0 |
14,666 |
123.89 |
$1,817 |
$2,033 |
|||||
|
2023 |
255,000 |
126,988 |
13,968 |
0 |
13,968 |
122.82 |
$1,716 |
$1,729 |
|||||
|
2022 |
198,500 |
120,941 |
13,302 |
0 |
13,302 |
117.63 |
$1,565 |
$1,004 |
|||||
|
2021 |
172,000 |
115,182 |
12,669 |
0 |
12,669 |
117.70 |
$1,491 |
$736 |
|||||
| Property Account Status/Adjustments/Exemptions | ||
|---|---|---|
| Account # | Exemption Description | Amount |
|
R063742940 |
5% Capped Account |
0 |
| Property Deed Transaction History (Recorded in the County Clerk's Office) | ||||||||||
|---|---|---|---|---|---|---|---|---|---|---|
| Date | Type | Book | Page | Price | Grantor | Grantee | ||||
|
9/11/2024 |
|
Deeds |
$236,000 |
LUCKY D NGUYEN LLC |
OLIVER MANAGEMENT INVESTMENTS LLC |
|||||
|
5/31/2024 |
|
Deeds |
$220,000 |
EVERYTHINGINMODERATION LLC |
LUCKY D NGUYEN LLC |
|||||
|
5/31/2024 |
|
Hmstd Off & |
$0 |
EVERYTHINGINMODERATION LLC |
LUCKY D NGUYEN LLC |
|||||
|
5/3/2024 |
|
Hmstd Off & |
$0 |
COOPER MATTHEW D |
EVERYTHINGINMODERATION LLC |
|||||
|
8/29/2007 |
|
Deeds |
$0 |
COOPER MATTHEW D |
EVERYTHINGINMODERATION LLC |
|||||
| Last Mailed Notice of Value (N.O.V.) Information/History | ||||||||
|---|---|---|---|---|---|---|---|---|
| Year | Date | Market Value | Taxable Market Value | Gross Assessed | Exemption | Net Assessed | ||
|
2025 |
02/14/2025 |
287,000 |
287,000 |
31,570 |
0 |
31,570 |
||
|
2024 |
02/13/2024 |
282,500 |
133,337 |
14,666 |
0 |
14,666 |
||
|
2023 |
02/14/2023 |
255,000 |
126,988 |
13,968 |
0 |
13,968 |
||
|
2022 |
03/15/2022 |
198,500 |
120,941 |
13,302 |
0 |
13,302 |
||
|
2021 |
03/19/2021 |
172,000 |
115,182 |
12,670 |
0 |
12,670 |
||
| Property Building Permit History | |||||||||||
|---|---|---|---|---|---|---|---|---|---|---|---|
| Issued | Permit # | Provided by | Bldg # | Description | Est Construction Cost | Status | |||||
| No Building Permit records returned. | |||||||||||
| Click button on building number to access detailed information: | ||||||
|---|---|---|---|---|---|---|
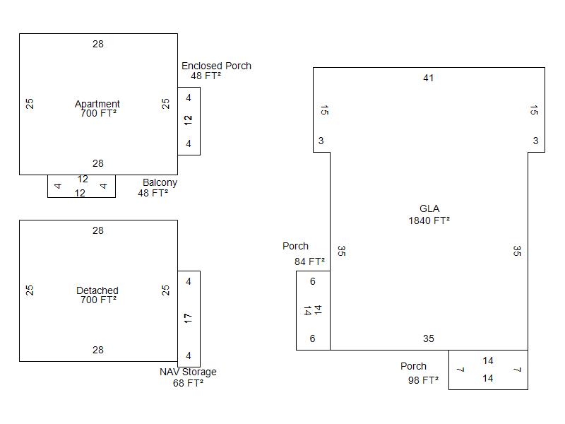
| Bldg # | Vacant/Improved Land | Bldg Description | Year Built | SqFt | # Stories | |
|
1 |
Improved |
Duplex One Story |
1927 |
1,840 |
1 Stories |
|