|
|
|
| Larry Stein Oklahoma County Assessor (405) 713-1200 - Public Access System |
|
|
|
|
|
|
| Real Property Display - Screen Produced 3/16/2026 3:44:59 PM | ||||
|---|---|---|---|---|
| Account: R063344220 | Type: Residential | Location: |
2131 NW 12TH ST |
|
| Building Name/Occupant: |
|
OKLAHOMA CITY |
||
| Owner Name 1: | OSBORNE ANNDREA |
Parcel PIN#: |
2718-06-334-4220 |
|
| Owner Name 2: | 1/4 section #: |
2718 |
||
| Owner Name 3: | Parent Acct: |
|
||
| Billing Address: | 2919 NW 29TH ST | Tax District: |
|
|
| City, State, Zip | OKLAHOMA CITY, OK 73107-2020 | School System: |
Oklahoma City #89 |
|
|
Country: (If noted) |
Land Size: |
0.1607 Acres |
||
|
Land Value: 31,500 |
|
|||
|
Sect 30-T12N-R3W Qtr SE |
YOUNGS ENGLEWOOD ADD
Block
019
Lot
000
|
|||
| Full Legal Description: YOUNGS ENGLEWOOD ADD 019 000 LOTS 36 & 37 |
| Photo & Sketch (if available) | Comp Sales (ordered by relevancy) |
|
||||||||||||||||||
|
||||||||||||||||||||
| Value History (*The County Treasurer 405-713-1300 posts & collects actual tax amounts. Contact information HERE) | |||||||||||||
|---|---|---|---|---|---|---|---|---|---|---|---|---|---|
| Year | Market Value | Taxable Mkt Value | Gross Assessed | Exemption | Net Assessed | Millage | Est. Tax | Tax Savings | |||||
|
2025 |
269,000 |
269,000 |
29,590 |
0 |
29,590 |
122.90 |
$3,637 |
$0 |
|||||
|
2024 |
268,000 |
228,768 |
25,164 |
0 |
25,164 |
123.89 |
$3,118 |
$535 |
|||||
|
2023 |
253,500 |
217,875 |
23,966 |
0 |
23,966 |
122.82 |
$2,944 |
$481 |
|||||
|
2022 |
207,500 |
207,500 |
22,825 |
0 |
22,825 |
117.63 |
$2,685 |
$0 |
|||||
|
2021 |
137,000 |
128,100 |
14,091 |
0 |
14,091 |
117.70 |
$1,659 |
$115 |
|||||
| Property Account Status/Adjustments/Exemptions | ||
|---|---|---|
| Account # | Exemption Description | Amount |
|
R063344220 |
5% Capped Account |
0 |
| Property Deed Transaction History (Recorded in the County Clerk's Office) | ||||||||||
|---|---|---|---|---|---|---|---|---|---|---|
| Date | Type | Book | Page | Price | Grantor | Grantee | ||||
|
4/9/2024 |
|
Deeds |
$265,000 |
2131 NW 12TH LLC |
OSBORNE ANNDREA |
|||||
|
11/3/2021 |
|
Deeds |
$250,000 |
ST RENTALS LLC |
2131 NW 12TH LLC |
|||||
|
3/19/2021 |
|
Deeds |
$207,000 |
KAIROS REAL ESTATE LLC |
ST RENTALS LLC |
|||||
|
8/30/2019 |
|
Mult Parcel |
$374,000 |
12THSTREETPROJECT LLC |
KAIROS REAL ESTATE LLC |
|||||
|
11/14/2013 |
|
Hmstd Off & |
$0 |
BURIAN DENNIS & DEBORAH J TRS |
12TH STREETPROJECT LLC |
|||||
| Last Mailed Notice of Value (N.O.V.) Information/History | ||||||||
|---|---|---|---|---|---|---|---|---|
| Year | Date | Market Value | Taxable Market Value | Gross Assessed | Exemption | Net Assessed | ||
|
2025 |
02/14/2025 |
269,000 |
269,000 |
29,590 |
0 |
29,590 |
||
|
2024 |
02/13/2024 |
268,000 |
228,768 |
25,164 |
0 |
25,164 |
||
|
2023 |
02/14/2023 |
253,500 |
217,875 |
23,966 |
0 |
23,966 |
||
|
2022 |
03/15/2022 |
207,500 |
207,500 |
22,825 |
0 |
22,825 |
||
|
2022 |
04/05/2022 |
207,500 |
207,500 |
22,825 |
0 |
22,825 |
||
| Property Building Permit History | |||||||||||
|---|---|---|---|---|---|---|---|---|---|---|---|
| Issued | Permit # | Provided by | Bldg # | Description | Est Construction Cost | Status | |||||
| No Building Permit records returned. | |||||||||||
| Click button on building number to access detailed information: | ||||||
|---|---|---|---|---|---|---|
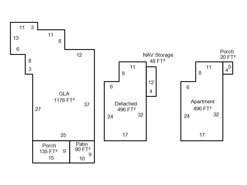
| Bldg # | Vacant/Improved Land | Bldg Description | Year Built | SqFt | # Stories | |
|
1 |
Improved |
Ranch 1 Story |
1937 |
1,176 |
1 Stories |
|