|
|
|
| Larry Stein Oklahoma County Assessor (405) 713-1200 - Public Access System |
|
|
|
|
|
|
| Real Property Display - Screen Produced 3/16/2026 3:44:59 PM | ||||
|---|---|---|---|---|
| Account: R063585750 | Type: Residential | Location: |
2518 NW 20TH ST |
|
| Building Name/Occupant: |
|
OKLAHOMA CITY |
||
| Owner Name 1: | GULSHAN LLC |
Parcel PIN#: |
2720-06-358-5750 |
|
| Owner Name 2: | 1/4 section #: |
2720 |
||
| Owner Name 3: | Parent Acct: |
|
||
| Billing Address: | 3809 DULANEY PL | Tax District: |
|
|
| City, State, Zip | QUINCY, IL 62305-0821 | School System: |
Oklahoma City #89 |
|
|
Country: (If noted) |
Land Size: |
0.1607 Acres |
||
|
Land Value: 32,900 |
|
|||
|
Sect 30-T12N-R3W Qtr NW |
CRESTWOOD ADDITION
Block
011
Lot
000
|
|||
| Full Legal Description: CRESTWOOD ADDITION 011 000 LOTS 21 & 22 |
| Photo & Sketch (if available) | Comp Sales (ordered by relevancy) |
|
||||||||||||||||||
|
||||||||||||||||||||
| Value History (*The County Treasurer 405-713-1300 posts & collects actual tax amounts. Contact information HERE) | |||||||||||||
|---|---|---|---|---|---|---|---|---|---|---|---|---|---|
| Year | Market Value | Taxable Mkt Value | Gross Assessed | Exemption | Net Assessed | Millage | Est. Tax | Tax Savings | |||||
|
2025 |
191,500 |
191,500 |
21,065 |
0 |
21,065 |
122.90 |
$2,589 |
$0 |
|||||
|
2024 |
185,000 |
185,000 |
20,350 |
0 |
20,350 |
123.89 |
$2,521 |
$0 |
|||||
|
2023 |
241,000 |
241,000 |
26,510 |
0 |
26,510 |
122.82 |
$3,256 |
$0 |
|||||
|
2022 |
136,000 |
86,337 |
9,496 |
0 |
9,496 |
117.63 |
$1,117 |
$643 |
|||||
|
2021 |
114,000 |
82,226 |
9,044 |
0 |
9,044 |
117.70 |
$1,065 |
$411 |
|||||
| Property Account Status/Adjustments/Exemptions | ||
|---|---|---|
| Account # | Exemption Description | Amount |
|
R063585750 |
5% Capped Account |
0 |
| Property Deed Transaction History (Recorded in the County Clerk's Office) | ||||||||||
|---|---|---|---|---|---|---|---|---|---|---|
| Date | Type | Book | Page | Price | Grantor | Grantee | ||||
|
5/16/2025 |
|
Hmstd Off & |
$0 |
ADIL UMAMA SALEEM |
GULSHAN LLC |
|||||
|
8/28/2024 |
|
Deeds |
$274,000 |
GRATER PEGGY |
ADIL UMAMA SALEEM |
|||||
|
10/31/2022 |
|
Deeds |
$240,000 |
PRUITT RITA J REV LIV TRUST |
GRATER PEGGY |
|||||
|
5/23/2019 |
|
Deeds |
$0 |
PRUITT KENNETH R REV TRUST |
PRUITT RITA J REV LIV TRUST |
|||||
|
5/9/2019 |
|
Deeds |
$0 |
PRUITT KENNETH R |
PRUITT RITA J REV LIV TRUST |
|||||
| Last Mailed Notice of Value (N.O.V.) Information/History | ||||||||
|---|---|---|---|---|---|---|---|---|
| Year | Date | Market Value | Taxable Market Value | Gross Assessed | Exemption | Net Assessed | ||
|
2026 |
02/23/2026 |
195,500 |
195,500 |
21,505 |
0 |
21,505 |
||
|
2025 |
02/14/2025 |
191,500 |
191,500 |
21,065 |
0 |
21,065 |
||
|
2023 |
02/14/2023 |
241,000 |
241,000 |
26,510 |
0 |
26,510 |
||
|
2022 |
03/15/2022 |
136,000 |
86,337 |
9,496 |
0 |
9,496 |
||
|
2021 |
03/19/2021 |
114,000 |
82,226 |
9,044 |
0 |
9,044 |
||
| Property Building Permit History | |||||||||||
|---|---|---|---|---|---|---|---|---|---|---|---|
| Issued | Permit # | Provided by | Bldg # | Description | Est Construction Cost | Status | |||||
| No Building Permit records returned. | |||||||||||
| Click button on building number to access detailed information: | ||||||
|---|---|---|---|---|---|---|
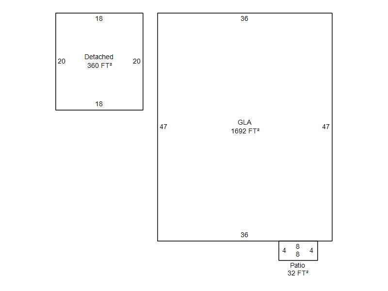
| Bldg # | Vacant/Improved Land | Bldg Description | Year Built | SqFt | # Stories | |
|
1 |
Improved |
Duplex One Story |
1928 |
1,692 |
1 Stories |
|