|
|
|
| Larry Stein Oklahoma County Assessor (405) 713-1200 - Public Access System |
|
|
|
|
|
|
| Real Property Display - Screen Produced 2/27/2026 1:42:39 AM | ||||
|---|---|---|---|---|
| Account: R012881650 | Type: Residential | Location: |
616 NW 6TH ST |
|
| Building Name/Occupant: |
|
OKLAHOMA CITY |
||
| Owner Name 1: | PENNINGTON FAMILY INVESTMENTS LLC |
Parcel PIN#: |
2732-01-288-1650 |
|
| Owner Name 2: | SERIES C | 1/4 section #: |
2732 |
|
| Owner Name 3: | Parent Acct: |
|
||
| Billing Address: | 2901 ALLSPICE RUN | Tax District: |
|
|
| City, State, Zip | NORMAN, OK 73026-4504 | School System: |
Oklahoma City #89 |
|
|
Country: (If noted) |
Land Size: |
0.0804 Acres |
||
|
Land Value: 133,000 |
|
|||
|
Sect 33-T12N-R3W Qtr NW |
BRUSHAS 2ND ADDITION
Block
011
Lot
023
|
|||
| Full Legal Description: BRUSHAS 2ND ADDITION 011 023 |
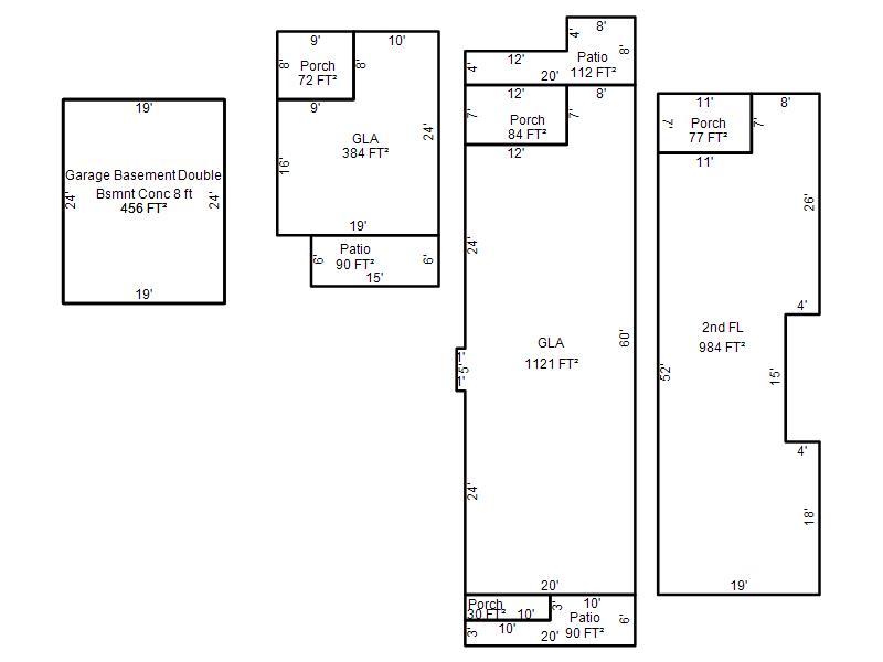
| Photo & Sketch (if available) | Comp Sales (ordered by relevancy) |
|
||||||||||||||||||
|
||||||||||||||||||||
| Value History (*The County Treasurer 405-713-1300 posts & collects actual tax amounts. Contact information HERE) | |||||||||||||
|---|---|---|---|---|---|---|---|---|---|---|---|---|---|
| Year | Market Value | Taxable Mkt Value | Gross Assessed | Exemption | Net Assessed | Millage | Est. Tax | Tax Savings | |||||
|
2025 |
944,500 |
829,631 |
91,258 |
0 |
91,258 |
122.90 |
$11,216 |
$1,553 |
|||||
|
2024 |
930,000 |
790,125 |
86,913 |
0 |
86,913 |
123.89 |
$10,768 |
$1,906 |
|||||
|
2023 |
752,500 |
752,500 |
82,775 |
0 |
82,775 |
122.82 |
$10,166 |
$0 |
|||||
|
2022 |
877,000 |
655,200 |
72,072 |
0 |
72,072 |
117.63 |
$8,478 |
$2,870 |
|||||
|
2021 |
624,000 |
624,000 |
68,640 |
0 |
68,640 |
117.70 |
$8,079 |
$0 |
|||||
| Property Account Status/Adjustments/Exemptions | ||
|---|---|---|
| Account # | Exemption Description | Amount |
|
R012881650 |
5% Capped Account |
0 |
| Property Deed Transaction History (Recorded in the County Clerk's Office) | ||||||||||
|---|---|---|---|---|---|---|---|---|---|---|
| Date | Type | Book | Page | Price | Grantor | Grantee | ||||
|
5/31/2023 |
|
Hmstd Off & |
$0 |
PENNINGTON FAMILY INVESTMENTS LLC |
PENNINGTON FAMILY INVESTMENTS LLC |
|||||
|
7/18/2022 |
|
Deeds |
$750,000 |
2A HOLDINGS LLC |
PENNINGTON FAMILY INVESTMENTS LLC |
|||||
|
5/17/2021 |
|
Hmstd Off & |
$ |
2A HOLDINGS LLC |
2A HOLDINGS LLC |
|||||
|
10/1/2020 |
|
Deeds |
$600,000 |
ZEECK REALTY MARKETING LLC |
2A HOLDINGS LLC |
|||||
|
10/2/2013 |
|
Deeds |
$115,000 |
THARASENA MIKE TRS THARASENA FAMILY TRUST |
ZEECK REALTY MARKETING LLC |
|||||
| Last Mailed Notice of Value (N.O.V.) Information/History | ||||||||
|---|---|---|---|---|---|---|---|---|
| Year | Date | Market Value | Taxable Market Value | Gross Assessed | Exemption | Net Assessed | ||
|
2026 |
02/23/2026 |
1,042,000 |
871,112 |
95,821 |
0 |
95,821 |
||
|
2025 |
02/14/2025 |
944,500 |
829,631 |
91,258 |
0 |
91,258 |
||
|
2024 |
02/13/2024 |
930,000 |
790,125 |
86,913 |
0 |
86,913 |
||
|
2023 |
02/14/2023 |
752,500 |
752,500 |
82,775 |
0 |
82,775 |
||
|
2022 |
03/15/2022 |
877,000 |
655,200 |
72,072 |
0 |
72,072 |
||
| Property Building Permit History | ||||||
|---|---|---|---|---|---|---|
| Issued | Permit # | Provided by | Bldg # | Description | Est Construction Cost | Status |
|
2/12/2018 |
|
|
|
Storage Buil |
100,000 |
Inactive |
|
1/25/2018 |
|
|
|
Demolish |
|
Inactive |
|
10/24/2013 |
10455661 |
OKLAHOMA CITY |
|
Demolish |
0 |
Inactive |
| Click button on building number to access detailed information: | ||||||
|---|---|---|---|---|---|---|
| Bldg # | Vacant/Improved Land | Bldg Description | Year Built | SqFt | # Stories | |
|
1 |
Improved |
2 Story |
2018 |
2,489 |
2 Stories |
|