|
|
|
| Larry Stein Oklahoma County Assessor (405) 713-1200 - Public Access System |
|
|
|
|
|
|
| Real Property Display - Screen Produced 4/5/2026 1:50:33 AM | ||||
|---|---|---|---|---|
| Account: R013203008 | Type: Residential | Location: |
819 NW 8TH ST |
|
| Building Name/Occupant: |
|
OKLAHOMA CITY |
||
| Owner Name 1: | TANGIRALA MARUTI PRASAD |
Parcel PIN#: |
2732-01-320-3008 |
|
| Owner Name 2: | YEO HUI HWA VERONICA | 1/4 section #: |
2732 |
|
| Owner Name 3: | Parent Acct: |
|
||
| Billing Address: | 410 GREENWAY CT | Tax District: |
|
|
| City, State, Zip | COPPELL, TX 75019-5656 | School System: |
Oklahoma City #89 |
|
|
Country: (If noted) |
Land Size: |
0.0705 Acres |
||
|
Land Value: 104,580 |
|
|||
|
Sect 33-T12N-R3W Qtr NW |
NORTHWEST TO OKLA CY
Block
006
Lot
000
|
|||
| Full Legal Description: NORTHWEST TO OKLA CY BLK 006 LOT 000 PT OF LOTS 9 & 10 BEG 154.75FT ELY FROM SW/C LT 16 TH N140FT ELY21.92FT S140FT WLY21.92FT TO BEG |
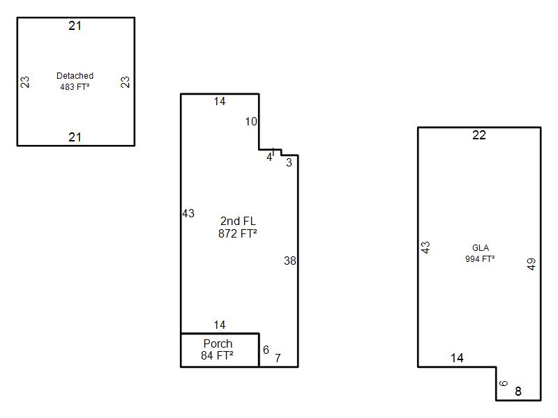
| Photo & Sketch (if available) | Comp Sales (ordered by relevancy) |
|
||||||||||||||||||
|
||||||||||||||||||||
| Value History (*The County Treasurer 405-713-1300 posts & collects actual tax amounts. Contact information HERE) | |||||||||||||
|---|---|---|---|---|---|---|---|---|---|---|---|---|---|
| Year | Market Value | Taxable Mkt Value | Gross Assessed | Exemption | Net Assessed | Millage | Est. Tax | Tax Savings | |||||
|
2026 |
656,000 |
656,000 |
72,160 |
0 |
72,160 |
122.90 |
$8,868 |
$0 |
|||||
|
2025 |
395,875 |
395,875 |
43,546 |
0 |
43,546 |
122.90 |
$5,352 |
$0 |
|||||
|
2024 |
104,580 |
104,580 |
11,503 |
0 |
11,503 |
123.89 |
$1,425 |
$0 |
|||||
|
2023 |
104,580 |
104,580 |
11,503 |
0 |
11,503 |
122.82 |
$1,413 |
$0 |
|||||
|
2022 |
104,580 |
104,580 |
11,503 |
0 |
11,503 |
117.63 |
$1,353 |
$0 |
|||||
| Property Account Status/Adjustments/Exemptions | ||||||
|---|---|---|---|---|---|---|
| Account # | Exemption Description | Amount | ||||
| No adjustment/exemption records returned. | ||||||
| Property Deed Transaction History (Recorded in the County Clerk's Office) | ||||||||||
|---|---|---|---|---|---|---|---|---|---|---|
| Date | Type | Book | Page | Price | Grantor | Grantee | ||||
|
4/21/2025 |
|
Deeds |
$640,000 |
LUX DEVELOPMENT LLC |
TANGIRALA MARUTI PRASAD |
|||||
|
1/7/2021 |
|
Hmstd Off & |
$0 |
HOLSEY ROBERT |
LUX DEVELOPMENT LLC |
|||||
|
10/26/2020 |
|
Deeds |
$0 |
PARALLEL THIRTY FIVE LLC |
PARALLEL THIRTY FIVE LLC |
|||||
|
10/26/2020 |
|
Mult Parcel |
$965,500 |
PARALLEL THIRTY FIVE LLC |
HOLSEY ROBERT |
|||||
|
11/20/2017 |
|
Mult Parcel |
$1,750,000 |
CORSAIR ESTATE LLC |
PARALLEL THIRTY FIVE LLC |
|||||
| Last Mailed Notice of Value (N.O.V.) Information/History | ||||||
|---|---|---|---|---|---|---|
| Year | Date | Market Value | Taxable Market Value | Gross Assessed | Exemption | Net Assessed |
|
2026 |
02/23/2026 |
656,000 |
656,000 |
72,160 |
0 |
72,160 |
|
2025 |
03/28/2025 |
395,875 |
395,875 |
43,546 |
0 |
43,546 |
|
2018 |
04/16/2018 |
195,000 |
195,000 |
21,450 |
0 |
21,450 |
|
2017 |
03/17/2017 |
197,000 |
152,774 |
16,804 |
|
|
|
2016 |
03/28/2016 |
145,500 |
145,500 |
16,004 |
0 |
16,004 |
| Property Building Permit History | ||||||
|---|---|---|---|---|---|---|
| Issued | Permit # | Provided by | Bldg # | Description | Est Construction Cost | Status |
|
6/28/2022 |
BLDC2022-03438 |
|
1 |
Garage |
|
Inactive |
|
1/4/2022 |
|
|
1 |
Main Dwellin |
|
Inactive |
|
7/3/2019 |
BLDD2019-00979 |
|
|
Demolish |
3,000 |
Inactive |
| Click button on building number to access detailed information: | ||||||
|---|---|---|---|---|---|---|
| Bldg # | Vacant/Improved Land | Bldg Description | Year Built | SqFt | # Stories | |
|
1 |
Improved |
Townhouse Multiple Story |
2022 |
1,866 |
2 Stories |
|