|
|
|
| Larry Stein Oklahoma County Assessor (405) 713-1200 - Public Access System |
|
|
|
|
|
|
| Real Property Display - Screen Produced 4/10/2026 5:42:55 AM | ||||
|---|---|---|---|---|
| Account: R024890870 | Type: Residential | Location: |
1604 NE 10TH ST |
|
| Building Name/Occupant: |
|
OKLAHOMA CITY |
||
| Owner Name 1: | CZARNESKI MITCHELL |
Parcel PIN#: |
2737-02-489-0870 |
|
| Owner Name 2: | 1/4 section #: |
2737 |
||
| Owner Name 3: | Parent Acct: |
|
||
| Billing Address: | 1604 NE 10TH ST | Tax District: |
|
|
| City, State, Zip | OKLAHOMA CITY, OK 73117 | School System: |
Oklahoma City #89 |
|
|
Country: (If noted) |
Land Size: |
0.1607 Acres |
||
|
Land Value: 18,200 |
|
|||
|
Sect 35-T12N-R3W Qtr NE |
JORDAN PLACE SUB
Block
003
Lot
000
|
|||
| Full Legal Description: JORDAN PLACE SUB 003 000 LOTS 9 & 10 |
| Photo & Sketch (if available) | Comp Sales (ordered by relevancy) |
|
||||||||||||||||||
|
||||||||||||||||||||
| Value History (*The County Treasurer 405-713-1300 posts & collects actual tax amounts. Contact information HERE) | |||||||||||||
|---|---|---|---|---|---|---|---|---|---|---|---|---|---|
| Year | Market Value | Taxable Mkt Value | Gross Assessed | Exemption | Net Assessed | Millage | Est. Tax | Tax Savings | |||||
|
2026 |
296,500 |
296,500 |
32,615 |
0 |
32,615 |
122.90 |
$4,008 |
$0 |
|||||
|
2025 |
285,000 |
285,000 |
31,350 |
0 |
31,350 |
122.90 |
$3,853 |
$0 |
|||||
|
2024 |
286,500 |
286,500 |
31,515 |
0 |
31,515 |
123.89 |
$3,904 |
$0 |
|||||
|
2023 |
281,000 |
281,000 |
30,910 |
0 |
30,910 |
122.82 |
$3,796 |
$0 |
|||||
|
2022 |
72,500 |
65,809 |
7,238 |
0 |
7,238 |
117.63 |
$852 |
$87 |
|||||
| Property Account Status/Adjustments/Exemptions | ||
|---|---|---|
| Account # | Exemption Description | Amount |
|
R024890870 |
5% Capped Account |
0 |
| Property Deed Transaction History (Recorded in the County Clerk's Office) | ||||||||||
|---|---|---|---|---|---|---|---|---|---|---|
| Date | Type | Book | Page | Price | Grantor | Grantee | ||||
|
11/10/2022 |
|
Deeds |
$280,000 |
CHRISTIAN STATIONS LLC |
CZARNESKI MITCHELL |
|||||
|
3/16/2022 |
|
Deeds |
$210,000 |
FOSTER ROBERT O |
CHRISTIAN STATIONS LLC |
|||||
|
6/13/2017 |
|
Deeds |
$53,000 |
ABUNDANT LIFE CHURCH INC |
FOSTER ROBERT O |
|||||
|
2/7/2017 |
|
Other |
$0 |
WARDWORTH GARY |
ABUNDANT LIFE CHURCH INC |
|||||
|
1/5/1995 |
|
Historical |
$0 |
OKLAHOMA COUNTY |
WARDWORTH GARY |
|||||
| Last Mailed Notice of Value (N.O.V.) Information/History | ||||||||
|---|---|---|---|---|---|---|---|---|
| Year | Date | Market Value | Taxable Market Value | Gross Assessed | Exemption | Net Assessed | ||
|
2026 |
02/23/2026 |
296,500 |
296,500 |
32,615 |
0 |
32,615 |
||
|
2024 |
02/13/2024 |
286,500 |
286,500 |
31,515 |
0 |
31,515 |
||
|
2023 |
02/14/2023 |
281,000 |
281,000 |
30,910 |
0 |
30,910 |
||
|
2022 |
03/15/2022 |
72,500 |
65,809 |
7,238 |
0 |
7,238 |
||
|
2022 |
04/05/2022 |
72,500 |
65,809 |
7,238 |
0 |
7,238 |
||
| Property Building Permit History | ||||||
|---|---|---|---|---|---|---|
| Issued | Permit # | Provided by | Bldg # | Description | Est Construction Cost | Status |
|
12/23/2015 |
10479200 |
OKLAHOMA CITY |
1 |
Remodeled |
2,000 |
Inactive |
| Click button on building number to access detailed information: | ||||||
|---|---|---|---|---|---|---|
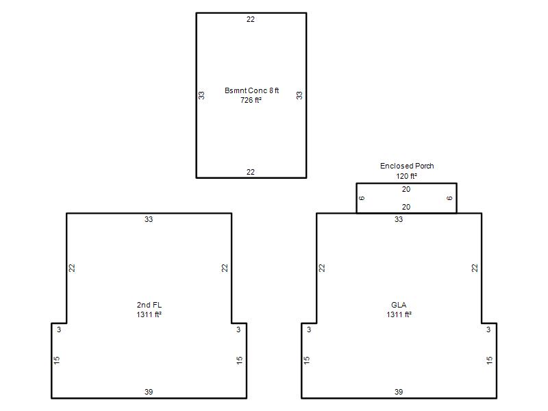
| Bldg # | Vacant/Improved Land | Bldg Description | Year Built | SqFt | # Stories | |
|
1 |
Improved |
Duplex Two Story |
1920 |
2,622 |
2 Stories |
|