|
|
|
| Larry Stein Oklahoma County Assessor (405) 713-1200 - Public Access System |
|
|
|
|
|
|
| Real Property Display - Screen Produced 4/4/2026 5:16:50 PM | ||||
|---|---|---|---|---|
| Account: R112442300 | Type: Residential | Location: |
3032 SOMERSET PL |
|
| Building Name/Occupant: |
|
OKLAHOMA CITY |
||
| Owner Name 1: | KLEPPER HOPE CAROLINE |
Parcel PIN#: |
2801-11-244-2300 |
|
| Owner Name 2: | 1/4 section #: |
2801 |
||
| Owner Name 3: | Parent Acct: |
|
||
| Billing Address: | 3032 SOMERSET PL | Tax District: |
|
|
| City, State, Zip | OKLAHOMA CITY, OK 73116 | School System: |
Oklahoma City #89 |
|
|
Country: (If noted) |
UNITED STATES |
Land Size: |
0.2024 Acres |
|
|
Land Value: 37,027 |
|
|||
|
Sect 1-T12N-R4W Qtr NE |
WILSHIRE BOULEVARD
Block
004
Lot
018
|
|||
| Full Legal Description: WILSHIRE BOULEVARD 004 018 |
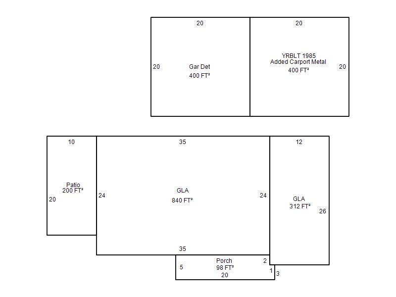
| Photo & Sketch (if available) | Comp Sales (ordered by relevancy) |
|
||||||||||||||||||
|
||||||||||||||||||||
| Value History (*The County Treasurer 405-713-1300 posts & collects actual tax amounts. Contact information HERE) | |||||||||||||
|---|---|---|---|---|---|---|---|---|---|---|---|---|---|
| Year | Market Value | Taxable Mkt Value | Gross Assessed | Exemption | Net Assessed | Millage | Est. Tax | Tax Savings | |||||
|
2026 |
238,000 |
238,000 |
26,180 |
1,000 |
25,180 |
122.90 |
$3,095 |
$123 |
|||||
|
2025 |
241,500 |
185,707 |
20,426 |
1,000 |
19,426 |
122.90 |
$2,388 |
$877 |
|||||
|
2024 |
241,500 |
180,299 |
19,832 |
1,000 |
18,832 |
123.89 |
$2,333 |
$958 |
|||||
|
2023 |
224,500 |
175,048 |
19,254 |
1,000 |
18,254 |
122.82 |
$2,242 |
$791 |
|||||
|
2022 |
197,000 |
169,950 |
18,694 |
1,000 |
17,694 |
117.63 |
$2,081 |
$468 |
|||||
| Property Account Status/Adjustments/Exemptions | ||
|---|---|---|
| Account # | Exemption Description | Amount |
|
R112442300 |
Homestead |
1,000 |
| Property Deed Transaction History (Recorded in the County Clerk's Office) | |||||||
|---|---|---|---|---|---|---|---|
| Date | Type | Book | Page | Price | Grantor | Grantee | |
|
11/4/2025 |
|
Deeds |
$217,000 |
DICKENS TAWNA M |
KLEPPER HOPE CAROLINE |
||
|
12/28/2020 |
|
Deeds |
$161,500 |
JAM REAL ESTATE LLC |
DICKENS TAWNA M |
||
|
8/18/2020 |
|
Deeds |
$60,000 |
HOOD DONALD L & LOIS C TRS |
JAM REAL ESTATE LLC |
||
|
11/21/1996 |
|
Historical |
$0 |
HOOD DONALD L & LOIS |
HOOD DONALD L & LOIS C TRS |
||
|
11/11/1911 |
|
Historical |
$0 |
|
HOOD DONALD L & LOIS |
||
| Last Mailed Notice of Value (N.O.V.) Information/History | ||||||||
|---|---|---|---|---|---|---|---|---|
| Year | Date | Market Value | Taxable Market Value | Gross Assessed | Exemption | Net Assessed | ||
|
2026 |
02/23/2026 |
238,000 |
238,000 |
26,180 |
1,000 |
25,180 |
||
|
2025 |
02/14/2025 |
241,500 |
185,707 |
20,426 |
1,000 |
19,426 |
||
|
2024 |
02/13/2024 |
241,500 |
180,299 |
19,832 |
1,000 |
18,832 |
||
|
2023 |
02/14/2023 |
224,500 |
175,048 |
19,254 |
1,000 |
18,254 |
||
|
2022 |
03/15/2022 |
197,000 |
169,950 |
18,694 |
1,000 |
17,694 |
||
| Property Building Permit History | |||||||||||
|---|---|---|---|---|---|---|---|---|---|---|---|
| Issued | Permit # | Provided by | Bldg # | Description | Est Construction Cost | Status | |||||
| No Building Permit records returned. | |||||||||||
| Click button on building number to access detailed information: | ||||||
|---|---|---|---|---|---|---|
| Bldg # | Vacant/Improved Land | Bldg Description | Year Built | SqFt | # Stories | |
|
1 |
Improved |
Ranch 1 Story |
1948 |
1,152 |
1 Stories |
|