|
|
|
| Larry Stein Oklahoma County Assessor (405) 713-1200 - Public Access System |
|
|
|
|
|
|
| Real Property Display - Screen Produced 4/4/2026 10:48:37 PM | ||||
|---|---|---|---|---|
| Account: R112443350 | Type: Residential | Location: |
3001 NW GRAND BLVD |
|
| Building Name/Occupant: |
|
OKLAHOMA CITY |
||
| Owner Name 1: | WOODS BLAKELEY & CARSON |
Parcel PIN#: |
2801-11-244-3350 |
|
| Owner Name 2: | 1/4 section #: |
2801 |
||
| Owner Name 3: | Parent Acct: |
|
||
| Billing Address: | 3001 NW GRAND BLVD | Tax District: |
|
|
| City, State, Zip | OKLAHOMA CITY, OK 73116-3135 | School System: |
Oklahoma City #89 |
|
|
Country: (If noted) |
Land Size: |
0.1582 Acres |
||
|
Land Value: 28,951 |
|
|||
|
Sect 1-T12N-R4W Qtr NE |
WILSHIRE BOULEVARD
Block
005
Lot
024
|
|||
| Full Legal Description: WILSHIRE BOULEVARD 005 024 |
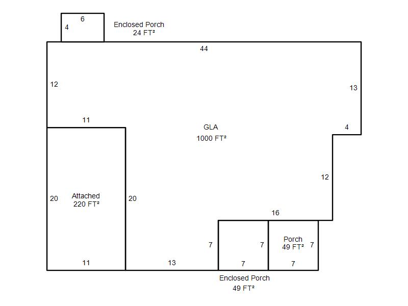
| Photo & Sketch (if available) | Comp Sales (ordered by relevancy) |
|
||||||||||||||||||
|
||||||||||||||||||||
| Value History (*The County Treasurer 405-713-1300 posts & collects actual tax amounts. Contact information HERE) | |||||||||||||
|---|---|---|---|---|---|---|---|---|---|---|---|---|---|
| Year | Market Value | Taxable Mkt Value | Gross Assessed | Exemption | Net Assessed | Millage | Est. Tax | Tax Savings | |||||
|
2026 |
152,000 |
152,000 |
16,720 |
0 |
16,720 |
122.90 |
$2,055 |
$0 |
|||||
|
2025 |
152,500 |
152,500 |
16,775 |
0 |
16,775 |
122.90 |
$2,062 |
$0 |
|||||
|
2024 |
145,500 |
89,589 |
9,854 |
0 |
9,854 |
123.89 |
$1,221 |
$762 |
|||||
|
2023 |
136,500 |
85,323 |
9,385 |
1,000 |
8,385 |
122.82 |
$1,030 |
$814 |
|||||
|
2022 |
117,000 |
82,838 |
9,111 |
1,000 |
8,111 |
117.63 |
$954 |
$560 |
|||||
| Property Account Status/Adjustments/Exemptions | ||
|---|---|---|
| Account # | Exemption Description | Amount |
|
R112443350 |
5% Capped Account |
0 |
| Property Deed Transaction History (Recorded in the County Clerk's Office) | |||||||
|---|---|---|---|---|---|---|---|
| Date | Type | Book | Page | Price | Grantor | Grantee | |
|
12/30/2025 |
|
Hmstd Off & |
$0 |
WOODS BLAKELEY |
WOODS BLAKELEY & CARSON |
||
|
6/5/2024 |
|
Deeds |
$134,000 |
PRIM CHAPPIE J |
WOODS BLAKELEY |
||
|
1/10/1994 |
|
Historical |
$37,000 |
JOHNSON FAYE C & NANCY L |
PRIM CHAPPIE J |
||
|
3/12/1993 |
|
Historical |
$0 |
MCMANUS LUCRETIA M |
JOHNSON FAYE C & NANCY L |
||
|
11/11/1911 |
|
Historical |
$0 |
|
MCMANUS LUCRETIA M |
||
| Last Mailed Notice of Value (N.O.V.) Information/History | ||||||||
|---|---|---|---|---|---|---|---|---|
| Year | Date | Market Value | Taxable Market Value | Gross Assessed | Exemption | Net Assessed | ||
|
2025 |
02/14/2025 |
152,500 |
152,500 |
16,775 |
0 |
16,775 |
||
|
2024 |
02/13/2024 |
145,500 |
89,589 |
9,854 |
0 |
9,854 |
||
|
2023 |
02/14/2023 |
136,500 |
85,323 |
9,385 |
1,000 |
8,385 |
||
|
2022 |
03/15/2022 |
117,000 |
82,838 |
9,111 |
1,000 |
8,111 |
||
|
2021 |
03/19/2021 |
96,500 |
80,426 |
8,846 |
1,000 |
7,846 |
||
| Property Building Permit History | ||||||
|---|---|---|---|---|---|---|
| Issued | Permit # | Provided by | Bldg # | Description | Est Construction Cost | Status |
|
12/31/2009 |
10392747 |
OKLAHOMA CITY |
1 |
Main Dwellin |
18,000 |
Inactive |
| Click button on building number to access detailed information: | ||||||
|---|---|---|---|---|---|---|
| Bldg # | Vacant/Improved Land | Bldg Description | Year Built | SqFt | # Stories | |
|
1 |
Improved |
Ranch 1 Story |
1948 |
1,000 |
1 Stories |
|