|
|
|
| Larry Stein Oklahoma County Assessor (405) 713-1200 - Public Access System |
|
|
|
|
|
|
| Real Property Display - Screen Produced 3/20/2026 6:42:33 AM | ||||
|---|---|---|---|---|
| Account: R142432040 | Type: Residential | Location: |
3800 NW 70TH ST |
|
| Building Name/Occupant: |
|
OKLAHOMA CITY |
||
| Owner Name 1: | COLEMAN BRIAN & ROBIN |
Parcel PIN#: |
2806-14-243-2040 |
|
| Owner Name 2: | 1/4 section #: |
2806 |
||
| Owner Name 3: | Parent Acct: |
|
||
| Billing Address: | 3800 NW 70TH ST | Tax District: |
|
|
| City, State, Zip | OKLAHOMA CITY, OK 73116 | School System: |
Putnam City #1 |
|
|
Country: (If noted) |
Land Size: |
0.2342 Acres |
||
|
Land Value: 57,120 |
|
|||
|
Sect 2-T12N-R4W Qtr SE |
EDGEWATER 5TH
Block
016
Lot
006
|
|||
| Full Legal Description: EDGEWATER 5TH 016 006 |
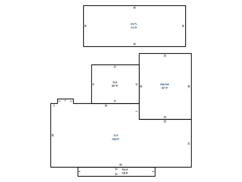
| Photo & Sketch (if available) | Comp Sales (ordered by relevancy) |
|
||||||||||||||||||
|
||||||||||||||||||||
| Value History (*The County Treasurer 405-713-1300 posts & collects actual tax amounts. Contact information HERE) | |||||||||||||
|---|---|---|---|---|---|---|---|---|---|---|---|---|---|
| Year | Market Value | Taxable Mkt Value | Gross Assessed | Exemption | Net Assessed | Millage | Est. Tax | Tax Savings | |||||
|
2025 |
357,500 |
357,500 |
39,325 |
0 |
39,325 |
123.17 |
$4,844 |
$0 |
|||||
|
2024 |
357,000 |
357,000 |
39,270 |
0 |
39,270 |
122.30 |
$4,803 |
$0 |
|||||
|
2023 |
349,500 |
349,500 |
38,445 |
0 |
38,445 |
121.91 |
$4,687 |
$0 |
|||||
|
2022 |
316,000 |
316,000 |
34,760 |
0 |
34,760 |
123.41 |
$4,290 |
$0 |
|||||
|
2021 |
259,500 |
259,500 |
28,545 |
0 |
28,545 |
122.23 |
$3,489 |
$0 |
|||||
| Property Account Status/Adjustments/Exemptions | ||
|---|---|---|
| Account # | Exemption Description | Amount |
|
R142432040 |
5% Capped Account |
0 |
| Property Deed Transaction History (Recorded in the County Clerk's Office) | ||||||||||
|---|---|---|---|---|---|---|---|---|---|---|
| Date | Type | Book | Page | Price | Grantor | Grantee | ||||
|
1/21/2022 |
|
Deeds |
$337,000 |
OPENDOOR PROPERTY TRUST I |
COLEMAN BRIAN & ROBIN |
|||||
|
11/9/2021 |
|
Deeds |
$307,000 |
KUNZMAN JAMES T |
OPENDOOR PROPERTY TRUST I |
|||||
|
6/23/2021 |
|
Hmstd Off & |
$ |
KUNZMAN DEE ANN |
KUNZMAN JAMIS T |
|||||
|
6/23/2021 |
|
Hmstd Off & |
$0 |
KUNZMAN DEE ANN |
KUNZMAN JAMES T |
|||||
|
2/3/2014 |
|
Deeds |
$250,000 |
MURDOCK DAN & CAROL J |
KUNZMAN DEE ANN |
|||||
| Last Mailed Notice of Value (N.O.V.) Information/History | ||||||||
|---|---|---|---|---|---|---|---|---|
| Year | Date | Market Value | Taxable Market Value | Gross Assessed | Exemption | Net Assessed | ||
|
2025 |
02/14/2025 |
357,500 |
357,500 |
39,325 |
0 |
39,325 |
||
|
2024 |
02/13/2024 |
357,000 |
357,000 |
39,270 |
0 |
39,270 |
||
|
2023 |
02/14/2023 |
349,500 |
349,500 |
38,445 |
0 |
38,445 |
||
|
2022 |
03/15/2022 |
316,000 |
316,000 |
34,760 |
0 |
34,760 |
||
|
2021 |
03/19/2021 |
259,500 |
259,500 |
28,545 |
0 |
28,545 |
||
| Property Building Permit History | |||||||||||
|---|---|---|---|---|---|---|---|---|---|---|---|
| Issued | Permit # | Provided by | Bldg # | Description | Est Construction Cost | Status | |||||
| No Building Permit records returned. | |||||||||||
| Click button on building number to access detailed information: | ||||||
|---|---|---|---|---|---|---|
| Bldg # | Vacant/Improved Land | Bldg Description | Year Built | SqFt | # Stories | |
|
1 |
Improved |
1½ Story Fin |
1966 |
2,756 |
1.5 Stories |
|