|
|
|
| Larry Stein Oklahoma County Assessor (405) 713-1200 - Public Access System |
|
|
|
|
|
|
| Real Property Display - Screen Produced 3/18/2026 12:13:33 PM | ||||
|---|---|---|---|---|
| Account: R142631185 | Type: Residential | Location: |
3804 NW 66TH ST |
|
| Building Name/Occupant: |
|
OKLAHOMA CITY |
||
| Owner Name 1: | J PITMAN LLC |
Parcel PIN#: |
2806-14-263-1185 |
|
| Owner Name 2: | 1/4 section #: |
2806 |
||
| Owner Name 3: | Parent Acct: |
|
||
| Billing Address: | 3804 NW 66TH ST | Tax District: |
|
|
| City, State, Zip | OKLAHOMA CITY, OK 73116-1809 | School System: |
Putnam City #1 |
|
|
Country: (If noted) |
Land Size: |
0.1937 Acres |
||
|
Land Value: 47,242 |
|
|||
|
Sect 2-T12N-R4W Qtr SE |
EDGEWATER 3RD
Block
006
Lot
002
|
|||
| Full Legal Description: EDGEWATER 3RD 006 002 |
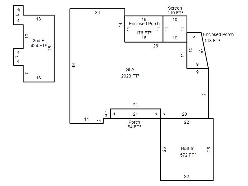
| Photo & Sketch (if available) | Comp Sales (ordered by relevancy) |
|
||||||||||||||||||
|
||||||||||||||||||||
| Value History (*The County Treasurer 405-713-1300 posts & collects actual tax amounts. Contact information HERE) | |||||||||||||
|---|---|---|---|---|---|---|---|---|---|---|---|---|---|
| Year | Market Value | Taxable Mkt Value | Gross Assessed | Exemption | Net Assessed | Millage | Est. Tax | Tax Savings | |||||
|
2025 |
313,500 |
313,500 |
34,485 |
34,485 |
0 |
123.17 |
$0 |
$4,248 |
|||||
|
2024 |
309,500 |
309,500 |
34,045 |
34,045 |
0 |
122.30 |
$0 |
$4,164 |
|||||
|
2023 |
300,000 |
260,100 |
28,610 |
23,388 |
5,222 |
121.91 |
$637 |
$3,386 |
|||||
|
2022 |
269,000 |
247,715 |
27,248 |
1,000 |
26,248 |
123.41 |
$3,239 |
$412 |
|||||
|
2021 |
240,500 |
240,500 |
26,455 |
1,000 |
25,455 |
122.23 |
$3,111 |
$122 |
|||||
| Property Account Status/Adjustments/Exemptions | ||||||
|---|---|---|---|---|---|---|
| Account # | Exemption Description | Amount | ||||
| No adjustment/exemption records returned. | ||||||
| Property Deed Transaction History (Recorded in the County Clerk's Office) | ||||||||||
|---|---|---|---|---|---|---|---|---|---|---|
| Date | Type | Book | Page | Price | Grantor | Grantee | ||||
|
7/17/2025 |
|
Deeds |
$382,000 |
JENKINS ROMALACE & SAMANTHA |
J PITMAN LLC |
|||||
|
3/24/2023 |
|
Deeds |
$305,000 |
RAKHMATULLAEV AGNIESZKA EWA |
JENKINS ROMALACE & SAMANTHA |
|||||
|
8/28/2019 |
|
Deeds |
$243,000 |
BILODEAU DAVID |
RAKHMATULLAEV AGNIESZKA EWA |
|||||
|
4/5/2018 |
|
Hmstd Off & |
$0 |
COOK M JUDSON & WANDA L TRS |
COOK JONATHAN MARK SUC TRS |
|||||
|
4/5/2018 |
|
Deeds |
$190,000 |
COOK JONATHAN MARK SUC TRS |
BILODEAU DAVID |
|||||
| Last Mailed Notice of Value (N.O.V.) Information/History | ||||||||
|---|---|---|---|---|---|---|---|---|
| Year | Date | Market Value | Taxable Market Value | Gross Assessed | Exemption | Net Assessed | ||
|
2026 |
02/23/2026 |
354,500 |
354,500 |
38,995 |
0 |
38,995 |
||
|
2025 |
02/14/2025 |
313,500 |
313,500 |
34,485 |
34,485 |
0 |
||
|
2024 |
02/13/2024 |
309,500 |
309,500 |
34,045 |
34,045 |
0 |
||
|
2023 |
02/14/2023 |
300,000 |
255,146 |
28,065 |
1,000 |
27,065 |
||
|
2022 |
03/15/2022 |
269,000 |
247,715 |
27,248 |
1,000 |
26,248 |
||
| Property Building Permit History | |||||||||||
|---|---|---|---|---|---|---|---|---|---|---|---|
| Issued | Permit # | Provided by | Bldg # | Description | Est Construction Cost | Status | |||||
| No Building Permit records returned. | |||||||||||
| Click button on building number to access detailed information: | ||||||
|---|---|---|---|---|---|---|
| Bldg # | Vacant/Improved Land | Bldg Description | Year Built | SqFt | # Stories | |
|
1 |
Improved |
1½ Story Fin |
1962 |
2,447 |
1.5 Stories |
|