|
|
|
| Larry Stein Oklahoma County Assessor (405) 713-1200 - Public Access System |
|
|
|
|
|
|
| Real Property Display - Screen Produced 4/5/2026 4:08:07 AM | ||||
|---|---|---|---|---|
| Account: R140181300 | Type: Residential | Location: |
4808 NW 74TH ST |
|
| Building Name/Occupant: |
|
OKLAHOMA CITY |
||
| Owner Name 1: | HENSON CHRISTIAN ANN |
Parcel PIN#: |
2809-14-018-1300 |
|
| Owner Name 2: | 1/4 section #: |
2809 |
||
| Owner Name 3: | Parent Acct: |
|
||
| Billing Address: | 4808 NW 74TH ST | Tax District: |
|
|
| City, State, Zip | OKLAHOMA CITY, OK 73132 | School System: |
Putnam City #1 |
|
|
Country: (If noted) |
Land Size: |
0.2066 Acres |
||
|
Land Value: 49,500 |
|
|||
|
Sect 3-T12N-R4W Qtr NE |
EDGEWATER PARK ADD
Block
004
Lot
005
|
|||
| Full Legal Description: EDGEWATER PARK ADD 004 005 |
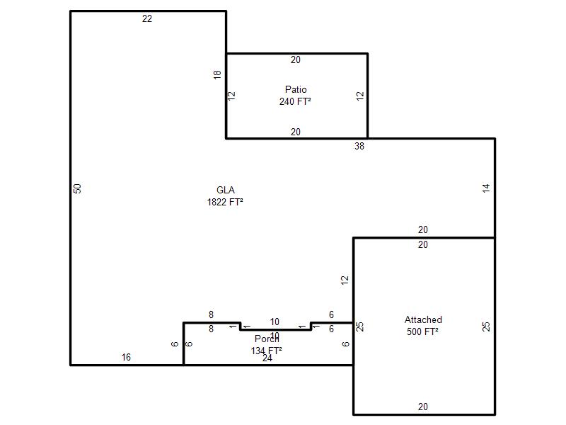
| Photo & Sketch (if available) | Comp Sales (ordered by relevancy) |
|
||||||||||||||||||
|
||||||||||||||||||||
| Value History (*The County Treasurer 405-713-1300 posts & collects actual tax amounts. Contact information HERE) | |||||||||||||
|---|---|---|---|---|---|---|---|---|---|---|---|---|---|
| Year | Market Value | Taxable Mkt Value | Gross Assessed | Exemption | Net Assessed | Millage | Est. Tax | Tax Savings | |||||
|
2026 |
230,000 |
227,905 |
25,068 |
0 |
25,068 |
123.17 |
$3,088 |
$28 |
|||||
|
2025 |
231,500 |
217,053 |
23,874 |
0 |
23,874 |
123.17 |
$2,941 |
$196 |
|||||
|
2024 |
228,500 |
206,718 |
22,738 |
0 |
22,738 |
122.30 |
$2,781 |
$293 |
|||||
|
2023 |
208,500 |
196,875 |
21,656 |
0 |
21,656 |
121.91 |
$2,640 |
$156 |
|||||
|
2022 |
187,500 |
187,500 |
20,625 |
0 |
20,625 |
123.41 |
$2,545 |
$0 |
|||||
| Property Account Status/Adjustments/Exemptions | ||
|---|---|---|
| Account # | Exemption Description | Amount |
|
R140181300 |
5% Capped Account |
0 |
| Property Deed Transaction History (Recorded in the County Clerk's Office) | |||||||
|---|---|---|---|---|---|---|---|
| Date | Type | Book | Page | Price | Grantor | Grantee | |
|
11/17/2021 |
|
Deeds |
$195,000 |
ZEAVIN SPENCER T |
HENSON CHRISTIAN ANN |
||
|
3/28/2005 |
|
Deeds |
$127,000 |
OBRIEN ELLEN M |
ZEAVIN SPENCER T |
||
|
4/1/1979 |
|
Historical |
$0 |
|
OBRIEN ELLEN M |
||
| Last Mailed Notice of Value (N.O.V.) Information/History | ||||||||
|---|---|---|---|---|---|---|---|---|
| Year | Date | Market Value | Taxable Market Value | Gross Assessed | Exemption | Net Assessed | ||
|
2026 |
02/23/2026 |
230,000 |
227,905 |
25,068 |
0 |
25,068 |
||
|
2025 |
02/14/2025 |
231,500 |
217,053 |
23,874 |
0 |
23,874 |
||
|
2024 |
02/13/2024 |
228,500 |
206,718 |
22,738 |
0 |
22,738 |
||
|
2023 |
02/14/2023 |
208,500 |
196,875 |
21,656 |
0 |
21,656 |
||
|
2022 |
03/15/2022 |
187,500 |
187,500 |
20,625 |
0 |
20,625 |
||
| Property Building Permit History | |||||||||||
|---|---|---|---|---|---|---|---|---|---|---|---|
| Issued | Permit # | Provided by | Bldg # | Description | Est Construction Cost | Status | |||||
| No Building Permit records returned. | |||||||||||
| Click button on building number to access detailed information: | ||||||
|---|---|---|---|---|---|---|
| Bldg # | Vacant/Improved Land | Bldg Description | Year Built | SqFt | # Stories | |
|
1 |
Improved |
Ranch 1 Story |
1965 |
1,822 |
1 Stories |
|