|
|
|
| Larry Stein Oklahoma County Assessor (405) 713-1200 - Public Access System |
|
|
|
|
|
|
| Real Property Display - Screen Produced 2/27/2026 6:16:24 PM | ||||
|---|---|---|---|---|
| Account: R148791230 | Type: Residential | Location: |
6447 N PENIEL AVE |
|
| Building Name/Occupant: |
|
OKLAHOMA CITY |
||
| Owner Name 1: | VIBBERT DENISE |
Parcel PIN#: |
2814-14-879-1230 |
|
| Owner Name 2: | PATCH JACOB | 1/4 section #: |
2814 |
|
| Owner Name 3: | Parent Acct: |
|
||
| Billing Address: | 6447 N PENIEL AVE | Tax District: |
|
|
| City, State, Zip | OKLAHOMA CITY, OK 73132-7211 | School System: |
Putnam City #1 |
|
|
Country: (If noted) |
Land Size: |
0.1446 Acres |
||
|
Land Value: 25,830 |
|
|||
|
Sect 4-T12N-R4W Qtr SE |
GALAXIE DEVE 4 SEASONS SEC 1
Block
001
Lot
024
|
|||
| Full Legal Description: GALAXIE DEVE 4 SEASONS SEC 1 001 024 |
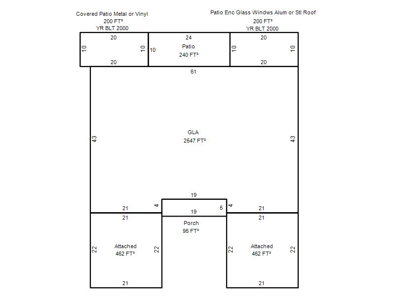
| Photo & Sketch (if available) | Comp Sales (ordered by relevancy) |
|
||||||||||||||||||
|
||||||||||||||||||||
| Value History (*The County Treasurer 405-713-1300 posts & collects actual tax amounts. Contact information HERE) | |||||||||||||
|---|---|---|---|---|---|---|---|---|---|---|---|---|---|
| Year | Market Value | Taxable Mkt Value | Gross Assessed | Exemption | Net Assessed | Millage | Est. Tax | Tax Savings | |||||
|
2025 |
234,500 |
234,500 |
25,795 |
0 |
25,795 |
123.17 |
$3,177 |
$0 |
|||||
|
2024 |
226,000 |
102,641 |
11,290 |
2,000 |
9,290 |
122.30 |
$1,136 |
$1,904 |
|||||
|
2023 |
198,500 |
102,641 |
11,290 |
2,000 |
9,290 |
121.91 |
$1,133 |
$1,529 |
|||||
|
2022 |
190,500 |
102,641 |
11,290 |
2,000 |
9,290 |
123.41 |
$1,147 |
$1,440 |
|||||
|
2021 |
158,000 |
102,641 |
11,290 |
2,000 |
9,290 |
122.23 |
$1,136 |
$989 |
|||||
| Property Account Status/Adjustments/Exemptions | ||
|---|---|---|
| Account # | Exemption Description | Amount |
|
R148791230 |
5% Capped Account |
0 |
| Property Deed Transaction History (Recorded in the County Clerk's Office) | |||||||
|---|---|---|---|---|---|---|---|
| Date | Type | Book | Page | Price | Grantor | Grantee | |
|
6/14/2024 |
|
Deeds |
$275,000 |
COOK JOHN & CHARLOTTE TRS |
VIBBERT DENISE |
||
|
11/5/2002 |
|
Deeds |
$0 |
COOK JOHN L TANNER JANET D |
COOK JOHN L |
||
|
11/5/2002 |
|
Deeds |
$0 |
COOK JOHN L |
COOK JOHN & CHARLOTTE TRS |
||
|
11/9/1993 |
|
Historical |
$90,000 |
THOMPSON RALPH P |
COOK JOHN L |
||
|
1/1/1981 |
|
Historical |
$0 |
|
THOMPSON RALPH P |
||
| Last Mailed Notice of Value (N.O.V.) Information/History | ||||||||
|---|---|---|---|---|---|---|---|---|
| Year | Date | Market Value | Taxable Market Value | Gross Assessed | Exemption | Net Assessed | ||
|
2025 |
02/14/2025 |
234,500 |
234,500 |
25,795 |
0 |
25,795 |
||
|
2024 |
02/13/2024 |
226,000 |
102,641 |
11,290 |
2,000 |
9,290 |
||
|
2023 |
02/14/2023 |
198,500 |
102,641 |
11,290 |
2,000 |
9,290 |
||
|
2022 |
03/15/2022 |
190,500 |
102,641 |
11,290 |
2,000 |
9,290 |
||
|
2020 |
03/10/2020 |
164,500 |
102,641 |
11,290 |
2,000 |
9,290 |
||
| Property Building Permit History | |||||||||||
|---|---|---|---|---|---|---|---|---|---|---|---|
| Issued | Permit # | Provided by | Bldg # | Description | Est Construction Cost | Status | |||||
| No Building Permit records returned. | |||||||||||
| Click button on building number to access detailed information: | ||||||
|---|---|---|---|---|---|---|
| Bldg # | Vacant/Improved Land | Bldg Description | Year Built | SqFt | # Stories | |
|
1 |
Improved |
Duplex One Story |
1971 |
2,547 |
1 Stories |
|