|
|
|
| Larry Stein Oklahoma County Assessor (405) 713-1200 - Public Access System |
|
|
|
|
|
|
| Real Property Display - Screen Produced 4/1/2026 2:19:45 AM | ||||
|---|---|---|---|---|
| Account: R144552450 | Type: Residential | Location: |
6917 WOODRIDGE AVE |
|
| Building Name/Occupant: |
|
OKLAHOMA CITY |
||
| Owner Name 1: | HARKINS MARK A & KAYLA L REV TRUST |
Parcel PIN#: |
2815-14-455-2450 |
|
| Owner Name 2: | 1/4 section #: |
2815 |
||
| Owner Name 3: | Parent Acct: |
|
||
| Billing Address: | 8940 SW 111TH ST | Tax District: |
|
|
| City, State, Zip | OKLAHOMA CITY, OK 73173-7757 | School System: |
Putnam City #1 |
|
|
Country: (If noted) |
Land Size: |
0.1848 Acres |
||
|
Land Value: 40,250 |
|
|||
|
Sect 4-T12N-R4W Qtr SW |
WOODLAKE
Block
003
Lot
038
|
|||
| Full Legal Description: WOODLAKE 003 038 |
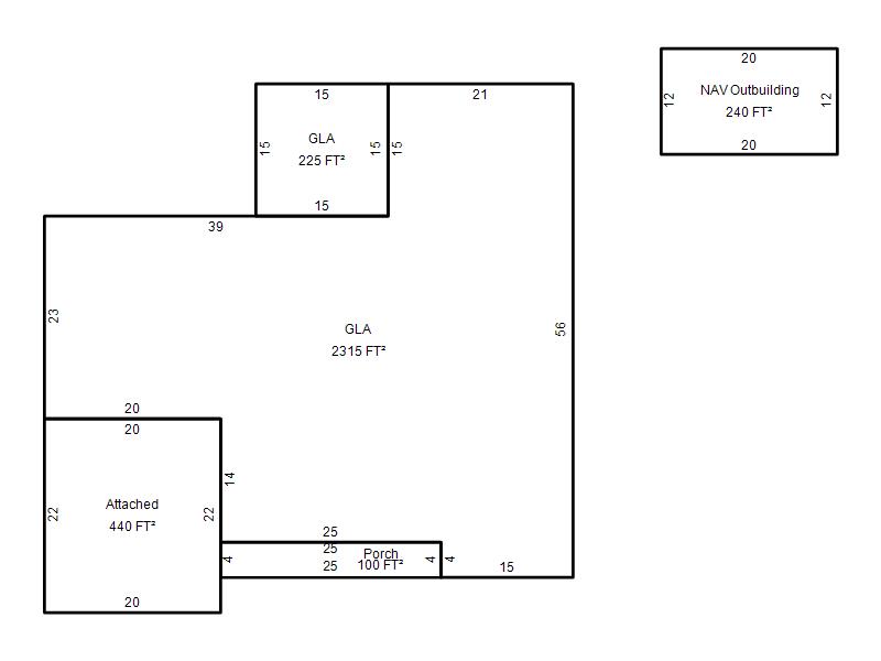
| Photo & Sketch (if available) | Comp Sales (ordered by relevancy) |
|
||||||||||||||||||
|
||||||||||||||||||||
| Value History (*The County Treasurer 405-713-1300 posts & collects actual tax amounts. Contact information HERE) | |||||||||||||
|---|---|---|---|---|---|---|---|---|---|---|---|---|---|
| Year | Market Value | Taxable Mkt Value | Gross Assessed | Exemption | Net Assessed | Millage | Est. Tax | Tax Savings | |||||
|
2026 |
268,500 |
241,943 |
26,613 |
0 |
26,613 |
123.17 |
$3,278 |
$360 |
|||||
|
2025 |
275,000 |
230,422 |
25,345 |
0 |
25,345 |
123.17 |
$3,122 |
$604 |
|||||
|
2024 |
274,000 |
219,450 |
24,139 |
0 |
24,139 |
122.30 |
$2,952 |
$734 |
|||||
|
2023 |
209,000 |
209,000 |
22,990 |
0 |
22,990 |
121.91 |
$2,803 |
$0 |
|||||
|
2022 |
213,000 |
157,726 |
17,349 |
1,000 |
16,349 |
123.41 |
$2,018 |
$874 |
|||||
| Property Account Status/Adjustments/Exemptions | ||
|---|---|---|
| Account # | Exemption Description | Amount |
|
R144552450 |
5% Capped Account |
0 |
| Property Deed Transaction History (Recorded in the County Clerk's Office) | ||||||||||
|---|---|---|---|---|---|---|---|---|---|---|
| Date | Type | Book | Page | Price | Grantor | Grantee | ||||
|
10/14/2025 |
|
Hmstd Off & |
$0 |
HARKINS MARK |
HARKINS MARK A & KAYLA L REV TRUST |
|||||
|
9/8/2022 |
|
Deeds |
$207,000 |
DENSON RYAN N |
HARKINS MARK |
|||||
|
5/23/2019 |
|
Deeds |
$0 |
DENSON RYAN N |
DENSON RYAN N |
|||||
|
6/30/2017 |
|
Deeds |
$0 |
DENSON RYAN N |
DENSON RYAN N |
|||||
|
5/19/2017 |
|
Deeds |
$0 |
DENSON RYAN N & ROBBI J |
DENSON RYAN N |
|||||
| Last Mailed Notice of Value (N.O.V.) Information/History | ||||||||
|---|---|---|---|---|---|---|---|---|
| Year | Date | Market Value | Taxable Market Value | Gross Assessed | Exemption | Net Assessed | ||
|
2026 |
02/23/2026 |
268,500 |
241,943 |
26,613 |
0 |
26,613 |
||
|
2025 |
02/14/2025 |
275,000 |
230,422 |
25,345 |
0 |
25,345 |
||
|
2024 |
02/13/2024 |
274,000 |
219,450 |
24,139 |
0 |
24,139 |
||
|
2023 |
02/14/2023 |
209,000 |
209,000 |
22,990 |
0 |
22,990 |
||
|
2022 |
03/15/2022 |
213,000 |
157,726 |
17,349 |
1,000 |
16,349 |
||
| Property Building Permit History | |||||||||||
|---|---|---|---|---|---|---|---|---|---|---|---|
| Issued | Permit # | Provided by | Bldg # | Description | Est Construction Cost | Status | |||||
| No Building Permit records returned. | |||||||||||
| Click button on building number to access detailed information: | ||||||
|---|---|---|---|---|---|---|
| Bldg # | Vacant/Improved Land | Bldg Description | Year Built | SqFt | # Stories | |
|
1 |
Improved |
Ranch 1 Story |
1973 |
2,540 |
1 Stories |
|