|
|
|
| Larry Stein Oklahoma County Assessor (405) 713-1200 - Public Access System |
|
|
|
|
|
|
| Real Property Display - Screen Produced 4/2/2026 10:17:30 AM | ||||
|---|---|---|---|---|
| Account: R129351290 | Type: Residential | Location: |
8208 NW 66TH ST |
|
| Building Name/Occupant: |
|
OKLAHOMA CITY |
||
| Owner Name 1: | NGUYEN LONG NGOC |
Parcel PIN#: |
2822-12-935-1290 |
|
| Owner Name 2: | LAM ANNIE | 1/4 section #: |
2822 |
|
| Owner Name 3: | Parent Acct: |
|
||
| Billing Address: | 8208 NW 66TH ST | Tax District: |
|
|
| City, State, Zip | OKLAHOMA CITY, OK 73132 | School System: |
Putnam City #1 |
|
|
Country: (If noted) |
Land Size: |
0.2231 Acres |
||
|
Land Value: 80,676 |
|
|||
|
Sect 6-T12N-R4W Qtr SE |
RIVER BEND ESTATES SEC 5
Block
009
Lot
002
|
|||
| Full Legal Description: RIVER BEND ESTATES SEC 5 009 002 |
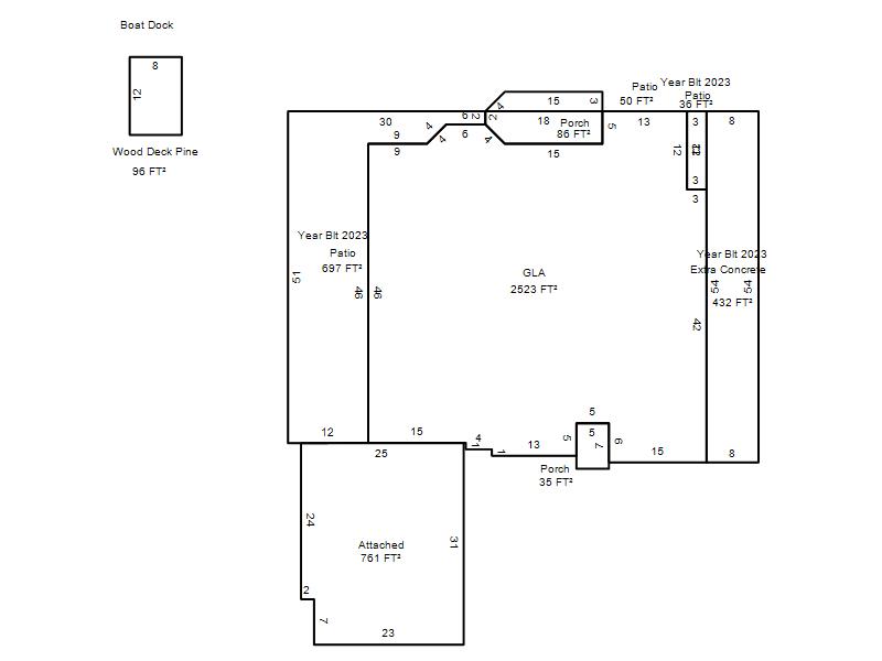
| Photo & Sketch (if available) | Comp Sales (ordered by relevancy) |
|
||||||||||||||||||
|
||||||||||||||||||||
| Value History (*The County Treasurer 405-713-1300 posts & collects actual tax amounts. Contact information HERE) | |||||||||||||
|---|---|---|---|---|---|---|---|---|---|---|---|---|---|
| Year | Market Value | Taxable Mkt Value | Gross Assessed | Exemption | Net Assessed | Millage | Est. Tax | Tax Savings | |||||
|
2026 |
398,500 |
398,500 |
43,835 |
1,000 |
42,835 |
123.17 |
$5,276 |
$123 |
|||||
|
2025 |
404,000 |
397,992 |
43,779 |
1,000 |
42,779 |
123.17 |
$5,269 |
$205 |
|||||
|
2024 |
405,000 |
386,400 |
42,504 |
0 |
42,504 |
122.30 |
$5,198 |
$250 |
|||||
|
2023 |
368,000 |
368,000 |
40,480 |
0 |
40,480 |
121.91 |
$4,935 |
$0 |
|||||
|
2022 |
322,500 |
317,625 |
34,938 |
0 |
34,938 |
123.41 |
$4,312 |
$66 |
|||||
| Property Account Status/Adjustments/Exemptions | ||
|---|---|---|
| Account # | Exemption Description | Amount |
|
R129351290 |
Homestead |
1,000 |
|
R129351290 |
3% Cap Homestead |
0 |
| Property Deed Transaction History (Recorded in the County Clerk's Office) | ||||||||||
|---|---|---|---|---|---|---|---|---|---|---|
| Date | Type | Book | Page | Price | Grantor | Grantee | ||||
|
11/29/2022 |
|
Hmstd Off & |
$0 |
T5 ENTERPRISES LLC |
TAYLOR JEANETTA O |
|||||
|
11/29/2022 |
|
Deeds |
$360,000 |
TAYLOR JEANETTA O |
NGUYEN LONG NGOC |
|||||
|
11/8/2022 |
|
Hmstd Off & |
$0 |
TAYLOR JEANETTA O |
T5 ENTERPRISES LLC |
|||||
|
9/4/2020 |
|
Deeds |
$310,000 |
TRANG LIEM Q & DEEDEE D |
TAYLOR JEANETTA O |
|||||
|
11/29/2000 |
|
Deeds |
$225,500 |
COOK RAYMOND E |
TRANG LIEM Q & DEEDEE D |
|||||
| Last Mailed Notice of Value (N.O.V.) Information/History | ||||||||
|---|---|---|---|---|---|---|---|---|
| Year | Date | Market Value | Taxable Market Value | Gross Assessed | Exemption | Net Assessed | ||
|
2026 |
02/23/2026 |
398,500 |
398,500 |
43,835 |
1,000 |
42,835 |
||
|
2025 |
02/14/2025 |
404,000 |
397,992 |
43,779 |
1,000 |
42,779 |
||
|
2024 |
02/13/2024 |
405,000 |
386,400 |
42,504 |
0 |
42,504 |
||
|
2023 |
02/14/2023 |
368,000 |
368,000 |
40,480 |
0 |
40,480 |
||
|
2022 |
03/15/2022 |
322,500 |
317,625 |
34,938 |
0 |
34,938 |
||
| Property Building Permit History | ||||||
|---|---|---|---|---|---|---|
| Issued | Permit # | Provided by | Bldg # | Description | Est Construction Cost | Status |
|
4/21/1998 |
10225333 |
OKLAHOMA CITY |
1 |
Main Dwellin |
190,000 |
Inactive |
| Click button on building number to access detailed information: | ||||||
|---|---|---|---|---|---|---|
| Bldg # | Vacant/Improved Land | Bldg Description | Year Built | SqFt | # Stories | |
|
1 |
Improved |
Ranch 1 Story |
1999 |
2,523 |
1 Stories |
|