|
|
|
| Larry Stein Oklahoma County Assessor (405) 713-1200 - Public Access System |
|
|
|
|
|
|
| Real Property Display - Screen Produced 2/27/2026 7:50:50 PM | ||||
|---|---|---|---|---|
| Account: R188502905 | Type: Residential | Location: |
6104 N REDMOND AVE |
|
| Building Name/Occupant: |
|
WARR ACRES |
||
| Owner Name 1: | VILLATORO JOSE |
Parcel PIN#: |
2833-18-850-2905 |
|
| Owner Name 2: | VILLATORO SANTOS R | 1/4 section #: |
2833 |
|
| Owner Name 3: | Parent Acct: |
|
||
| Billing Address: | 6036 NW 59TH ST | Tax District: |
|
|
| City, State, Zip | OKLAHOMA CITY, OK 73122-7129 | School System: |
Putnam City #1 |
|
|
Country: (If noted) |
Land Size: |
0.2504 Acres |
||
|
Land Value: 35,445 |
|
|||
|
Sect 9-T12N-R4W Qtr NE |
WARR ACRES ADDITION
Block
023
Lot
013
|
|||
| Full Legal Description: WARR ACRES ADDITION 023 013 |
| Photo & Sketch (if available) | Comp Sales (ordered by relevancy) |
|
||||||||||||||||||
|
||||||||||||||||||||
| Value History (*The County Treasurer 405-713-1300 posts & collects actual tax amounts. Contact information HERE) | |||||||||||||
|---|---|---|---|---|---|---|---|---|---|---|---|---|---|
| Year | Market Value | Taxable Mkt Value | Gross Assessed | Exemption | Net Assessed | Millage | Est. Tax | Tax Savings | |||||
|
2025 |
133,500 |
133,500 |
14,685 |
0 |
14,685 |
115.77 |
$1,700 |
$0 |
|||||
|
2024 |
133,500 |
133,500 |
14,685 |
0 |
14,685 |
114.25 |
$1,678 |
$0 |
|||||
|
2023 |
129,000 |
118,125 |
12,993 |
0 |
12,993 |
117.84 |
$1,531 |
$141 |
|||||
|
2022 |
112,500 |
112,500 |
12,375 |
0 |
12,375 |
120.40 |
$1,490 |
$0 |
|||||
|
2021 |
96,000 |
88,127 |
9,693 |
1,000 |
8,693 |
119.77 |
$1,041 |
$223 |
|||||
| Property Account Status/Adjustments/Exemptions | ||
|---|---|---|
| Account # | Exemption Description | Amount |
|
R188502905 |
5% Capped Account |
0 |
| Property Deed Transaction History (Recorded in the County Clerk's Office) | |||||||
|---|---|---|---|---|---|---|---|
| Date | Type | Book | Page | Price | Grantor | Grantee | |
|
8/31/2023 |
|
Deeds |
$138,000 |
ISAAC JASON |
VILLATORO JOSE |
||
|
9/27/2021 |
|
Other |
$0 |
KNIGHT RICHARD L & KATHY D |
ISAAC JASON |
||
|
3/8/1991 |
|
Historical |
$0 |
KNIGHT HAROLD B & CLAUDENE W |
KNIGHT RICHARD L & KATHY D |
||
|
7/1/1979 |
|
Historical |
$0 |
|
KNIGHT HAROLD B & CLAUDENE W |
||
| Last Mailed Notice of Value (N.O.V.) Information/History | ||||||||
|---|---|---|---|---|---|---|---|---|
| Year | Date | Market Value | Taxable Market Value | Gross Assessed | Exemption | Net Assessed | ||
|
2024 |
02/13/2024 |
133,500 |
133,500 |
14,685 |
0 |
14,685 |
||
|
2023 |
02/14/2023 |
129,000 |
118,125 |
12,993 |
0 |
12,993 |
||
|
2022 |
03/15/2022 |
112,500 |
112,500 |
12,375 |
0 |
12,375 |
||
|
2021 |
03/19/2021 |
96,000 |
88,127 |
9,693 |
1,000 |
8,693 |
||
|
2020 |
03/10/2020 |
90,000 |
85,561 |
9,411 |
1,000 |
8,411 |
||
| Property Building Permit History | |||||||||||
|---|---|---|---|---|---|---|---|---|---|---|---|
| Issued | Permit # | Provided by | Bldg # | Description | Est Construction Cost | Status | |||||
| No Building Permit records returned. | |||||||||||
| Click button on building number to access detailed information: | ||||||
|---|---|---|---|---|---|---|
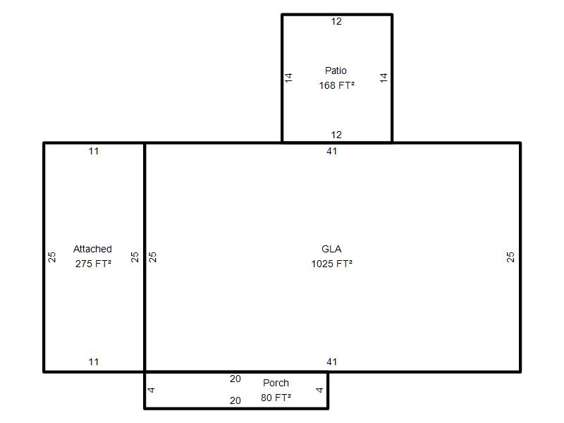
| Bldg # | Vacant/Improved Land | Bldg Description | Year Built | SqFt | # Stories | |
|
1 |
Improved |
Ranch 1 Story |
1955 |
1,025 |
1 Stories |
|