|
|
|
| Larry Stein Oklahoma County Assessor (405) 713-1200 - Public Access System |
|
|
|
|
|
|
| Real Property Display - Screen Produced 2/27/2026 6:17:41 PM | ||||
|---|---|---|---|---|
| Account: R188503675 | Type: Residential | Location: |
6328 N HAMMOND AVE |
|
| Building Name/Occupant: |
|
WARR ACRES |
||
| Owner Name 1: | SFR WORKFORCE OWNER 2 LLC |
Parcel PIN#: |
2833-18-850-3675 |
|
| Owner Name 2: | 1/4 section #: |
2833 |
||
| Owner Name 3: | Parent Acct: |
|
||
| Billing Address: | PO BOX 4900 | Tax District: |
|
|
| City, State, Zip | SCOTTSDALE, AZ 85261 | School System: |
Putnam City #1 |
|
|
Country: (If noted) |
UNITED STATES |
Land Size: |
0.1791 Acres |
|
|
Land Value: 25,350 |
|
|||
|
Sect 9-T12N-R4W Qtr NE |
WARR ACRES ADDITION
Block
034
Lot
005
|
|||
| Full Legal Description: WARR ACRES ADDITION 034 005 |
| Photo & Sketch (if available) | Comp Sales (ordered by relevancy) |
|
||||||||||||||||||
|
||||||||||||||||||||
| Value History (*The County Treasurer 405-713-1300 posts & collects actual tax amounts. Contact information HERE) | |||||||||||||
|---|---|---|---|---|---|---|---|---|---|---|---|---|---|
| Year | Market Value | Taxable Mkt Value | Gross Assessed | Exemption | Net Assessed | Millage | Est. Tax | Tax Savings | |||||
|
2025 |
146,500 |
146,500 |
16,115 |
0 |
16,115 |
115.77 |
$1,866 |
$0 |
|||||
|
2024 |
146,000 |
146,000 |
16,060 |
0 |
16,060 |
114.25 |
$1,835 |
$0 |
|||||
|
2023 |
141,500 |
141,500 |
15,565 |
0 |
15,565 |
117.84 |
$1,834 |
$0 |
|||||
|
2022 |
123,500 |
109,698 |
12,066 |
0 |
12,066 |
120.40 |
$1,453 |
$183 |
|||||
|
2021 |
105,500 |
104,475 |
11,492 |
0 |
11,492 |
119.77 |
$1,376 |
$14 |
|||||
| Property Account Status/Adjustments/Exemptions | ||
|---|---|---|
| Account # | Exemption Description | Amount |
|
R188503675 |
5% Capped Account |
0 |
| Property Deed Transaction History (Recorded in the County Clerk's Office) | ||||||||||
|---|---|---|---|---|---|---|---|---|---|---|
| Date | Type | Book | Page | Price | Grantor | Grantee | ||||
|
10/10/2023 |
|
Hmstd Off & |
$0 |
JKV WORKFORCE OWNER 2 LLC |
SFR WORKFORCE OWNER 2 LLC |
|||||
|
12/7/2022 |
|
Hmstd Off & |
$0 |
JKV WORKFORCE I LLC |
JKV WORKFORCE OWNER 2 LLC |
|||||
|
4/1/2022 |
|
Deeds |
$130,000 |
JLM MANAGEMENT LLC |
JKV WORKFORCE I LLC |
|||||
|
2/11/2011 |
|
Hmstd Off & |
$0 |
MANN LILA |
JLM MANAGEMENT LLC |
|||||
|
11/5/2010 |
|
Deeds |
$53,000 |
WATT DAVID H & PATTI L |
MANN LILA |
|||||
| Last Mailed Notice of Value (N.O.V.) Information/History | ||||||||
|---|---|---|---|---|---|---|---|---|
| Year | Date | Market Value | Taxable Market Value | Gross Assessed | Exemption | Net Assessed | ||
|
2025 |
02/14/2025 |
146,500 |
146,500 |
16,115 |
0 |
16,115 |
||
|
2024 |
02/13/2024 |
146,000 |
146,000 |
16,060 |
0 |
16,060 |
||
|
2023 |
02/14/2023 |
141,500 |
141,500 |
15,565 |
0 |
15,565 |
||
|
2022 |
03/15/2022 |
123,500 |
109,698 |
12,066 |
0 |
12,066 |
||
|
2021 |
03/19/2021 |
105,500 |
104,475 |
11,492 |
0 |
11,492 |
||
| Property Building Permit History | |||||||||||
|---|---|---|---|---|---|---|---|---|---|---|---|
| Issued | Permit # | Provided by | Bldg # | Description | Est Construction Cost | Status | |||||
| No Building Permit records returned. | |||||||||||
| Click button on building number to access detailed information: | ||||||
|---|---|---|---|---|---|---|
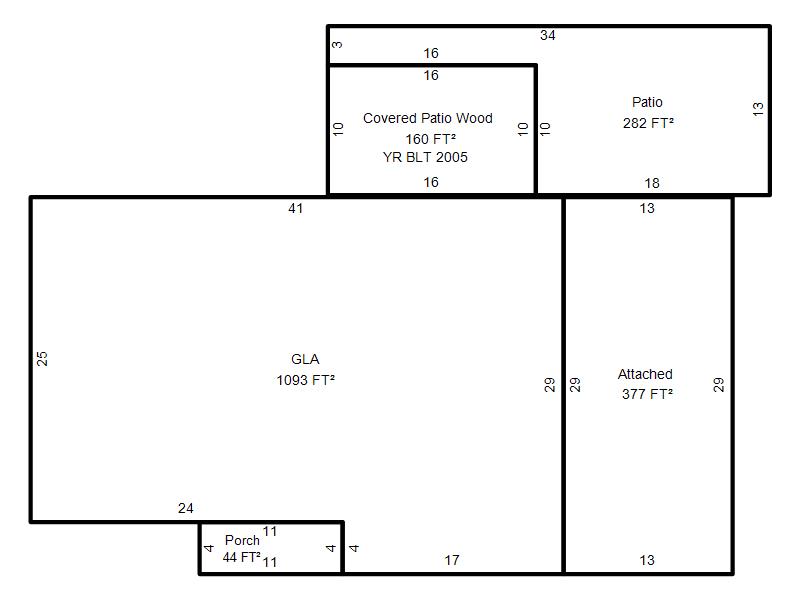
| Bldg # | Vacant/Improved Land | Bldg Description | Year Built | SqFt | # Stories | |
|
1 |
Improved |
Ranch 1 Story |
1959 |
1,093 |
1 Stories |
|