|
|
|
| Larry Stein Oklahoma County Assessor (405) 713-1200 - Public Access System |
|
|
|
|
|
|
| Real Property Display - Screen Produced 4/2/2026 5:51:04 PM | ||||
|---|---|---|---|---|
| Account: R181701046 | Type: Residential | Location: |
6205 N COLLEGE ST |
|
| Building Name/Occupant: |
|
WARR ACRES |
||
| Owner Name 1: | DOWELL ALFONZO N |
Parcel PIN#: |
2836-18-170-1046 |
|
| Owner Name 2: | 1/4 section #: |
2836 |
||
| Owner Name 3: | Parent Acct: |
|
||
| Billing Address: | 6205 N COLLEGE ST | Tax District: |
|
|
| City, State, Zip | WARR ACRES, OK 73122-7030 | School System: |
Putnam City #1 |
|
|
Country: (If noted) |
Land Size: |
0.2973 Acres |
||
|
Land Value: 62,160 |
|
|||
|
Sect 9-T12N-R4W Qtr NW |
W RAY NEWMANS WILLOWRIDGE
Block
001
Lot
000
|
|||
| Full Legal Description: W RAY NEWMANS WILLOWRIDGE 001 000 E175.29FT OF LOT 9 |
| Photo & Sketch (if available) | Comp Sales (ordered by relevancy) |
|
||||||||||||||||||
|
||||||||||||||||||||
| Value History (*The County Treasurer 405-713-1300 posts & collects actual tax amounts. Contact information HERE) | |||||||||||||
|---|---|---|---|---|---|---|---|---|---|---|---|---|---|
| Year | Market Value | Taxable Mkt Value | Gross Assessed | Exemption | Net Assessed | Millage | Est. Tax | Tax Savings | |||||
|
2026 |
240,500 |
240,500 |
26,455 |
0 |
26,455 |
115.77 |
$3,063 |
$0 |
|||||
|
2025 |
246,500 |
194,130 |
21,353 |
0 |
21,353 |
115.77 |
$2,472 |
$667 |
|||||
|
2024 |
252,500 |
184,886 |
20,337 |
0 |
20,337 |
114.25 |
$2,324 |
$850 |
|||||
|
2023 |
243,500 |
176,082 |
19,368 |
0 |
19,368 |
117.84 |
$2,282 |
$874 |
|||||
|
2022 |
210,000 |
167,698 |
18,445 |
0 |
18,445 |
120.40 |
$2,221 |
$560 |
|||||
| Property Account Status/Adjustments/Exemptions | ||||||
|---|---|---|---|---|---|---|
| Account # | Exemption Description | Amount | ||||
| No adjustment/exemption records returned. | ||||||
| Property Deed Transaction History (Recorded in the County Clerk's Office) | |||||||
|---|---|---|---|---|---|---|---|
| Date | Type | Book | Page | Price | Grantor | Grantee | |
|
10/31/2025 |
|
Deeds |
$240,000 |
HEIDEBRECHT LYNN G |
DOWELL ALFONZO N |
||
|
6/7/2007 |
|
Deeds |
$120,000 |
UPTON CORRINNA M |
HEIDEBRECHT LYNN G |
||
|
4/1/1980 |
|
Historical |
$0 |
|
UPTON CORRINNA M |
||
| Last Mailed Notice of Value (N.O.V.) Information/History | ||||||||
|---|---|---|---|---|---|---|---|---|
| Year | Date | Market Value | Taxable Market Value | Gross Assessed | Exemption | Net Assessed | ||
|
2026 |
02/23/2026 |
240,500 |
240,500 |
26,455 |
0 |
26,455 |
||
|
2025 |
02/14/2025 |
246,500 |
194,130 |
21,353 |
0 |
21,353 |
||
|
2024 |
02/13/2024 |
252,500 |
184,886 |
20,337 |
0 |
20,337 |
||
|
2023 |
02/14/2023 |
243,500 |
176,082 |
19,368 |
0 |
19,368 |
||
|
2022 |
03/15/2022 |
210,000 |
167,698 |
18,445 |
0 |
18,445 |
||
| Property Building Permit History | |||||||||||
|---|---|---|---|---|---|---|---|---|---|---|---|
| Issued | Permit # | Provided by | Bldg # | Description | Est Construction Cost | Status | |||||
| No Building Permit records returned. | |||||||||||
| Click button on building number to access detailed information: | ||||||
|---|---|---|---|---|---|---|
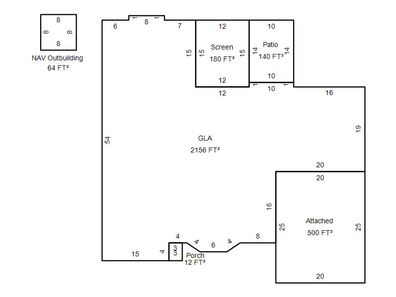
| Bldg # | Vacant/Improved Land | Bldg Description | Year Built | SqFt | # Stories | |
|
1 |
Improved |
Ranch 1 Story |
1976 |
2,156 |
1 Stories |
|