|
|
|
| Larry Stein Oklahoma County Assessor (405) 713-1200 - Public Access System |
|
|
|
|
|
|
| Real Property Display - Screen Produced 2/27/2026 6:16:23 PM | ||||
|---|---|---|---|---|
| Account: R181701410 | Type: Residential | Location: |
6216 WILLOWRIDGE DR |
|
| Building Name/Occupant: |
|
WARR ACRES |
||
| Owner Name 1: | RAZA MOHAMMED |
Parcel PIN#: |
2836-18-170-1410 |
|
| Owner Name 2: | NESSA AZIZUN | 1/4 section #: |
2836 |
|
| Owner Name 3: | Parent Acct: |
|
||
| Billing Address: | 6216 WILLOWRIDGE DR | Tax District: |
|
|
| City, State, Zip | OKLAHOMA CITY, OK 73122-7048 | School System: |
Putnam City #1 |
|
|
Country: (If noted) |
Land Size: |
0.1719 Acres |
||
|
Land Value: 35,952 |
|
|||
|
Sect 9-T12N-R4W Qtr NW |
W RAY NEWMANS WILLOWRIDGE
Block
003
Lot
006
|
|||
| Full Legal Description: W RAY NEWMANS WILLOWRIDGE 003 006 |
| Photo & Sketch (if available) | Comp Sales (ordered by relevancy) |
|
||||||||||||||||||
|
||||||||||||||||||||
| Value History (*The County Treasurer 405-713-1300 posts & collects actual tax amounts. Contact information HERE) | |||||||||||||
|---|---|---|---|---|---|---|---|---|---|---|---|---|---|
| Year | Market Value | Taxable Mkt Value | Gross Assessed | Exemption | Net Assessed | Millage | Est. Tax | Tax Savings | |||||
|
2025 |
200,500 |
200,500 |
22,055 |
0 |
22,055 |
115.77 |
$2,553 |
$0 |
|||||
|
2024 |
202,500 |
137,909 |
15,169 |
1,000 |
14,169 |
114.25 |
$1,619 |
$926 |
|||||
|
2023 |
193,500 |
133,893 |
14,727 |
1,000 |
13,727 |
117.84 |
$1,618 |
$890 |
|||||
|
2022 |
168,500 |
129,994 |
14,298 |
1,000 |
13,298 |
120.40 |
$1,601 |
$630 |
|||||
|
2021 |
137,000 |
126,208 |
13,882 |
1,000 |
12,882 |
119.77 |
$1,543 |
$262 |
|||||
| Property Account Status/Adjustments/Exemptions | ||
|---|---|---|
| Account # | Exemption Description | Amount |
|
R181701410 |
5% Capped Account |
0 |
| Property Deed Transaction History (Recorded in the County Clerk's Office) | |||||||
|---|---|---|---|---|---|---|---|
| Date | Type | Book | Page | Price | Grantor | Grantee | |
|
9/6/2024 |
|
Deeds |
$211,000 |
LANE SONDRA |
RAZA MOHAMMED |
||
|
5/31/2002 |
|
Deeds |
$92,000 |
GRANTHAM MELODY G |
LANE SONDRA |
||
|
5/13/1999 |
|
Deeds |
$87,000 |
CHUGON ROBERT L & CAROLE |
GRANTHAM MELODY G |
||
|
12/1/1977 |
|
Historical |
$0 |
|
CHUGON ROBERT L & CAROLE |
||
| Last Mailed Notice of Value (N.O.V.) Information/History | ||||||||
|---|---|---|---|---|---|---|---|---|
| Year | Date | Market Value | Taxable Market Value | Gross Assessed | Exemption | Net Assessed | ||
|
2025 |
02/14/2025 |
200,500 |
200,500 |
22,055 |
0 |
22,055 |
||
|
2024 |
02/13/2024 |
202,500 |
137,909 |
15,169 |
1,000 |
14,169 |
||
|
2023 |
02/14/2023 |
193,500 |
133,893 |
14,727 |
1,000 |
13,727 |
||
|
2022 |
03/15/2022 |
168,500 |
129,994 |
14,298 |
1,000 |
13,298 |
||
|
2021 |
03/19/2021 |
137,000 |
126,208 |
13,882 |
1,000 |
12,882 |
||
| Property Building Permit History | |||||||||||
|---|---|---|---|---|---|---|---|---|---|---|---|
| Issued | Permit # | Provided by | Bldg # | Description | Est Construction Cost | Status | |||||
| No Building Permit records returned. | |||||||||||
| Click button on building number to access detailed information: | ||||||
|---|---|---|---|---|---|---|
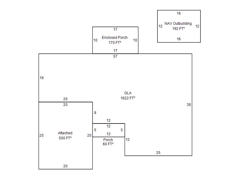
| Bldg # | Vacant/Improved Land | Bldg Description | Year Built | SqFt | # Stories | |
|
1 |
Improved |
Ranch 1 Story |
1976 |
1,622 |
1 Stories |
|